6 idées originales de rangement que nous avons vues dans le projet Profi
Un espace original et fonctionnel avec des solutions intéressantes
La designer Marina Sutyrina a créé un intérieur élégant et très confortable dans une maison de 51 m². Voyons comment ils ont résolu la question du rangement. Nous avons réuni 6 idées géniales et inattendues provenant du projet, qui ne laisseront sans effet. Lisez et trouvez de l'inspiration pour vos rénovations !
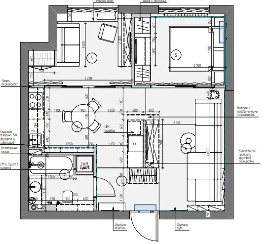
Le plan de cette maison (26 minutes)

Îlot de meubles
La pièce maîtresse du projet est un îlot de meubles – une construction originale conçue pour créer une disposition circulaire. Du côté de la cuisine, la technologie a été intégrée dans l'îlot, du côté de l'entrée une armoire avec des portes en miroir a été installée, et du côté du salon une zone TV a été créée avec des sections ouvertes et fermées pour ranger.

Niche fonctionnelle
Pour décharger la surface de travail du placard, une niche étroite a été faite sur le mur adjacent. Elle intègre des étagères et des sections fermées avec une planche de travail, prévoyant des prises électriques. La planche de travail offre suffisamment d’espace pour y placer des appareils électriques et les objets nécessaires.

Armoire cachée
Au premier regard, il est difficile de deviner où se trouve l’armoire dans la chambre. Elle est située directement derrière le canapé, dans une niche. L’armoire a été fabriquée avec des portes blanches et équipée d’une lumière intérieure qui s’allume lors de l’ouverture des portes. Une section ouverte a été laissée sous l’armoire pour ranger ce qui doit être facilement accessible.

Rangement avec un secret
L’espace de la chambre à coucher ne permettait pas de placer une zone TV complète. Par conséquent, elle a été masquée dans... un placard-robe en face du lit. Derrière la porte coulissante centrale, des prises électriques et des étagères ont été prévues – si nécessaire, on peut y placer un petit téléviseur. Un commode avec des tiroirs sortants a été placé sous l’étagère, et au-dessus, des étagères pour ranger les coussins ou les couvertures.

Armoire à portes en miroir
L’armoire dans l'entrée est placée directement en face de l’entrée. Pour éviter que le regard ne tombe sur un mur sombre, les portes de l’armoire ont été entièrement en miroir. Elles amplifient l’espace, ajoutent de la profondeur et permettent d’évaluer son image lors de l’entrée/sortie.

Etagères colorées
L’ensemble de la zone TV est équipé d’un rangement supplémentaire. Il s'agit de tiroirs sortants et d’étagères ouvertes, délibérément mises en valeur en rouge et équipées de lumière. De cette façon, les motifs japonais ont été préservés dans l'intérieur et un bel accent a été créé.
Need a renovation specialist?
Find verified professionals for any repair or construction job. Post your request and get offers from local experts.
You may also like

Solutions intelligentes pour une salle de bain petite : comment augmenter l'espace visuellement et fonctionnellement

Balcon dans un immeuble en panneau : bureau, chambre d'enfant ou débarras ?

Comment transformer une cuisine étroite en cœur de maison : l'histoire de la transformation d'une cuisine de 9 mètres carrés dans un immeuble stalinien

Possibilités cachées : des solutions originales pour le stockage dans un logement type
Plus d'articles:
Solutions intelligentes pour une salle de bain petite : comment augmenter l'espace visuellement et fonctionnellement
Balcon dans un immeuble en panneau : bureau, chambre d'enfant ou débarras ?
Comment transformer une cuisine étroite en cœur de maison : l'histoire de la transformation d'une cuisine de 9 mètres carrés dans un immeuble stalinien
Possibilités cachées : des solutions originales pour le stockage dans un logement type
Comment choisir des portes qui économisent de l'espace et embellissent l'intérieur
Travaux d'octobre en jardin : ce qu'il faut terminer avant l'arrivée de l'hiver
Avant et après : comment transformer une cuisine avec un budget limité de manière élégante
Mètres carrés à la valeur de l'or : comment maximiser l'espace d'une appartement standard