Ville céleste TOD de Superimpose Architecture à Hangzhou, Chine
Projet : Ville céleste TOD
Architectes : Superimpose Architecture
Emplacement : Quartier Youhan, Hangzhou, Chine
Superficie : 775 001 pieds carrés (architecture), 1 668 406 pieds carrés (plan maître)
Année : 2022
Photos par : CreatAR images, WANBAN VISION
Ville céleste TOD de Superimpose Architecture à Hangzhou, Chine
Superimpose Architecture a terminé la création d’un développement mixte de type Ville céleste TOD avec une arrivée unique et écologique à Hangzhou, en Chine. Le développement autour des nœuds de transport (TOD) est un type urbain en plein essor, particulièrement en Chine.
La particularité du TOD réside dans l’intégration, lors de la phase d’aménagement, d’une ou plusieurs stations de transport en commun de haut niveau dans les territoires à usage mixte, par le biais d’itinéraires piétonniers ou cyclables efficaces. Un kilomètre carré d’Uni-City — conçu par SOM — se trouve dans la « Silicon Valley » de Hangzhou, à proximité des géants du commerce électronique chinois tels qu’Alibaba et Tencent.

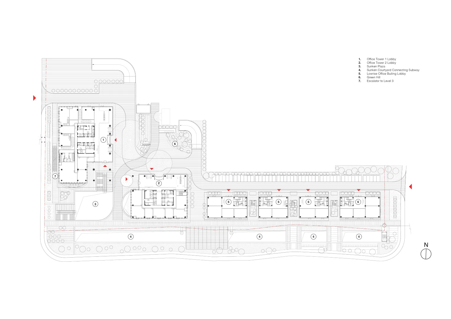
Dans le cadre de ce plan maître, Superimpose Architecture a conçu la « Ville céleste » pour Vanke Hangzhou et le groupe Hangzhou Metro. La « Ville céleste » est un projet de 72 000 mètres carrés comprenant deux tours de bureaux, quatre villas de bureau et un commerce de détail à proximité d’une nouvelle station de métro. Le TOD deviendra le nœud principal et le point de connexion du « Uni-City ». Superimpose Architecture a remporté un appel d’offres fermé pour ce projet, intégrant soigneusement les itinéraires piétonniers et créant une situation d’arrivée unique et écologique pour le métro.
Superimpose Architecture a intégré une bande verte appartenant au gouvernement dans le projet et créé des espaces paysagers pour permettre davantage de lumière naturelle dans l’environnement souterrain autrement sombre. Ainsi, le projet propose aux usagers une transformation unique, agréable, verte et fluide de l’arrivée au métro jusqu’à l’évolution urbaine.

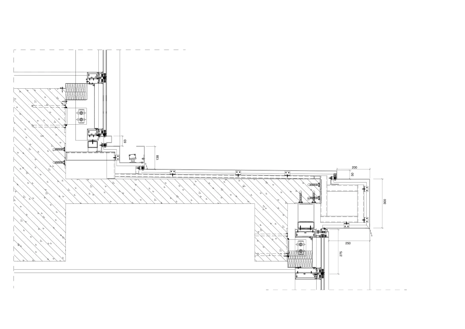
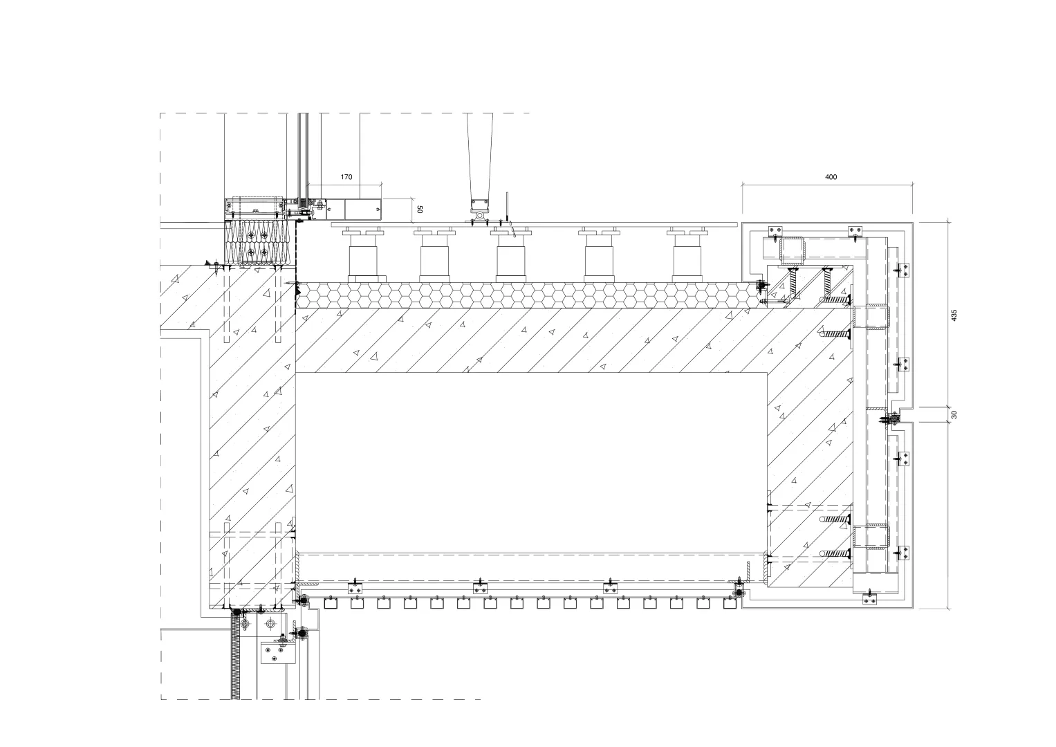
Le projet est défini par la notion de « Vallée » pour les niveaux souterrains et de « Nuage » pour les étages supérieurs. La « Vallée » est liée à l’échelle humaine et à une intégration naturelle de la verdure et de l’eau. La vallée est définie architecturalement par des dalles décalées qui offrent des terrasses ou des auvents pour les niveaux inférieurs. Des escaliers et des ascenseurs stratégiquement placés relient les niveaux souterrains aux étages supérieurs et, finalement, au pont piétonnier du troisième niveau, connecté à un site culturel voisin.
Pour les niveaux supérieurs, Superimpose Architecture a choisi une approche plus calme pour l’extérieur. L’apparence est définie par la répétition d’éléments verticaux. Ces « nervures » en aluminium sont percées et permettent un système de ventilation caché. La masse de la tour est divisée en deux parties par un grand bloc de verre, afin d’encore mieux fractionner la masse et créer deux « niveaux spéciaux pour les locataires » destinés à ceux qui ont besoin d’espace de exposition, d’une zone plus ouverte ou de quelque chose d’autre que des étages de bureau standards.

La Ville céleste TOD correspond désormais à une nouvelle vie urbaine et est officiellement terminée. Elle utilise des modules diversifiés et un aspect élégant pour créer une harmonie entre fonctionnalité et transport, atténue certaines contradictions entre transport et usage des terres durant le développement urbain, offrant ainsi aux habitants une nouvelle façon de vivre et davantage d’opportunités pour interagir avec la ville et la nature.
- Description du projet et images fournies par Superimpose Architecture
















Planification








Need a renovation specialist?
Find verified professionals for any repair or construction job. Post your request and get offers from local experts.
You may also like

Grand maison de plage Sencillo par cmDesign Atelier à Lagos, Nigeria

Maison Sens de UP3 Arquitetura à Rio de Janeiro, Brésil

Restaurant Seraf Vadi par l'architecte Esim Kozanli : un mélange harmonieux de culture et de design moderne

Créez le coin de travail le plus emblématique et rendez-le confortable
Plus d'articles:
Grand maison de plage Sencillo par cmDesign Atelier à Lagos, Nigeria
Maison Sens de UP3 Arquitetura à Rio de Janeiro, Brésil
Restaurant Seraf Vadi par l'architecte Esim Kozanli : un mélange harmonieux de culture et de design moderne
Créez le coin de travail le plus emblématique et rendez-le confortable
Installation d'un canapé rouge dans le salon
Sept raisons pour lesquelles un thermostat numérique est nécessaire
Teintes d'orange pour l'intérieur
Teintes de gris dans le décor moderne