Cómo nuestra heroína sin diseñador organizó un espacio acogedor para su familia: todo pensado hasta el más mínimo detalle
Inspírate y toma ideas interesantes para tu propio hogar
Nuestra heroína Nadia se sumergió por completo en la decoración de su apartamento de tres habitaciones en una nueva construcción. Vive allí con su familia: esposo y tres hijos. «Fue difícil, pero muy interesante. Yo me encargué de todo el proceso: tuve que ser no solo directora del proyecto, sino también diseñadora», comparte Nadia. «Al final logramos crear un espacio donde cada uno se siente cómodo y a gusto».
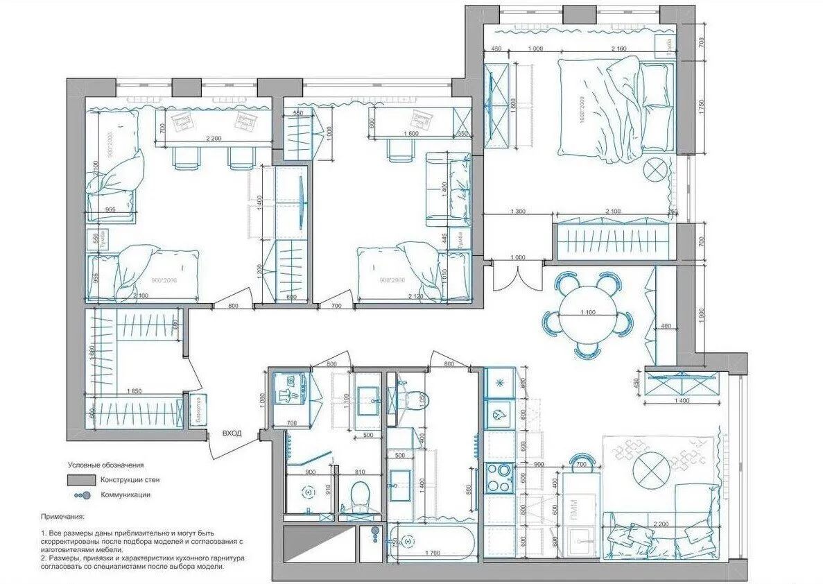
Sobre la distribución y el remodelado
En un apartamento de 92 metros cuadrados se crearon tres dormitorios, una cocina-comedor, dos baños y un vestidor. El proceso de remodelación resultó ser una auténtica prueba de resistencia. El primer contratista no consideró muchos detalles y los materiales de construcción fueron entregados sobre una capa de cemento aún sin secar. Esta demora requirió tiempo y paciencia de la familia. Pero en lugar de desesperarse, Nadia tomó el control. Alquiló un deshumidificador industrial y en solo tres días resolvió la situación.
En el suelo se colocó una tabla de ingeniería con el patrón de una navidad inglesa. Caminar descalzo sobre este tipo de suelo es un verdadero placer. Las paredes están pintadas con una pintura clara y decoradas con molduras. Las puertas altas, que alcanzan los 2,90 metros, resaltan el estilo del interior y transmiten una sensación de amplitud.

«En la remodelación me esforcé mucho por hacerlo yo misma: pinté las paredes, pegué papel pintado e incluso intenté hacer decoración en las paredes», relata Nadia. «El 26 de diciembre los trabajadores comenzaron a colocar el piso y el 30 de diciembre nos mudamos a nuestra nueva casa: casi sin muebles, pero con el corazón lleno de alegría».

Sobre la cocina-comedor
El lugar favorito de toda la familia es la cocina-comedor. Nadia diseñó por sí misma el diseño de la cocina y el mueble modular y lo encargó según sus bocetos. El sistema de cocina lineal incluye puertas con paneles que se relacionan con las molduras en las paredes. El mostrador bar divide el espacio y lo hace más acogedor.

El área de comedor está decorada con una mesa redonda y sillas blandas, encima hay una bonita lámpara colgante, y al lado un armario con vitrina integrada con iluminación. Las paredes están decoradas con pósters familiares que añaden comodidad y personalidad al espacio.

En la zona del salón se ha instalado un cómodo sofá, frente a él una zona de TV. La elección del televisor no fue casual ni espontánea. Fue un paso lógico para crear un espacio cómodo en el salón que se convirtió en el centro de la comunicación familiar. Nadia eligió la Estación Pro MiniLED con Asistente Alisa de Yandex. Las especificaciones técnicas de este modelo inspiraron confianza, pero la característica principal fue sin duda su sistema inteligente.

«Con la Estación Pro podemos encontrar todo lo que el alma desee: desde las últimas películas hasta las series favoritas. Y se puede controlar con voz: entiende órdenes, ejecuta tareas fácilmente e intuitivamente encuentra todo lo necesario sin exigir esfuerzos adicionales, algo que mi esposo valoraba especialmente».

Pero las virtudes de este televisor no se limitan únicamente a la facilidad de uso. La imagen es clara y detallada, mientras que el sonido proporciona una inmersión total en lo que ocurre en la pantalla. Con altavoces que ofrecen un sonido equilibrado y graves potentes, las veladas familiares viendo películas se vuelven particularmente atmosféricas. Cada sonido, cada efecto crea una sensación increíble de estar realmente dentro de la película.

Para su hijo adolescente que disfruta no solo ver películas sino también jugar videojuegos, la Estación Pro MiniLED de Yandex se convirtió en un verdadero tesoro. Con ella, su hijo puede hacer preguntas y recibir sugerencias: el asistente AI Alisa entiende en tiempo real en qué juego está jugando el usuario. Analiza lo que sucede en la pantalla y proporciona sugerencias.

Estación Pro MiniLED con Asistente Alisa de Yandex, 55” KSF QLED, 4K UHD, negro
Estación Pro MiniLED con Asistente Alisa de Yandex, 65” KSF QLED, 4K UHD, negro
Estación Pro MiniLED con Asistente Alisa de Yandex, 75” KSF QLED, 4K UHD, negro
En cuanto al dormitorio
El dormitorio se diseñó teniendo en cuenta las necesidades futuras. Nadia previó la ubicación de tomas eléctricas para el televisor, pero un pequeño error al pedir la cama dejó las tomas sin cubrir. Con paneles de polímero duro, Nadia creó una bonita pared que ocultaba los cables. Los moldes de techo y piso hechos del mismo material añadieron coherencia al diseño.

Las habitaciones infantiles
La habitación de las niñas está decorada con tonos suaves rosados. Aquí hay dos camas, un gran escritorio y espacios de almacenamiento. Para el hijo se creó un espacio acogedor con cama, sofá y escritorio. Todo es simple: se puede trabajar con productividad y descansar cómodamente.


Sobre el vestíbulo y los baños
El vestíbulo recibe a los invitados con azulejos en blanco y negro, mientras que el gran vestidor del lado derecho permite almacenar todas las prendas sin desorden.

En los baños también todo está pensado hasta el más mínimo detalle. En el baño infantil hay ducha, lavadora y secadora, además de armarios integrados para almacenamiento. El baño de adultos se convirtió en un auténtico oasis con bañera de mármol fundido, lavamanos espacioso y abundante espacio de almacenamiento. Incluso el cepillo y el papel higiénico están escondidos con elegancia detrás de las puertas de los armarios.

El remodelado y decoración de un apartamento siempre es un proceso complejo. Pero este proyecto inspira mostrando que con inteligencia y paciencia se puede crear un espacio donde sea cómodo y fácil vivir para una familia grande con muchos hijos.
Recorrido de la habitación (32 minutos)
Need a renovation specialist?
Find verified professionals for any repair or construction job. Post your request and get offers from local experts.
You may also like

Balcón en un apartamento de estilo Khrushchev: cómo convertir 4 metros cuadrados en una habitación adicional

Antes y después: cómo se transformó con estilo y bajo presupuesto la cocina en una sola habitación de 38 m²

Cómo renovar una casa de estilo júpiter: actualización elegante de una dúplex de 42 m² (+fotos antes)

¿Por qué el diseñador pintó la puerta del color de la pared y tú también deberías hacerlo?
Más artículos:
Balcón en un apartamento de estilo Khrushchev: cómo convertir 4 metros cuadrados en una habitación adicional
Antes y después: cómo se transformó con estilo y bajo presupuesto la cocina en una sola habitación de 38 m²
Cómo renovar una casa de estilo júpiter: actualización elegante de una dúplex de 42 m² (+fotos antes)
¿Por qué el diseñador pintó la puerta del color de la pared y tú también deberías hacerlo?
Cómo convertir una habitación en dos: 7 consejos efectivos
Cómo decorar elegante y llamativamente un baño de 6 m²
Reforma elegante de una casa de estilo khrushchyovka por 150 mil rublos
Mueble de tendencia: 10 mejores soluciones para su hogar