Antes y después: transformamos una espantosa casa de estilo krushchev en una acogedora dos habitaciones por 1,5 millones de rublos
Un ligero cambio en la distribución, manteniendo el antiguo parqué y elementos estructurales del período soviético
Esta dos habitaciones fue transformada por el arquitecto Anna Karacheva. La vivienda se encuentra en el primer piso con ventanas al norte, lo que significaba escasa luz natural. Por ello, la principal tarea fue crear un interior moderno y luminoso con una mínima cantidad de muebles voluminosos.
Lugar: ciudad de San Petersburgo
Metros cuadrados: 42 m²
Altura del techo: 2,45 m
Cantidad de habitaciones: 2
Baño: 1
Presupuesto: 1,5 millones de rublos
Diseño y fotos: Anna Karacheva
Antes de la reforma, esta vivienda representaba un espacio oscuro y anticuado que no había sido renovado desde los tiempos soviéticos. Todas las habitaciones estaban muy congestionadas con muebles. Las paredes y puertas desgastadas solo reforzaban la sensación de abandono.
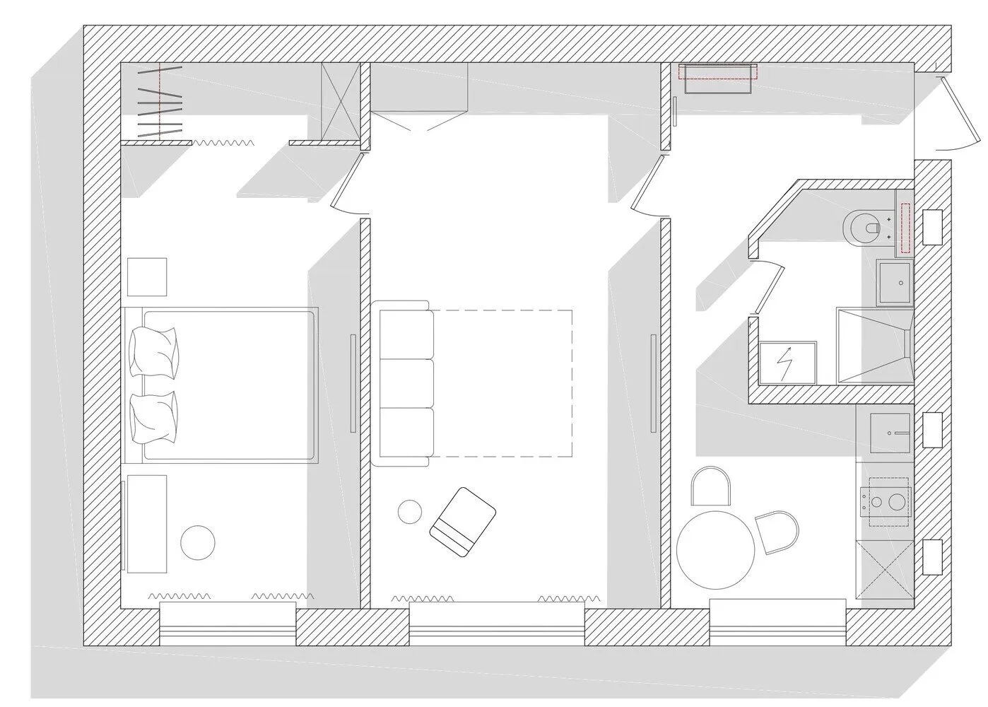
En cuanto a la distribuciónDurante la reconfiguración se eliminó la división entre el baño y el cuarto de baño, convirtiéndolo en un baño combinado. La ventana entre la ducha y la cocina fue trasladada para colocar una cabina de ducha. Se ampliaron los huecos en la cocina y el almacén. En la vivienda hay un vestíbulo, una cocina independiente, una sala de estar con paso, una habitación con guardarropa y un baño combinado.
Después del remodeladoEl armario se montó con módulos estándar listos para usar y se colocó a lo largo de una pared. Se eligió un refrigerador compacto con dimensiones no estándar (ancho de 49 cm), una cocina de dos quemadores. La zona de comedor se instaló frente a la ventana — una mesa redonda con una sola pata y dos sillas blandas. La tubería del gas fue reubicada debajo de la encimera de la cocina, lo que permitió organizar un faldón de azulejos y colocar tomas eléctricas para electrodomésticos.



Después del remodeladoEn todos los espacios, excepto el baño, se utilizaron papel pintado de fieltro denso para decorar las paredes, lo que permite ocultar irregularidades y crear una atmósfera acogedora. En la sala de estar y el dormitorio se mantuvo y restauró el parqué original, que añade calidez y una pizca de nostalgia. Los radiadores de hierro fundido también se decidieron dejarlos — solo se limpiaron y repintaron.

Después del remodeladoEn el dormitorio también solo se dejó lo estrictamente necesario: una cama matrimonial con una estantería al lado y un escritorio junto a la ventana. Encima del escritorio se colocó un espejo que puede usarse como tocador. El toldo de lino transparente en las ventanas permite que entre la luz natural y crea una atmósfera acogedora tanto en el dormitorio como en la sala de estar.


Después del remodeladoEn el vestíbulo y la cocina se colocó un revestimiento de cerámica de grano similar al madera, lo que ayuda a ampliar el espacio y crear una combinación armónica con el parqué existente. La pared curva se dejó sin cambios. En el vestíbulo se añadió un perchero de pared, una repisa para zapatos y un espejo de cuerpo completo para comodidad.


Después del remodeladoCombinando el baño y la ducha permitió colocar en un espacio reducido un inodoro, una ducha y una lavadora con lavabo independiente y estantería debajo. El secador de toallas fue reubicado, colocándolo en una pared fría que limita con el acceso.


¿Quieres que tu proyecto sea publicado en nuestro sitio web? Envíanos fotos del interior a wow@inmyroom.ru.Need a renovation specialist?
Find verified professionals for any repair or construction job. Post your request and get offers from local experts.
You may also like
Más artículos:
Mueble de tendencia, decoración y textil: 10 hallazgos
Pasillo estrecho: 8 trucos que convierten un pasillo «bolso» en un recibidor elegante
Vida familiar de Reese Witherspoon: cómo la estrella concilia carrera y maternidad
Cómo organizar una entrada con efecto sorpresa en un apartamento de 41 m²
Balcón en un apartamento de estilo Khrushchev: cómo convertir 4 metros cuadrados en una habitación adicional
Antes y después: cómo se transformó con estilo y bajo presupuesto la cocina en una sola habitación de 38 m²
Cómo renovar una casa de estilo júpiter: actualización elegante de una dúplex de 42 m² (+fotos antes)
¿Por qué el diseñador pintó la puerta del color de la pared y tú también deberías hacerlo?