Cómo organizar una entrada con efecto sorpresa en un apartamento de 41 m²
¡Inspirate y toma nota de soluciones interesantes!
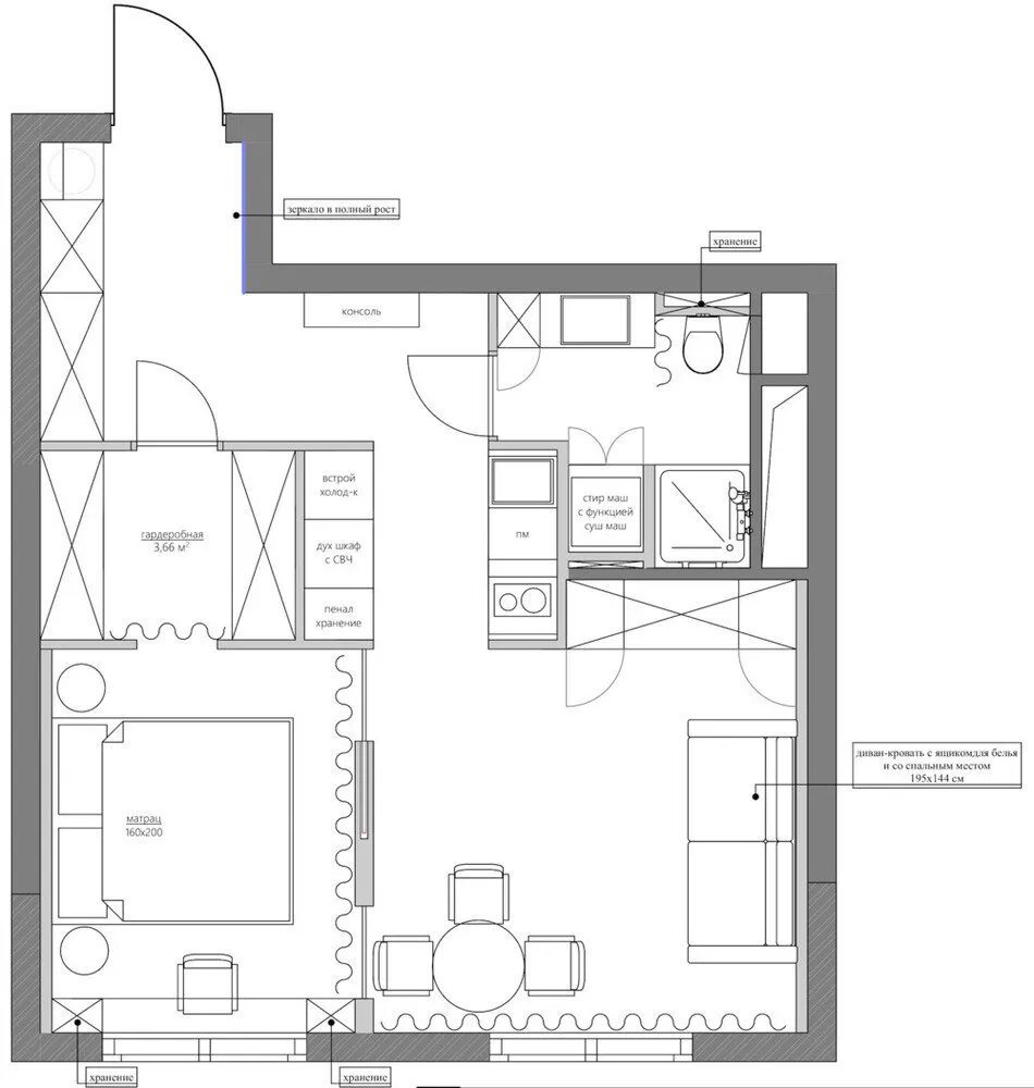
La diseñadora María Sinelnikova creó un interior brillante y no convencional para un pequeño apartamento de 41 m² en una nueva construcción en Moscú. Utilizó soluciones audaces e innovadoras, aprovechando cada detalle para funcionalidad y estilo. Veamos cómo quedó la entrada.

La entrada tiene una forma en forma de G, lo que permitió usar al máximo el espacio disponible. La zona de entrada está decorada con un tono rojizo intenso, que crea una atmósfera acogedora y añade profundidad. Este color se ve en todo: paredes, techo, puerta de entrada y fachadas del armario empotrado, lo que refuerza la unidad del estilo.
En el suelo de la zona de entrada se colocó granito cerámico con un interesante patrón. Añade dinamismo al interior y facilita el mantenimiento. Más allá de la entrada, se usa madera ingenieril como revestimiento del suelo principal. 
Todas las soluciones de almacenamiento fueron hechas según bocetos personalizados, lo que permitió adaptar la mobiliario a las necesidades del cliente. A la derecha de la entrada está el armario para ropa, una consola práctica para accesorios y un sofá de tres plazas. La pared frente a la entrada fue completamente espejada, lo que amplía visualmente el espacio y aporta luz.
El resto de la entrada está decorado con un tono blanco suave, que crea contraste con el color rojizo. La pared visible desde la sala está decorada con moldeados y complementada con un espejo en marco clásico de madera. Debajo hay una consola transparente que aporta ligereza y elegancia al diseño. 
La entrada se convirtió en un espacio moderno y funcional gracias a las decisiones creativas del diseñador. Los elementos llamativos y el diseño cuidadoso crearon una atmósfera acogedora y contemporánea que recibe a los invitados con calidez y elegancia.
Need a renovation specialist?
Find verified professionals for any repair or construction job. Post your request and get offers from local experts.
You may also like

Muebles modernos y elegantes para su interiores: 10 hallazgos actuales

Reparación de apartamentos estalinistas por 500 mil rublos: cómo conservar el espíritu de la época y añadir comodidad

Cómo una diseñadora principiante decoró una dúplex para sí misma: soluciones sencillas pero elegantes

Dónde se filmó 'Moscú no llora': secretos de las viviendas de las protagonistas
Más artículos:
Muebles modernos y elegantes para su interiores: 10 hallazgos actuales
Reparación de apartamentos estalinistas por 500 mil rublos: cómo conservar el espíritu de la época y añadir comodidad
Cómo una diseñadora principiante decoró una dúplex para sí misma: soluciones sencillas pero elegantes
Dónde se filmó 'Moscú no llora': secretos de las viviendas de las protagonistas
Cómo vivía Marilyn Monroe: el horario de la mujer más deseada de América
Cómo servir un desayuno con servicio vintage sin temer a que se rompa
Cómo organizar el almacenamiento de cosas en una sola habitación: 10 ideas geniales
Cómo convertir un apartamento «destruido» en un espacio elegante sin grandes gastos