Colorful dos cuartos de 70 m² con entrada roja y guardarropa de vidrio
Mix de colores y decisiones atrevidas: seguro que encontrarás inspiración aquí
Originalmente, esta apartamento de dos habitaciones estaba planeado para alquiler, pero durante la renovación los clientes entendieron que querían usarlo para ellos mismos. El diseño creado por la diseñadora Olga Ustina está en estilo moderno de constructivismo y vanguardia, y conecta armoniosamente el espacio interior con la fachada del edificio.
Lugar: Ciudad de Moscú, proyecto «ZilArt»
Superficie: 70 m²
Altura de techos: 2,7 m
Número de habitaciones: 2
Baño: 1
Presupuesto: 7 millones de rublos
Diseño: Olga Ustina
Fotos: Viktor Petrushin
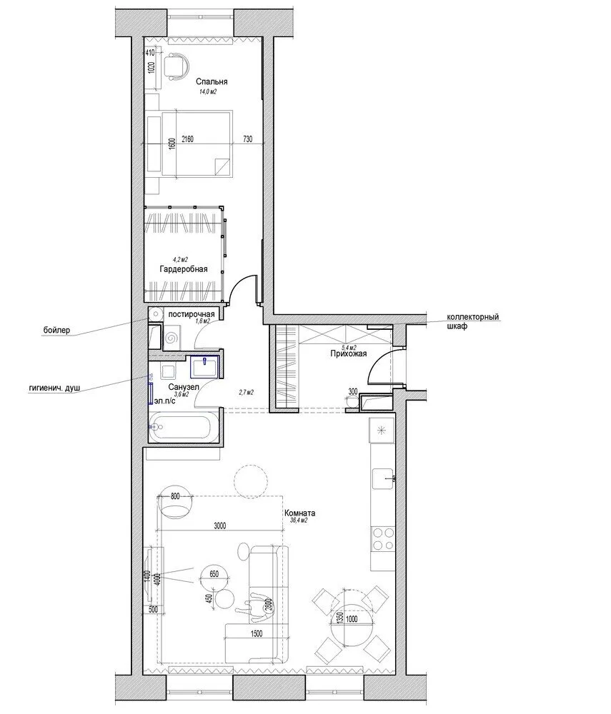
Sobre la distribuciónLa distribución del constructor fue modificada. Se eliminó la pared entre la cocina y el salón, permitiendo crear un espacio abierto y libre. Además, se hizo una pequeña corrección en la entrada y se destacó una habitación con armario de vidrio en el dormitorio. Como la zona de entrada está centrada en el apartamento, todos los flujos logísticos se distribuyen en forma de abanico sin cruzarse, creando zonas funcionales separadas.
Sobre la cocina-salónLa zona de cocina está completamente equipada: refrigerador separado con tono amarillo, microondas integrados, lavavajillas, encimera y horno, extractor con filtro de carbón. La encimera de piedra artificial combina estilosa con la lavadora integrada, ofreciendo un proceso de trabajo cómodo. La iluminación adicional de la superficie de trabajo y los estantes mejora la visibilidad y crea una atmósfera acogedora en la cocina.



El revestimiento del suelo está hecho con tablero de ingeniería con diseño “puente” – una solución práctica y cómoda para áreas del salón, pasillo y dormitorio. En la entrada, baño y lavadero se usa azulejo rojo que complementa armoniosamente la idea general del interior.
Las paredes de las habitaciones están niveladas y pintadas en blanco, ayudando a iluminar visualmente el espacio ya que el apartamento es bastante oscuro. Un listón color rojo pasa por todo el perímetro de las habitaciones sin interrupción incluso en puertas con marcos ocultos.

Una estantería llamada “Mondrian” hecha con los tonos principales del interior fue diseñada según los bocetos del diseñador. La idea de un sillón colgante tejido fue propuesta por el cliente mismo. El sillón tiene dos puntos de suspensión para diferentes usos: lectura tranquila y movimiento suave.
Sobre el dormitorioEn el dormitorio también se usan materiales decorativos en tonos claros. Una de las paredes está decorada como “ladrillo”, manteniendo así la textura original de la estructura. El colchón planeado para decorarse con una pintura mural hecha por la hija del cliente — una artista profesional, pero esta idea aún no se ha realizado. En su lugar aquí están colocadas sus obras gráficas antiguas.


En el dormitorio se ha reservado espacio para un armario con estructuras metálicas ligeras y vidrio ondulado. Esta solución visualmente mantiene el volumen de la habitación. Con la iluminación encendida, el armario parece un cubo brillante. La puerta corredera ayuda a ahorrar espacio. Toda la estructura fue hecha bajo pedido, aumentando el costo, pero el resultado justifica la inversión.


Sobre la entradaLa entrada está completamente decorada con color rojo — “cubo rojo” se ve atrevido, moderno y elegante. Las ventanas de vidrio de 40 cm de altura en el techo de la entrada, pasillo y baño zonifican visualmente el espacio y lo unen con una idea común, simplificando la percepción general del “cubo rojo”.


Sobre el bañoEl espacio del baño luce armonioso gracias al contraste entre azulejos blancos con juntas rojas, azulejo rojo en el suelo y graciosos grifos negros y accesorios. Diseño cuidadoso da a la habitación un aspecto moderno, y todos los elementos combinan fácilmente entre sí. Bañera completa ofrece un lugar ideal para relajarse y sentirse tranquilo, creando una atmósfera acogedora y cómoda. El cuadro sobre la bañera añade luz natural al espacio.


¿Quieres que tu proyecto sea publicado en nuestro sitio web? Envíanos las fotos del interior a wow@inmyroom.ru.Need a renovation specialist?
Find verified professionals for any repair or construction job. Post your request and get offers from local experts.
You may also like

Cómo decorar una pared destacada en la sala de estar: 6 ideas

Casas-donut: cómo en Moscú aparecieron edificios residenciales en forma de anillos

Color — la clave para una impresión memorable: 5 recibidores pequeños que encantan desde la primera vista

Cómo organizar un espacio de trabajo en una vivienda pequeña: 5 ideas de proyectos reales
Más artículos:
Cómo decorar una pared destacada en la sala de estar: 6 ideas
Casas-donut: cómo en Moscú aparecieron edificios residenciales en forma de anillos
Color — la clave para una impresión memorable: 5 recibidores pequeños que encantan desde la primera vista
Cómo organizar un espacio de trabajo en una vivienda pequeña: 5 ideas de proyectos reales
Verano en casa: 7 ideas sencillas para renovar el interior sin reforma
El diseñador explicó cómo usar el espacio alrededor de la ventana de la cocina: 7 ideas
Experiencia personal: 7 consejos para quienes planean hacer flipping
Брежневка contra krushchyovka: dónde vivir más cómodo