Cómo un diseñador decoró la cocina en un apartamento estalinista para sí mismo: 5 ideas geniales
Soluciones que son fáciles de repetir en tu propio interior
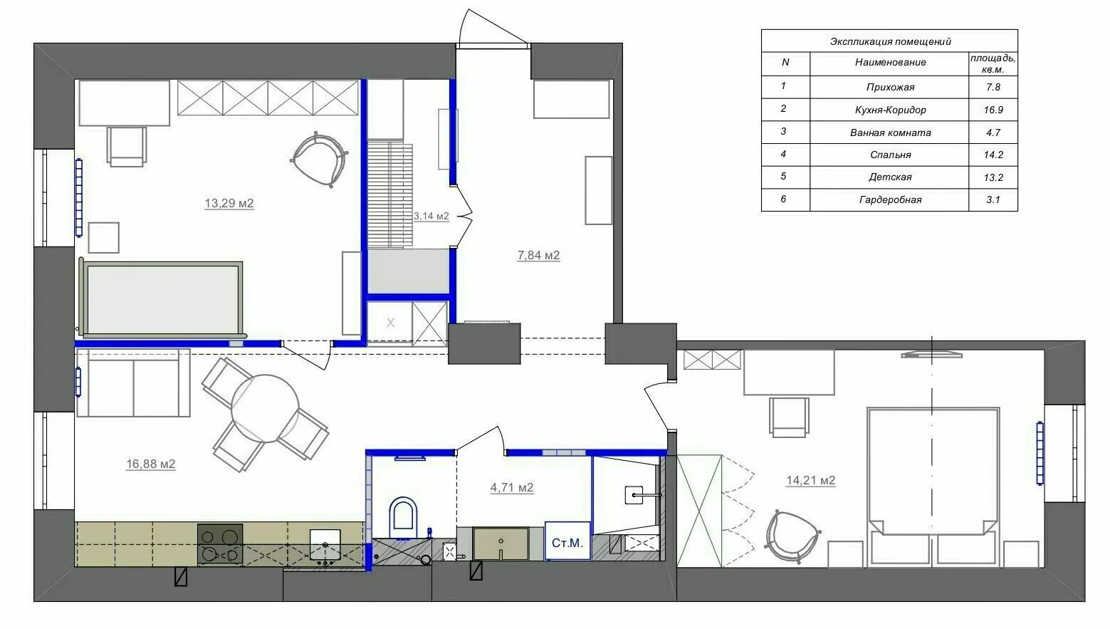
Esta hermosa cocina en un apartamento de estilo estalinista fue decorada por la diseñadora Ekaterina Kotalievskaya para su propia familia. En el antiguo edificio se realizó una reconstrucción coordinada: se cerró la abertura entre la cocina y el pasillo, previamente renunciando al gas. El diseño y el mobiliario de la cocina fueron pensados hasta los mínimos detalles. Te contamos sobre las características del diseño de este espacio brillante y funcional.
Una solución de color efectivaPara decorar las paredes eligieron tonos base claros que dan una sensación de espacio y ligereza. Una de las paredes se destacó con un color azul acentuado, que capta la atención y añade profundidad al espacio. El conjunto de cocina también está hecho en tono azul, contrastando hermosamente con la losa del fogón de un tono mostaza.
Estética de la viga de hormigónUna de las hallazgos interesantes fue conservar la viga de hormigón que pasa por toda la vivienda. Esta solución luce original y le da carácter al espacio. La unión entre las paredes y el techo está redondeada, lo que visualmente aumenta la altura del techo.
Bloques de vidrio de modaPara asegurar suficiente luz que pueda "deslizarse" por toda la vivienda, se integró una línea de bloques de vidrio en la pared entre la cocina y el cuarto de niños. Esta solución aporta relajación y luz, además de unir visualmente las dos zonas. Además, hay una "ventana" hecha con bloques de vidrio entre la cocina y el baño, creando una sensación de apertura y conexión entre los espacios.
Decoración inusual de la ventanaLa ventana en la cocina se destaca con color, permitiendo crear una sensación de ventana francesa alargada. Debajo de ella, la diseñadora ocultó cuidadosamente el refrigerador en un armario, haciendo que el espacio parezca más ordenado y funcional.
El centro de la cocina es una mesa redondaEn el centro de la cocina está colocada una mesa redonda para comedor cubierta con un mantel. Los asientos blandos de forma redonda crean una atmósfera acogedora. Sobre la mesa hay un luminario destacado que no solo ilumina el espacio, sino que también es un elemento decorativo de estilo.
Presta atención al video:Cada solución en esta cocina está cuidadosamente pensada hasta los últimos detalles. La cocina se convirtió en un excelente ejemplo de cómo combinar belleza y comodidad, creando un lugar cómodo y elegante en la casa.
Need a renovation specialist?
Find verified professionals for any repair or construction job. Post your request and get offers from local experts.
You may also like

Antes y después: cómo renovaron increíblemente la cocina en una pequeña estalinista

Idea para un apartamento de dos habitaciones: trasladaron el baño a la cocina y resultó genial

5 super sencillas ideas de almacenamiento para apartamentos pequeños, que conocías pero olvidaste

Cómo alejarse de la depresión invernal: 7 cambios en el interior que mejoran el estado de ánimo
Más artículos:
Antes y después: cómo renovaron increíblemente la cocina en una pequeña estalinista
Idea para un apartamento de dos habitaciones: trasladaron el baño a la cocina y resultó genial
5 super sencillas ideas de almacenamiento para apartamentos pequeños, que conocías pero olvidaste
Cómo alejarse de la depresión invernal: 7 cambios en el interior que mejoran el estado de ánimo
Diseñador en shock: cómo hacer el remodelado en un apartamento de estilo Khrushchyov y ahorrar millones
7 errores críticos en el remanufactura del baño (que resultarán caros)
Habitación infantil: ideas creativas y soluciones funcionales para 2025
Antes y después: transformación económica de una dúplex de estilo khrushchev 44 m²