Idea para un apartamento de dos habitaciones: trasladaron el baño a la cocina y resultó genial
Ideas inspiradoras para un interior hermoso y funcional
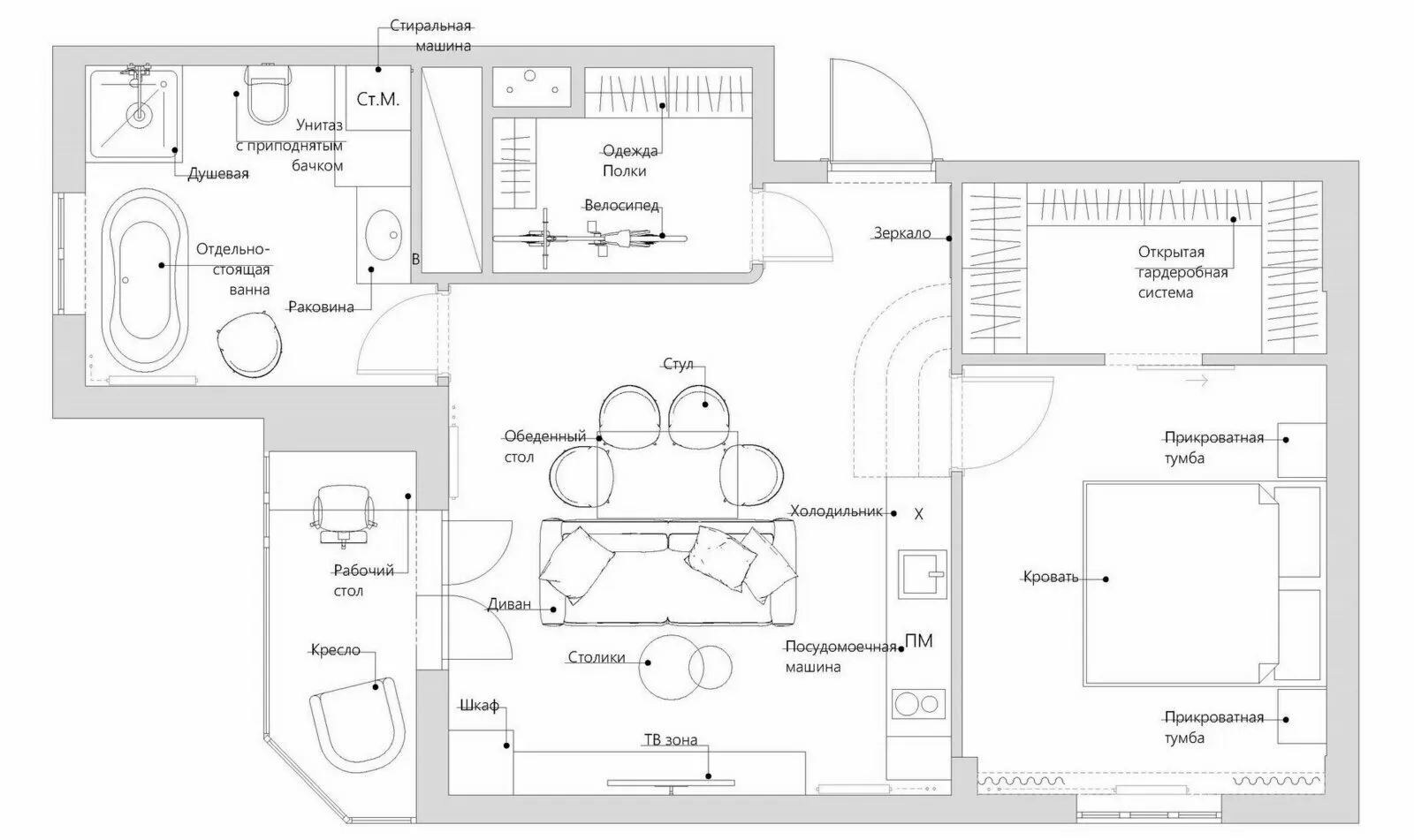
La diseñadora Anastasia Potapova creó un interior único basado en una reconfiguración global de un apartamento de dos habitaciones de 59 m². Uno de los momentos clave del proyecto fue decidir trasladar el baño al lugar de la cocina, permitiendo así cumplir el sueño de la cliente de tener un baño espacioso como un lugar acogedor y cómodo para relajarse.

El apartamento se encuentra en un edificio moscovita rehabilitado, en el segundo piso. Debajo hay espacios comerciales, por lo que esta reconfiguración cumple con las normas.
Beneficios de la nueva solución:
- Creación de un baño luminoso y espacioso.
- Opción para instalar una ventana con vista al exterior, llenando el espacio con luz natural.
- Mejora de la ergonomía del apartamento gracias al uso óptimo del área disponible.

La combinación de distintos materiales de acabado crea una atmósfera única. Parte de las paredes está pintada con un tono natural verde que aporta frescura y ligereza. Otra parte está revestida con azulejos hechos a mano, desarrollados bajo pedido con un diseño exclusivo hecho especialmente para este proyecto. Una pared destacada, parcialmente hecha de ladrillo, se ilumina para crear una atmósfera acogedora y agradable.
Otros interesantes diseños:
- Baño junto a la ventana: una de las principales solicitudes de la cliente se cumplió, generando una sensación de acogedor confort.
- Lámpara: especialmente diseñada para este proyecto. Los cristales Swarovski añaden elegancia y crean un juego de luces.
- Sanitarios retro: aportan notas de encanto y encanto clásico al interior.
- Altas estanterías: hechas de madera natural, ofrecen suficiente espacio para almacenar accesorios.
- Cestas trenzadas: soluciones estilosas para almacenar cosméticos y accesorios que se integran armoniosamente en el diseño general.
Fíjate en el video:
El proyecto de Anastasia Potapova demuestra cómo transformar un espacio considerando las preferencias individuales del cliente. La reconfiguración única y soluciones de diseño elegantes crean un interior funcional y atractivo, donde el acogedor y el estilo se combinan armoniosamente.
El interior de este apartamento completo está aquí
Un apartamento de dos habitaciones de 59 m² con estilo vintageNeed a renovation specialist?
Find verified professionals for any repair or construction job. Post your request and get offers from local experts.
You may also like

Preparando comidas saludables: Qué preparar para el desayuno después de las fiestas — 15 recetas ligeras

Antes y después: transformación elegante de una cocina pequeña en un apartamento de estilo brezhnev

Antes y después: impresionante remodelación en una treseca de 56 m² en un bloque tipo krushchev

Diseño de interiores según chakras: cómo crear un espacio energéticamente correcto
Más artículos:
Preparando comidas saludables: Qué preparar para el desayuno después de las fiestas — 15 recetas ligeras
Antes y después: transformación elegante de una cocina pequeña en un apartamento de estilo brezhnev
Antes y después: impresionante remodelación en una treseca de 56 m² en un bloque tipo krushchev
Diseño de interiores según chakras: cómo crear un espacio energéticamente correcto
Venta de vivienda después del divorcio y aumento de impuestos: qué cambiará en la legislación en 2025
Color 2025 de Pantone «Mokko Moss»: cómo aplicarlo en el interior sin equivocarte
Cómo se decoró una encantadora micrococina en una sola habitación
Cómo decoraron una bañera de 4 m² con sus propias manos