La transformación más increíble de una diminuta casa de estilo chruschevka de 29 m² (+ fotos antes y después)
En una pequeña área se colocaron la habitación de dormir, la sala de estar con sofá y televisor, un espacio de trabajo y una cocina
Ciudad: Moscu, Akadémica
Área: 29 m²
Habitaciones: 1
Baños: 1
Altura del techo: 2,6 m
Diseñador: Olga Zikhareva
Fotógrafo: Olga Zikhareva
La diseñadora Olga Zikhareva aprovechó al máximo el espacio de una pequeña casa de 29 m² en la que vive una joven. Era importante tener en cuenta la total legalidad de la reconfiguración y equipar el apartamento según los deseos de la cliente: delinear zonas para descanso y recepción de invitados, integrar toda la tecnología necesaria. A pesar de las restricciones en trabajos eléctricos y zonas habitables, se logró crear un interior acogedor y funcional con detalles interesantes.
Una transformación increíble de una vieja casa chruschevka
Basura de 57 m². Ver recorrido.
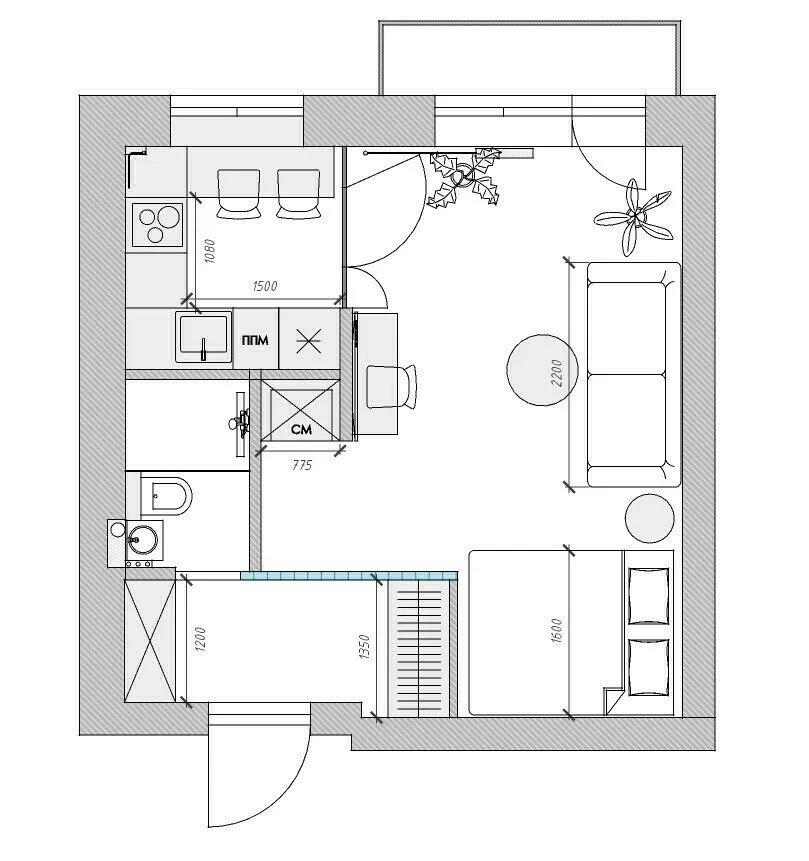
Planificación
Durante la reconfiguración se eliminaron las particiones y se construyeron nuevas. La habitación se combinó con la cocina, dividiéndola en partes mediante el uso del color y la forma. El área húmeda se mantuvo en su lugar original. De acuerdo con las normas de reconfiguración, entre la cocina con gas y la habitación debe haber una puerta o una partición plegable. Se resolvió el problema instalando puertas de vidrio con arco metálico negro como paso. Las configuraciones de los armarios en el vestíbulo se calculan con precisión milimétrica.

Cocina
En cuatro metros cuadrados se logró organizar una cocina completa con lavavajillas, microondas, horno, placa de cocción de tres hornos y refrigerador. Los armarios superiores hasta el techo aumentaron el espacio de almacenamiento. El delantal de la cocina está hecho con azulejos blanco y negro en estilo retrófito. La zona de comedor se destaca con un color verde profundo y se decoró como una barra que continúa la superficie del mostrador. Encima hay un luminario colgante original.


Taburetes estilizados frente a la barra pueden ajustar la altura del asiento hasta la altura estándar de un silla si es necesario colocarlos junto a una mesa común.
Sala de estar
La zona de la sala de estar está decorada con luz. Las paredes blancas dan una hermosa interacción de sombras. El sofá claro y brillante puede transformarse en un espacio adicional para dormir. Detrás se encuentra una estantería con estantes abiertos para decoración y plantas. Esta estructura está conectada mediante un marco metálico negro que se relaciona en color y textura con el perfil de la puerta de vidrio en la cocina. El punto destacado de la sala de estar es un gran cesto tejido artesanal.
Enfrente del sofá está la zona de televisión. Se ha decorado de una manera no muy común. En lugar de una típica repisa para televisor se colocó una mesa y silla de madera, resultando en un espacio de trabajo compacto, original y funcional.


Habitación de dormir
Las paredes en la habitación de dormir están pintadas de verde, creando un contraste y delimitando visualmente el espacio. Aquí se colocó una cama matrimonial con base metálica y una pequeña repisa similar al diseño del escritorio frente a ella. En la cabecera se colgaron dos luminosos focos negros como elementos destacados.



Vestíbulo
Los bloques de vidrio actúan como divisor visual entre la entrada y las zonas habitables. Permiten dejar entrar luz y dan elegancia al diseño general. El almacenamiento en el vestíbulo está organizado en un armario cuyas puertas se relacionan con la decoración de la vivienda hecha con madera y elementos negros.


Baño
El baño combinado es muy pequeño. Se intentó aprovechar al máximo cada centímetro del espacio disponible. La cabina de ducha está separada con puertas de vidrio de perfil negro (parecen la puerta de la cocina). Encima de la instalación se colocaron cajones para almacenamiento. Allí también está oculto el acceso a las instalaciones.


Fotos antes



Need a renovation specialist?
Find verified professionals for any repair or construction job. Post your request and get offers from local experts.
You may also like
Más artículos:
Funcional apartamento de dos habitaciones de 42 m² en estilo minimalismo
Interior suave de cocina de 7 m² con un amplio conjunto
Antes y después: transformación increíble de una estalinca de 90 m²
Estilo moderno en remodelación obsoleta de 76 m²
Agradable apartamento de 40 m² para una bloguera
Novedades de esta primavera: las 10 mejores encontrar para tu interior
Cómo crear un huerto elegante y con estilo: 9 ideas sencillas para decorar las macetas
Luz y espacio: acogedor diseño de 69 m² en Kazán para una médica