Agradable apartamento de 40 m² para una bloguera
El diseñador Alena Matiso va transformado un apartamento estándar del constructor en una lujosa euromanual en estilo clásico
El diseñador Alena Matiso, fundadora de Matis.interior, decoró una pequeña euromanual para una bloguera que actualmente vive sola con su gato favorito. La cliente quería obtener un espacio monocromo claro en tonos grises, pero que pareciera impactante y moderno, funcional y práctico para vivir. Importante: cada rincón del apartamento debía verse bien en las fotos y ser estético.
Ciudad: San Petersburgo
Metro: 40 m²
Habitaciones: 2
Baño: 1
Altura del techo: 2,7 m
Presupuesto: 2,5 millones de rublos
Diseñador y estilista: Alena Matiso
Fotógrafo: Anna Skudar'
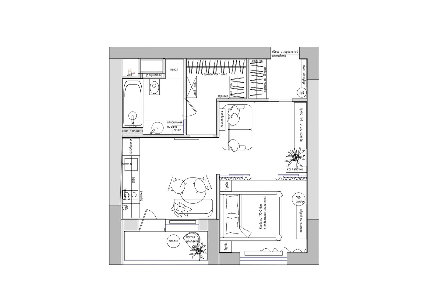
Plano
Inicialmente era un apartamento de una habitación con una habitación separada y una cocina independiente. Había un largo pero poco funcional pasillo, la zona de entrada era transitable y al usarla la suciedad se propagaría rápidamente por todo el apartamento.
"La idea me vino de recortar la zona del pasillo y dedicarla a un vestidor. Esto se logró al hacer un paso continuo desde la cocina hasta la sala de estar, con este mismo método se creó una zona sucia aislada", dice el diseñador. "La habitación se colocó junto a la ventana y se separó con puertas correderas de vidrio. Esto permitió mantener la sensación de espacio amplio y añadir luz a la entrada y la sala de estar".


Cocina-comedor
El mueble de cocina resultó grande y espacioso, se fabricó a medida siguiendo los bocetos del diseñador del proyecto. Incluye un refrigerador empotrado, lavavajillas, extractor de humo y cajas deslizables cómodas para guardar utensilios de cocina.
Un detalle interesante es que las cajas deslizables están ocultas tras una superficie uniforme y sólida que imita las puertas correderas, se hizo para mantener las líneas verticales y no dividir los frontales de la cocina en elementos pequeños.


La mesa de comedor se fabricó a medida. Tiene una encimera neutra y una estructura de metal mate dorado. Las sillas están hechas en seda y añaden lujo al interior.
El revestimiento del suelo en las habitaciones y la cocina se hizo uniforme para ampliar visualmente el espacio. Dentro del presupuesto se usó laminado, eligieron la textura "árbol francés" que resalta el estilo clásico.
Las paredes de todo el apartamento están pintadas con pintura lavable. Se eligió un tono no completamente blanco, sino con una pequeña nota cálida para hacer el espacio más acogedor. Las zonas específicas se destacaron con paneles 3D volumétricos con molduras verticales. "El espacio es monocromo, necesitábamos usar diferentes texturas de materiales para que parezca interesante y dinámico".

El apartamento está ubicado en el centro de San Petersburgo, con rica arquitectura de palacios y estilo marcado. Por eso el elemento estilístico principal fue la clasicidad moderna. Para crear sensación de elegancia y tradicionalismo se usaron técnicas clásicas, pero más "ligera". Acabados en mármol, colocación "en forma de abeto" en el suelo, molduras modernas en las paredes y elementos dorados. En los frontales de la mobiliario se usaron filos, pero en diseño simplificado.


Habitación
La habitación se separó del resto del espacio de vida con una pared de vidrio. Esta solución excelente permite crear privacidad y al mismo tiempo dejar entrar luz hacia el interior del espacio.


La cama en la habitación se eligió con un interesante cabecero que tiene bordes redondeados y combina perfectamente con las lámparas colgantes redondeadas. La consola y las mesitas de noche se fabricaron a medida en color blanco con hardware dorado.

La textilería se convirtió en el principal acento y último toque. El interior está construido con tonos cercanos entre sí del gris y blanco, por lo tanto, para añadir "vida" y textura en la decoración se utilizó seda suave.


Baño
Para colocar el secador de toallas eléctrico se diseñó una nicho especial. La zona del lavabo se hizo con azulejos rosados destacados en una interesante disposición "en forma de abeto". Se eligió la encimera del lavabo en el patrón del mármol, este trozo se conservó de la encimera de la cocina.
En el baño se usó hardware dorado que refleja la concepción del interior.
En el baño el suelo está hecho con cerámica granítica que imita la madera.
Entrada
En el área de la entrada se diseñó un armario empotrado con puertas correderas. Dentro se previó almacenamiento de ropa exterior y calzado de exteriores, por eso se optó específicamente por no tener fondo en el armario, este está directamente sobre la losa. A la izquierda de la entrada se colocó un perchero para guardar pequeños artículos.


Marcas presentadas en el proyecto
Acabados: pintura, Little Greene; cerámica granítica, Laparet; azulejos, Equipe
Revestimiento del suelo: laminado, Quick-Step; cerámica granítica, Kerama Marazzi
Muebles: mueble de cocina, armario, mobiliario del baño, todo - compañía "Eliza Muebles"; cómoda, IKEA
Textiles y decoración: cortinas, IKEA
¿Quieres que tu proyecto sea publicado en nuestro sitio web? Envía fotos del interior a wow@inroom.ru
Need a renovation specialist?
Find verified professionals for any repair or construction job. Post your request and get offers from local experts.
You may also like

Cómo crear un interior lujoso en una pequeña superficie: 6 consejos

Apartamento 2 habitaciones de 77 m² con oficina mini y mucho espacio para almacenar

Diseño de interiores en 2023: 9 principales tendencias según un diseñador

Superdescubrimiento para quienes no les gusta limpiar: reseña del último robot aspirador
Más artículos:
Cómo crear un interior lujoso en una pequeña superficie: 6 consejos
Apartamento 2 habitaciones de 77 m² con oficina mini y mucho espacio para almacenar
Diseño de interiores en 2023: 9 principales tendencias según un diseñador
Superdescubrimiento para quienes no les gusta limpiar: reseña del último robot aspirador
Una cocina acogedora y funcional para familias con muchos hijos
Cómo decorar un interior elegante y anti-vandalista
Cómo desde un antiguo baño de 3,2 m² en un krushchevka se hizo una habitación de baño cálida y acogedora
Dúplex de 46 m² para pareja, en el que cada milímetro está pensado