Apartamento 2 habitaciones de 77 m² con oficina mini y mucho espacio para almacenar
Ekateryna Zagorodnaya diseñó una distribución práctica con una habitación privada y un estudio separado, donde la luz entra por la ventana de la cocina
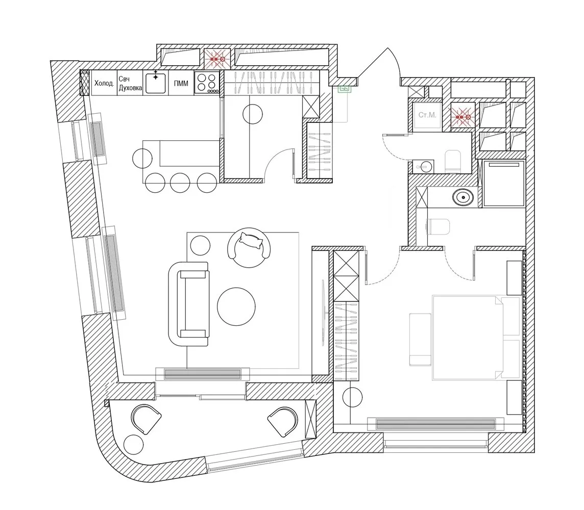
La diseñadora Ekateryna Zagorodnaya decoró un apartamento de dos habitaciones con 77,5 m² en la zona de Khamovniki para alquiler. La principal tarea fue crear un interior funcional, universal y minimalista. La propietaria quería que el apartamento contuviera siempre un estudio separado, muchos espacios de almacenamiento y un diseño moderno en tonos grises y beige naturales.

Como resultado del rediseño se logró dedicar espacio a un estudio separado junto al área de cocina, implementando así una cocina-comedor amplia y una habitación dormitorio espaciosa. Entre la cocina y el estudio se colocó una pared divisoria con una gran ventana estilo loft de vidrio templado que permite entrar luz adicional al estudio.



Se colocó un islón en la cocina, limitado por mobiliario de cocina a un lado y espacios para sentarse al otro.
Suelos: cerámica en baños, entrada y cocina, madera maciza en sala de estar, dormitorio y estudio."A pesar del presupuesto limitado, nos esforzamos por usar materiales naturales en la mobiliario y acabados: encimeras de cuarzo, mesas de mármol natural, madera y madera natural. También tuvimos en cuenta que la familia podría vivir con animales, eligiendo tejidos con protección contra el agua para la mobiliario suave y puertas duraderas para la cocina", dice la diseñadora.

Se le dio un color único a todo el espacio de las paredes, y el tono del mueble integrado continuó esta idea. La cocina resultó más destacada, para el mobiliario suave de la sala se eligió un color azul agradable que calma y relaja.

Una ventaja del apartamento son los techos altos, grandes ventanales y una vista bonita hacia la ciudad.

Los sistemas de almacenamiento bien planificados en la entrada, dormitorio, baños, estudio y sala de estar aumentaron significativamente el costo del proyecto. Pero en el apartamento alquilado puedes vivir tan cómodamente y con tanta comodidad como en tu propio hogar.

"Cuando creamos un apartamento para alquiler, no sabemos quién vivirá en él. Los gustos son diferentes. Por eso nos esforzamos por un diseño universal pero muy bien pensado en cuanto a la paleta de colores y materiales", dice la diseñadora.
La pared al cabezal de la cama en el dormitorio está cubierta con una estuco decorativo que recrea la textura de la piedra.







Fotógrafo: Fedor Boyarshnikov
Marcas presentadas en el proyectoCocina-sala de estar
Muebles: sofá y sillón, The Idea; mesas auxiliares y consola, Marble Home
Alfombra: "AmiKovry"
Decoración y textiles: decoración y vajilla, Decoraholic, H&M Home; sillas de bar, Anni House; decoración floral, Bloom; almohadas y mantas, CozyHome
Luz: lámparas sobre la barra de bar, Loft&Concept; puertas, Miggliore
Oficina
Muebles: silla, Anni House
Dormitorio
Muebles: cama y puff, Moon; silla, Anni House
Baños
Acabado: cerámica, Italon; cerámica, Laparet
Sanitarios: grifos, ducha, Jacob Delafon; lavabo, Galassia Dream
¿Quieres que tu proyecto sea publicado en nuestro sitio web? Envíanos fotos del interior a wow@inmyroom.ru
Need a renovation specialist?
Find verified professionals for any repair or construction job. Post your request and get offers from local experts.
You may also like

Almacenamiento en la cocina: 6 ideas geniales de los proyectos de nuestros héroes

Almacenamiento en baño pequeño: 6 ideas de proyectos reales

Cómo se transformó una cocina típica en una pequeña casa de estilo хрущёвка

Antes y después: cómo renovaron el antiguo diseño en una vivienda de estilo brezhnev por 850 mil rublos
Más artículos:
Almacenamiento en la cocina: 6 ideas geniales de los proyectos de nuestros héroes
Almacenamiento en baño pequeño: 6 ideas de proyectos reales
Cómo se transformó una cocina típica en una pequeña casa de estilo хрущёвка
Antes y después: cómo renovaron el antiguo diseño en una vivienda de estilo brezhnev por 850 mil rublos
Espacio amplio de sueño con dos habitaciones infantiles y tres baños
Luminosa y acogedora dos habitaciones de 49 m² en un bloque de estilo khrushchev
Euromueble de 35 m² con paredes grises y techo naranja
Cocina acogedora y funcional en edificio de panel típico