Luminosa y acogedora dos habitaciones de 49 m² en un bloque de estilo khrushchev
Los clientes compraron el apartamento ya con una renovación reciente y pidieron al diseñador añadir acogedoridad mediante mobiliario y decoración
La diseñadora Lubov Pivovarova transformó la típica dos habitaciones de 49 m² en un edificio de ladrillo del año 1974. El apartamento fue comprado por los clientes con una decoración básica, ya listo para la cocina. Por lo tanto, el objetivo era hacerlo acogedor, rápido y moderno sin grandes reformas. Detallamos más abajo.
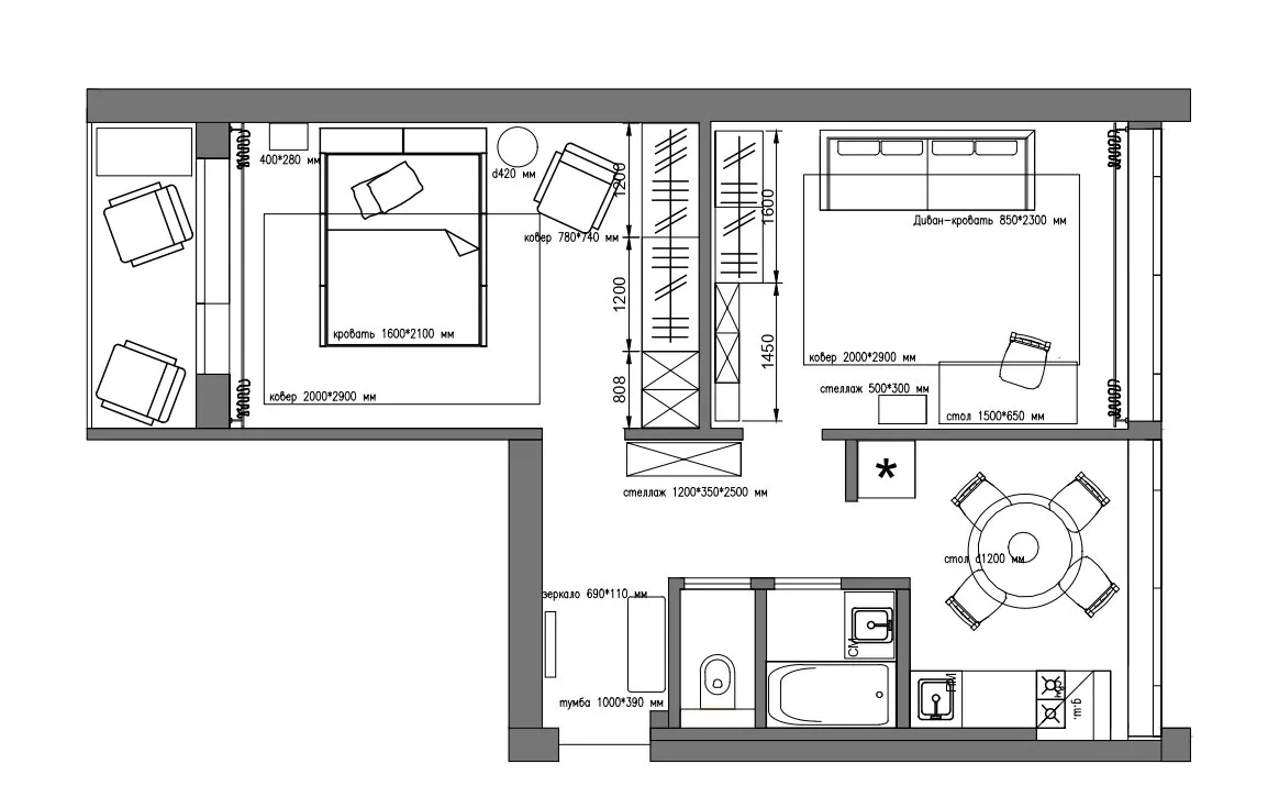
Planificación
En el apartamento hay una cocina pequeña, sala de estar con un área de trabajo, habitación con un gran sistema de almacenamiento. Hay un balcón abierto que se convirtió en zona de descanso estival.

Cocina
El mueble de cocina ya estaba instalado, junto con el encimerado y la cocina. La diseñadora añadió colores al interior usando sillas de tono terracota. Colocaron una alfombra para acogedoridad bajo la mesa y eligieron cortinas rollo neutras para las ventanas.



Habitación principal
La habitación está en tonos cálidos y neutros. Se eligió mobiliario con formas redondeadas, que añaden acogedoridad y se ven muy elegantes. El mobiliario sobre patas también simplifica el diseño general.

La asimetría en la distribución del mueble se resaltó con carteles de diferentes tamaños.

Área de lectura, una de las solicitudes de los clientes. Cerca del cómodo sillón se colocó un lámpara de pie.


Balcón
El balcón se dejó abierto. Se eligió mobiliario para el exterior para no tener que llevarlo adentro constantemente. Para almacenamiento: una estantería y un baúl.

Sala de estar
Para las paredes de la sala se eligió pintura con tono verde lima, que aporta frescura y alegría al interior. En las ventanas se colocaron cortinas ligeras. Su contraste se logró con un abanico aire.





Pasillo y entrada
En el pasillo se logró colocar grandes armarios, por lo que en la entrada basta con estanterías abiertas y una repisa para ropa y calzado de temporada. Están hechas en madera y añaden calidez al interior.



Baño
En el baño y el cuarto de baño hay una decoración simple con azulejos blancos. A pesar de ello, es un excelente fondo para acentos más llamativos que los clientes pueden añadir si desean.


Fotógrafo: Eugenio Gnesin
Toda la mobiliario, textil y decoración: La Redoute
¿Quieres que tu proyecto sea publicado en nuestro sitio web? Envíanos fotos del interior a wow@inmyroom.ru
Need a renovation specialist?
Find verified professionals for any repair or construction job. Post your request and get offers from local experts.
You may also like
Más artículos:
Cómo decorar presupuestadamente una cocina de 4 m² en un chrstevka
Top-10 libros que puedes regalar para Año Nuevo (+ ofrecemos un 50% de descuento en todos)
7 consejos de diseño que un diseñador nunca recomendará
Interior cómodo y práctico para la familia del diseñador
Cómo crear un efecto impactante en el diseño de interiores: 7 consejos de diseñadores
10 más increíbles microestudios del 2022
Fotos de interiores que obtuvieron más me gusta en 2022
Las viviendas más elegantes de hasta 45 m² que le gustaron en 2022