Interior cómodo y práctico para la familia del diseñador
Lena Harlova diseñó una distribución cómoda, colocó muchos sistemas de almacenamiento y eligió un acabado antivandalismo
Lena Harlova decoró una casa de 104 m² en San Petersburgo para su familia. El diseñador utilizó diferentes técnicas interesantes y experimentó con el acabado en el interior. Quiso crear un hogar que inspire a la creatividad y nuevos proyectos. Les contamos los detalles de la reforma.
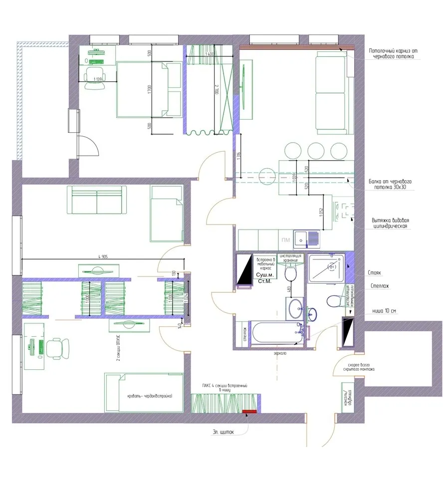
Distribución
En la familia hay dos adultos, dos niños de diferentes sexos y un perro — para cada uno se necesitaba crear condiciones cómodas. La cocina-estancia estaba unida, de la que separaron parte del espacio para construir una habitación con armario. Las habitaciones infantiles fueron hechas iguales, con pequeños armarios. También se instalaron dos baños para mayor comodidad.

Cocina-estancia
El conjunto de cocina se instaló en forma de L, con una barra en un lado. La madera fue hecha a medida según el diseño del diseñador. Para las puertas eligieron una combinación de tonos azules claros y textura de madera. Todo el equipo está integrado.


En la zona de la sala se colocó un diván cómodo y una TV-estante. El acabado en la cocina-estancia es bastante simple — pintura de paredes en un tono cálido y laminado en el suelo.


Habitación principal
En la habitación principal se reservó espacio para un armario completo, para ocultar los artículos de almacenamiento. La cama se colocó con la cabecera hacia la pared del armario. Frente a ella — una mesa de trabajo compacta que también funciona como consola. El acabado se centró en pintura y molduras decorativas.




Habitaciones infantiles
Se eliminó la pared divisoria entre las habitaciones infantiles y se reconstruyó de manera que cada una tenga un pequeño armario. «Esto no solo es receta para orden relativo en la habitación infantil, sino también una oportunidad para que los niños se diviertan — en el armario pueden pintar las paredes y pegar pegatinas», — comenta Lena Harlova.


Todos los armarios están equipados con estructuras de IKEA. En la habitación de su hija se colocó una tumba vintage — fue traída de una casa histórica en el centro de San Petersburgo.


En la habitación del hijo se colocó una lavadora soviética después de la rediseño.
Baño
En el apartamento hay dos baños: uno con bañera, otro con ducha. Para la habitación del baño se eligió azulejo claro de pequeño formato y un color naranja alegre para las paredes. El espacio se amplió con espejos en forma de arco.


La ducha es más estricta y minimalista. En el acabado se usó azulejo de tono arena y marrón.


Entrada y pasillo
En el pasillo salen muchas puertas, por lo que se hicieron todas iguales para evitar caos visual. La puerta del almacén con montaje oculto — la puerta se pintó del color de las paredes.



Fotógrafa: María Piatova
Estilista: María Piatova, Lena Harlova
Marcas presentadas en el proyecto
Cocina-estancia
Acabado: pintura, Tikkurila
Piso: laminado, Unilin
Muebles: estante, IKEA; sofá, Divan.ru
Garnitura: “Miki-Mebel”
Electrodomésticos: refrigerador, Samsung; horno eléctrico, Electrolux
Grifos: Frap
Luz: lámparas colgantes, Loftdesign; focos, Maytoni
Baños
Acabado: azulejo, Kerama Marazzi; pintura, Tikkurila y Swiss Lake
Piso: azulejo, Dual Gres
Muebles para baño: “Miki-Mebel”; estante, IKEA
Decoración: espejos, Leroy Merlin
Entrada
Piso: cerámica, Vitra
Muebles: IKEA; estante, Lazurit
Habitación principal
Acabado: pintura, Tikkurila
Piso: laminado, Unilin
Muebles: mueble GL; armario, IKEA; consola, Zakwoodworks
¿Quieres que tu proyecto sea publicado en nuestro sitio web? Envíanos fotos del interior a wow@inmyroom.ru
Need a renovation specialist?
Find verified professionals for any repair or construction job. Post your request and get offers from local experts.
You may also like
Más artículos:
Actualización completa de una cocina estándar de 12 m² hecha por uno mismo
Convirtió una «caja de concreto» en estudio de 31 m² para una joven
Top-10 de los sillones más populares por menos de 12 mil rublos
Techo 74 m² con antresoles en lugar de armarios estándar en Ufa
Los 10 mejores reflectores con precios accesibles
Cómo renovar con estilo y economía un interior obsoleto: 8 ideas
Cómo decorar elegante el interior de una casa de campo: 12 ejemplos de proyectos de diseñadores
Casa desde cero en 30 días: todos los detalles del primer paso de la construcción