Convirtió una «caja de concreto» en estudio de 31 m² para una joven
Esta vivienda la alquiló una joven diseñadora. Solicitó a la especialista en decoración de interiores Anastasia Lappo crear un diseño funcional con espacio para dormir y sistema de almacenamiento.
Veamos cómo la experta cumplió con la tarea asignada.

- Lugar: Moscú
- Metro cuadrado: 31 m²
- Habitaciones: 1
- Baños: 1
- Altura del techo: 3 m
- Diseño: Anastasia Lappo
- Fotos: Eugenio Gnesin
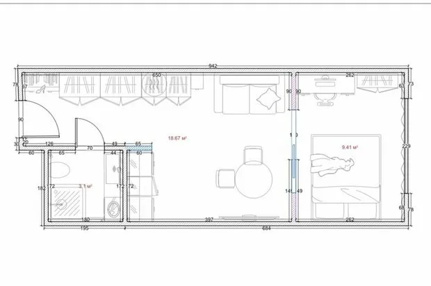
PlanoDecidieron no cambiar la distribución original, sino simplemente dividir el espacio mediante una partición metálica con vidrios. Esto permitió crear una cocina-comedor y una habitación de dormir.
EntradaEn el pasillo del armario hay espacio no solo para ropa, sino también para una plancha y tabla de planchar, así como para una aspiradora.

CocinaLas cabinas y la cocina fueron hechas a medida. Además, se previeron armarios superiores para objetos que no se usan con frecuencia.
Detrás del refrigerador incorporado se ocultó un calentador de agua. El horno y el microondas también están ubicados en la cabina, junto con los enchufes para la tetera y la máquina de café.
Debido a la necesidad de aprovechar al máximo el espacio disponible, no se sacrificó la altura ni se colocaron muebles prefabricados.

Salón y dormitorioLo primero que compraron en la vivienda fue el sofá, alrededor del cual se organizó todo el entorno.
El suelo se revistió con cuarzo vinilo, las paredes se recubrieron con papel pintado antivandalismo que permite pintar, y el color se usó solo en la zona del cabecero de la cama.




Need a renovation specialist?
Find verified professionals for any repair or construction job. Post your request and get offers from local experts.
You may also like

5 formas de crear comodidad en el apartamento: consejos sencillos basados en un ejemplo real

Interior luminoso de departamento de 2 habitaciones de 53 m² en Johannesburgo con terraza acogedora

Cómo elegir correctamente la mobiliario para un apartamento pequeño: 10 consejos prácticos

Diseñador decoró un estudio de 34 m² para sí mismo: resultó un pequeño penthouse con muebles de fibra
Más artículos:
5 formas de crear comodidad en el apartamento: consejos sencillos basados en un ejemplo real
Interior luminoso de departamento de 2 habitaciones de 53 m² en Johannesburgo con terraza acogedora
Cómo elegir correctamente la mobiliario para un apartamento pequeño: 10 consejos prácticos
Diseñador decoró un estudio de 34 m² para sí mismo: resultó un pequeño penthouse con muebles de fibra
Exactamente como en IKEA: productos geniales para el hogar
Tome nota: ideas geniales del proyecto Khrushchyovka
Productos geniales para la habitación del estudiante en estilo IKEA
Estilo escandinavo sin IKEA: hermosas ideas para decorar el interior