Cocina blanca de 8 m² en una típica dos habitaciones
Dina Salakova transformó el interior de una cocina típica y creó un espacio único que responde a todas las expectativas de la cliente
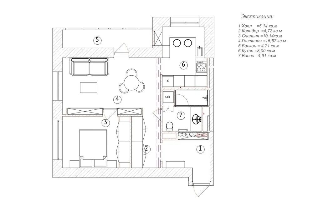
Para decorar la cocina en un apartamento de dos habitaciones en un edificio de ladrillo típico en el centro de Moscú, la diseñadora Dina Salakova eligió una disposición no estándar y un color blanco limpio.
El trabajo en el proyecto comenzó con una reconfiguración completa. Para ello, se demolieron todas las paredes existentes y se construyeron nuevas. La pequeña cocina se unió a la sala de estar: aquí se previstos varios grandes armarios empotrados.


La mobiliario de cocina se hizo a medida en una taller de carpintería debido a la configuración compleja planeada. El conjunto abarca una cocina de ocho metros por el perímetro, y todas las piezas se combinan con una encimera de piedra artificial.

Para el acabado del suelo se eligió tablón de ingeniería. Para las paredes — pintura, que es un material natural y fácil de mantener. Como base se tomó un tono suave de blanco leche.

El radiador de calefacción se escondió detrás de paneles perforados blancos, que lucen más estéticamente y no interfieren con el flujo de aire caliente en la habitación.La diseñadora aprovechó al máximo todo el espacio disponible. En la nicho de la pared se diseñaron estanterías abiertas para vajillas y decoración, la pared adyacente se recubrió con pintura de grafito para poder dejar notas.

Foto: Mikhail Loskov
¿Quieres más detalles? Mira el proyecto completoNeed a renovation specialist?
Find verified professionals for any repair or construction job. Post your request and get offers from local experts.
You may also like
Más artículos:
Antes y después: cómo se transformó la 'trash' de la casa
Una cocina pequeña pero muy funcional en un apartamento de estilo khrushchyovka
Diseño de baño moderno en edificio soviético tipo (fotos antes y después)
Apartamento de dos habitaciones de 60 m² con vista panorámica
10 los luminosos más modistas de la temporada 2023/24
Clásico remodelado de cocina 5 m² en apartamento estándar
10 mesas y sillas: las mejores opciones para tu zona de comedor
Apartamento de dos habitaciones de 70 m² en Ufa con paredes decorativas