Apartamento de dos habitaciones de 70 m² en Ufa con paredes decorativas
La diseñadora Olga Maganova ha descubierto el potencial del apartamento realizando una reconfiguración práctica
La diseñadora Olga Maganova decoró un apartamento de dos habitaciones de 70 m² en una vivienda nueva en Ufa para la cliente y su hija. La cliente tiene una profesión muy exigente y energética, por lo que no tenía ni la voluntad ni la posibilidad de dedicar tiempo al trabajo de reforma o visitar tiendas de construcción. La cliente delegó completamente este trabajo a la diseñadora y quedó muy satisfecha con el resultado.
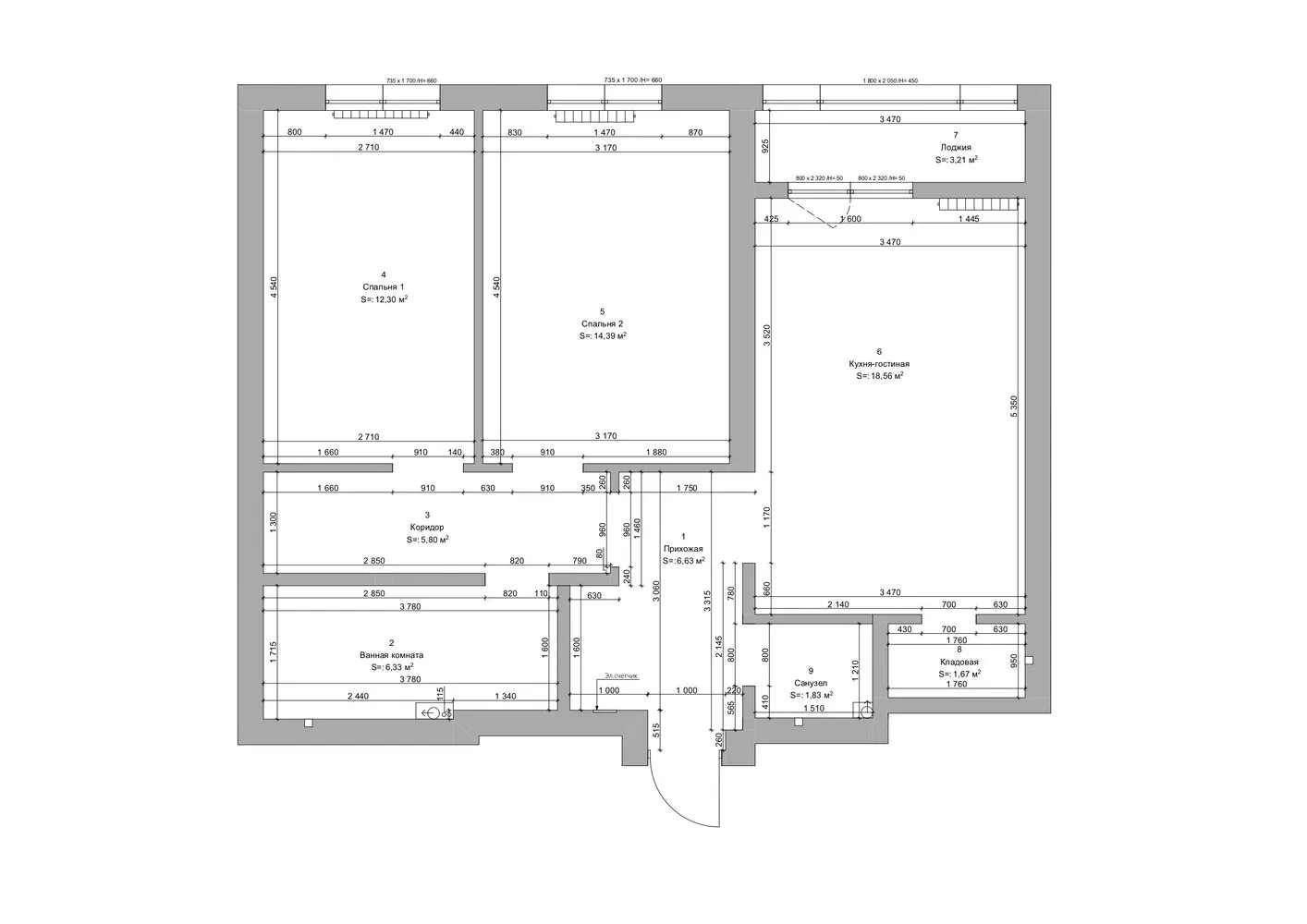
Planificación
Durante el trabajo en el proyecto se realizó una reconfiguración, aumentando la cocina-sala de estar a costa de la habitación adyacente y planificando sistemas adecuados para el almacenamiento: un armario en el área del vestíbulo y otro en la habitación del niño. Además, gracias al pasillo adyacente se aumentó el baño y se colocó un área amplia para lavarse las manos con dos lavabos.


Cocina-sala de estar
La cocina y la sala de estar se dividen con mobiliario: un islote divide el espacio en una zona de trabajo y una zona de descanso. La distribución del mobiliario se ve apoyada por diferentes tipos de pisos: se utilizó un piso cerámico con acento en la cocina y un laminado tranquilo en la sala de estar. La iluminación fue el último toque final: se colocaron lámparas sobre el islote.



Gracias a una buena división espacial, la forma alargada de la habitación se convirtió en una virtud. En una parte está la cocina, cerca de la ventana está la zona de comedor y la sala de estar. Juntas se ven armónicamente, con el funcionamiento de una directamente relacionado con el de la otra, por lo tanto, su ubicación en una sola zona está justificada.

«En nuestra primera reunión discutimos el estilo y la gama de colores. La cliente dijo que quería algo tranquilo, neutro, beige. Pero al ver el cerámico en la tienda eligió un azulejo muy “audaz” con un patrón negro llamativo. Resultó que a la cliente realmente le gustan las soluciones de colores audaces, solo que no sabía cómo combinarlas entre sí. Así obtuvimos un increíble suelo con acento que recibe a los invitados en el vestíbulo y los guía hacia la cocina-sala de estar. Los azulejos geométricos 3D audaces los apoyé con una pared decorativa en la zona del televisor», — cuenta la diseñadora.






Habitación principal
La habitación principal fue difícil desde un punto de vista de decoración: aquí había que colocar no solo la cama y el sistema de almacenamiento, sino también un espacio de trabajo y una mesita para el baño. Es decir, había que hacer dos habitaciones en una sola: una habitación y un despacho.


«Colocamos el espacio de trabajo cerca de la ventana, una mesa de escritorio de 120x60 cm, frente a ella la mesita para el baño. Estas dos zonas se separan visualmente con lamas que van por la pared, llegan al techo y caen en la pared opuesta. Además, el techo está más bajo en esta zona, lo que da a la habitación una atmósfera determinada. Así, sin romper el espacio y uniendo con la gama de colores, dividimos las zonas con éxito», — cuenta Olga Maganova.



Habitación infantil
El color favorito de la dueña de la habitación es el verde, y ella quería verlo necesariamente en su habitación. Así apareció una fresca con tonos verdes en el interior. En la habitación se utilizó una distribución de mobiliario no estándar: la cama se colocó a lo largo de la ventana. De esta manera, una de las paredes quedó prácticamente completamente libre. En ella se colocó un paisaje montañoso que da a la habitación volumen adicional y visualmente amplía el espacio.

Se prevee un espacio para huéspedes en caso de que alguna de las amigas quiera quedarse a dormir: la cama tiene una sección extra que se puede deslizar.

Baños
En el apartamento hay dos baños: uno principal al entrar y otro visitante. En el baño pequeño, a pesar de su tamaño reducido, se colocó una lavadora cómoda de 50x27 cm. Sobre el grifo se previó un gran armario para almacenar productos de limpieza. Para hacer visualmente más espaciosa la habitación, se utilizó cerámica de tonos claros y puertas espejo en el armario.


En el baño principal se hizo una reconfiguración y se aumentó el área. Se instaló una bañera de forma elegante, se colocó la encimera con dos lavabos y se colocó un armario para el baño sobre el inodoro, donde se encuentran todas las comunicaciones necesarias (medidores, calentador de agua, sensores de filtración). El armario es espejo por todos lados, por lo que se mezcló completamente con el espacio.



Vestíbulo y pasillo
En el área del vestíbulo y la cocina se utilizó una muy bonita y bastante activa baldosa de la fábrica española Pamesa. “Con esta baldosa comenzó todo el proyecto, precisamente ella fue la que la cliente vio en la tienda y no pudo apartarse de ella — dice la diseñadora.


Se logró diseñar dos armarios y aumentar el área de almacenamiento útil. Además, hay armarios, estanterías y repisas; todo esto está previsto para que en la casa reine el orden y cada cosa tenga su lugar.Fotógrafo: Roman Spiridonov
Estilista: Anna Shenberger
Marcas presentadas en el proyecto
Cocina-sala de estar
Revestimiento: paredes, Ugepa
Piso: cerámica, Pamesa; laminado, My Step
Garnitura: “Re-Forma”
Mueble: mesa, Garda Decor
Bidés: Omoikiri
Lavadora: Omoikiri
Iluminación: Maytoni
Enchufes, interruptores: Werkel
Baños
Mueble: “Re-Forma”
Sanitario: inodoro, Roca; bañera, BelBagno; taza y lavadero, Kerama Marazzi
Bidés: Boheme
Iluminación: LightStar, Odeon Light
Puertas: Geona
Vestíbulo
Revestimiento: paredes, Loymina, Milassa, Ugepa
Piso: cerámica, Pamesa; laminado, My Step
Mueble: cojín, Garda Decor
Decoración: Mart Gallery
Iluminación: Maytoni, Odeon Light, LightStar
Puertas: Geona, Sofia
Habitación principal
Revestimiento: paredes, Loymina
Piso: laminado, My Step
Enchufes e interruptores: Werkel
Iluminación: Maytoni, Odeon Light
Puertas: Geona
Habitación infantil
Revestimiento: fresca, Affresco; pintura, Swiss Lake
Piso: laminado, My Step
Iluminación: Maytoni, Odeon Light
Puertas: Geona, Sofia
¿Quieres que tu proyecto sea publicado en nuestro sitio web? Envía fotos del interior a wow@inmyroom.ru
Need a renovation specialist?
Find verified professionals for any repair or construction job. Post your request and get offers from local experts.
You may also like
Más artículos:
Cómo renovar el interior en fin de semana: 10 ideas
Antes y después: remodelación económica en una vivienda de 31 m²
12 brutales diseños de interiores de diseñadores
Cómo hacer que un apartamento se vea más fresco y elegante: instrucciones de homestager + fotos antes y después
Cómo crear un interior en el que todo sea perfecto: consejos de diseño
Baño pequeño de 3 m² en estilo brezhnev
10 sillas modernas para un interior elegante
9 útiles consejos que utilizaron los diseñadores en sus proyectos