Diseño de baño moderno en edificio soviético tipo (fotos antes y después)
Los diseñadores ampliaron el baño usando el pasillo, incorporando sistemas de almacenamiento. Tomaron como base el estilo escandinavo, haciendo que sea más vibrante en colores
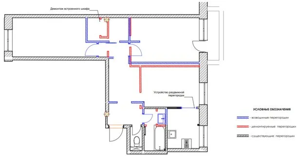
Los diseñadores del estudio Carton Group realizaron una reforma en un baño separado en una casa de mampostería de los años 70. Tras la reconfiguración, trasladaron la entrada antigua a la cocina, pero no unieron el baño y el wc. Solo ampliaron el área del baño usando el pasillo, manteniendo el wc en su configuración original.

Baño antes de la reforma
Baños antes de la reformaPor supuesto, los clientes deseaban tener un baño funcional que cumpla con las exigencias modernas — con una lavadora y un armario para almacenar productos químicos domésticos. Por eso ampliaron el baño usando el pasillo. Instalaron la lavadora junto al baño, y la lavadora y el espacio de almacenamiento quedaron en el área anterior del pasillo.
Gracias a la dominante de azulejos claros, una iluminación bien organizada y el juego con acentos de color (el amarillo solar se convirtió en el acento principal en toda la zona de la vivienda), el espacio parece más espacioso que en realidad.

En el baño, todas las instalaciones fueron ocultadas tras una instalación. Se logró crear un espacio cómodo con iluminación. Para la decoración se usó la misma combinación de blanco tipo “cerdo” y azulejos amarillos rectangulares, como en el baño vecino. Así los espacios se ven armónicos.

Más información sobre este apartamento aquí
Marcas presentes en el proyectoRevestimiento: azulejos, Kerama Marazzi
Piso: azulejos, Kerama Marazzi
Sanitarios: Geberit, Lemark, Hansgrohe
Decoración: IKEA
Baños: Hansgrohe
Iluminación: Lumion
¿Quieres que tu proyecto sea publicado en nuestro sitio web? Envía fotos del interior a wow@inmyroom.ru
Need a renovation specialist?
Find verified professionals for any repair or construction job. Post your request and get offers from local experts.
You may also like

Dónde encontrar espacio para un vestidor en un apartamento estándar: 6 ideas del experto

Cómo utilizar el espacio alrededor de la ventana de la cocina: 7 ideas de expertos

Cómo transformar económicamente una vieja casa de estilo krushchev: consejos de decoradora

10 etapas importantes del remanufactura del baño: guía invaluable del jefe de obra
Más artículos:
Dónde encontrar espacio para un vestidor en un apartamento estándar: 6 ideas del experto
Cómo utilizar el espacio alrededor de la ventana de la cocina: 7 ideas de expertos
Cómo transformar económicamente una vieja casa de estilo krushchev: consejos de decoradora
10 etapas importantes del remanufactura del baño: guía invaluable del jefe de obra
Un striking accesorio: 10 elementos modernos de diseño español
Cómo renovar el interior en fin de semana: 10 ideas
Antes y después: remodelación económica en una vivienda de 31 m²
12 brutales diseños de interiores de diseñadores