Trastero de 76 m² con cocina funcional y espacios de trabajo para tres personas
De la caja de hormigón surgió un interior minimalista y bastante moderno con materiales naturales
La diseñadora Evgenia Matveenko, junto con el equipo del estudio FLATS DESIGN, decoró un trastero de 76 m² para una familia de tres personas: padres trabajadores y un hijo, estudiante universitario. Se necesitaba crear zonas de trabajo en la habitación principal, la habitación del hijo y en la sala de estar. También se solicitó tener dos baños y espacios para almacenamiento. El hombre y la mujer no estaban en contra de experimentar algo nuevo y pidieron incluir un color vinotinto profundo, mientras que la habitación del hijo se convirtió en oscura según su preferencia.
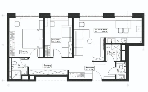
Planificación
Una particularidad del diseño es que no hay guardarropas separados, se utilizaron armarios empotrados. Se reservó un área para lavandería, se combinó la cocina con la sala de estar y se diseñaron dos baños. La altura de las ventanas permitió crear un asiento en la habitación del hijo y en la cocina-sala de estar. En la cocina se puede sentar en este asiento frente a la mesa para comedor.

Cocina-sala de estar
La cocina resultó ser inusual. La mesa para comedor es semibar, para que sea cómodo sentarse en el asiento del ventanal. Mucho aire y espacio abierto, el mueble no está sobrecargado con armarios. Y, por supuesto, un color vinotinto activo atrae la atención.

"Casi toda la mobiliario en nuestros proyectos se realiza bajo medida. En la cocina usamos almacenamiento cerrado. Una de las paredes está completamente dedicada a un armario desde el suelo hasta el techo. Pero decidimos dejar una estantería abierta que añade ligereza y geometría", - dicen los diseñadores.




Un interior minimalista y bastante moderno se ve suavizado con materiales naturales: madera, azulejos de cerámica en la cocina. Esto era importante porque los clientes aman la naturaleza, suelen pasar tiempo en el bosque junto a un lago y querían llevar esas sensaciones a su hogar.

Los clientes aman todo lo natural y hecho a mano. Por eso hay mucho arte de Dmitry Stroganov y Anna Shagalina en el interior. También se usó madera y flores secas.

Habitación principal
La pared detrás de la cabecera de la cama se decoró con paneles en relieve y espejos: juntos aportan volumen al espacio, aire, y visualmente elevan el techo.



Una de las paredes se dedicó a un armario empotrado alto. Parte de los frontales están hechos con vidrio en relieve – se ve muy elegante. El espacio de trabajo se preparó con una consola colgante – hay suficiente espacio para una computadora portátil y accesorios.

Habitación del hijo
No, esta no es una edición de Photoshop – la habitación está realmente hecha en tonos blanco, negro y gris. Para las paredes se usó pintura y papel pintado oscuro con textura, la mobiliario fue hecha bajo medida.

Todas las particiones están aisladas acústicamente porque el joven toca la guitarra.


Baño
El baño está decorado con un color vinotinto brillante, complementado con elementos gráficos negros de sanitarios.


Fotógrafa: Nina Mironova
Estilista: Ekaterina Kheliya
Marcas presentadas en el proyecto
Cocina
Revestimiento: ceramogranito, Pamesa
Piso: tablero de ingeniería, Coswick
Mueble: mesa bar, Archpole; sillas Albert
Luz: lámpara de pared, Serge Mouille
Decoración y textil: bandeja de cuero, ADJ style; jarrón, Designboom; jarrones, Dmitry Stroganov; pintura, Tatiana Kirikova
Sala de estar
Piso: tablero de ingeniería, Coswick
Mueble: sofá, Dantone home
Decoración y textil: cerámica de Anna Shagalina; accesorios de cuero, @borovkova.studio; jarrones, Designboom
Baño
Revestimiento: ceramogranito, Atlas Concorde; ceramogranito, Italon
Sanitarios: inodoro colgado, Bien
Entrada
Revestimiento: ceramogranito, Pamesa
Piso: tablero de ingeniería, Coswick
Mueble: cojín, Pawai
Luz: lámpara colgante y abajur, Eurosvet
Habitación principal
Piso: tablero de ingeniería, Coswick
Mueble: cama, The Idea; silla, Loft Design
Textil y decoración: textil, Ateliertati; accesorios, Designboom; alfombra, Art de vivre; jarrón, Dmitry Stroganov; pintura, Tatiana Kirikova; cerámica de Anna Shagalina; accesorios de cuero, @borovkova.studio
Habitación del hijo
Revestimiento: papel pintado, Covers
Piso: tablero de ingeniería, Coswick
Mueble: cama, Marko Kraus; silla, IKEA
Textil y decoración: canasta de cuero y accesorios, @borovkova.studio; textil, Ateliertati; alfombra, Art de vivre
Luz: lámparas colgantes, Odeon
¿Quieres que tu proyecto sea publicado en nuestro sitio web? Envía fotos del interior a wow@inmyroom.ru
Need a renovation specialist?
Find verified professionals for any repair or construction job. Post your request and get offers from local experts.
You may also like
Más artículos:
Cómo convertir un apartamento típico de dos habitaciones en una "caramelito"
Cómo comunicarse correctamente con el jefe de obra y los constructores para no ser engañado
Configurando el escritorio de tus sueños: 11 productos con estilo IKEA
Lo que eligen los diseñadores: muebles trending 2022-2023
Cómo hacer un excelente remodelado sin reconfiguración: 5 ideas
Cómo se realizó el diseño y remodelación de una duplex de 53 m² con un presupuesto limitado
7 acogedoras ideas para un ideal diseño de interiores otoñal
Cronología del remanufactura: el experto nombró 7 etapas principales