Cómo se realizó el diseño y remodelación de una duplex de 53 m² con un presupuesto limitado
El diseñador refinó la distribución del espacio, creó dos habitaciones principales y desarrolló un diseño básico
El diseño y la remodelación de esta vivienda se realizaron con el objetivo de su venta. Al diseñador Anastasia Lappo le fue encomendado mejorar la distribución original de la duplex de 53 m², crear varias zonas funcionales y utilizar materiales económicos para la decoración. A pesar de eso, deseaban lograr un interior acogedor y armónico. Al final, todo se pudo llevar a cabo con éxito, y la nueva dueña es una joven.
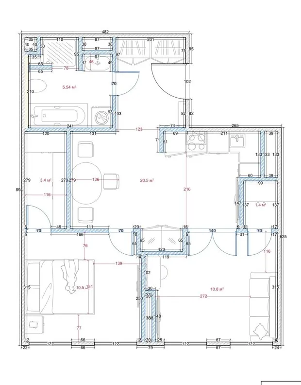
Distribución del espacio
En 53 metros cuadrados se logró colocar la cocina con zona de comedor, dormitorio y sala de estar-escritorio. Además, hubo suficiente espacio para dos habitaciones de guardarropa completas.

Cocina
La cocina resultó muy peculiar en su distribución. La parte principal es un mueble angular, los armarios superiores para los platos solo están en la nicho, y el resto de la pared está completamente revestida con cerámica tipo mármol.


Todas las paredes están decoradas con pintura, además se añadieron molduras decorativas. Todos los techos son de tela con sistema de suspensión de sombra, es decir sin molduras en la zona común y con molduras en el dormitorio. El suelo es uniforme en toda la vivienda: laminado de calidad.
La chimenea aporta calidez al espacio y visualmente resalta el televisor negro en la pared clara.
Para el refrigerador y el horno combinado con microondas se creó una zona separada, que se integró perfectamente al diseño.
Sala de estar-escritorio
«He creado dos habitaciones vivibles aisladas, pero en una he previsto puertas dobles para garantizar la entrada de luz natural a la cocina sin ventanas», explica el diseñador.

La sala está diseñada con una gama cálida y acogedora, las altavoces aportan relieve con paneles verticales y arte.



Dormitorio
Las paredes del dormitorio están decoradas con molduras, la composición simétrica relaja y no distrae. La cama se eligió en el color de las paredes, mientras que la decoración textil fue contrastante.


En el dormitorio y la sala de estar se han construido habitaciones de guardarropa separadas, con puertas cómodas que no ocupan mucho espacio, y todo dentro está bien simplificado y pensado.
Entrada
La entrada está separada de la cocina-comedor por una pequeña división, sin embargo se logró delimitar el espacio para que sea cómodo.
El principal elemento decorativo en la entrada es una pintura hecha con musgo estabilizado, se hizo a medida y se previó su iluminación desde el inicio.
En el pasillo se hizo una nicho para un armario estándar IKEA PAX.
Baño
En el baño hay una bañera y una cabina de ducha completa. Algunos clientes no les gusta que el inodoro esté frente a la entrada, pero es una medida necesaria debido a la ubicación del conducto.



Marcas incluidas en el proyecto
Cocina
Revestimiento: pintura, Little Greene; azulejos, Laparet
Piso: laminado, Pergo
Muebles: armario, IKEA
Garnitura: «Cocinas María»
Electrodomésticos: Bosch
Baños: Gappo
Lavadero: Omoikiri
Sala de estar
Revestimiento: pintura, Little Greene; molduras, «Europlast»
Piso: laminado, Pergo
Muebles: Zara Home
Baño
Revestimiento: azulejos, Laparet
Piso: azulejos, Laparet
Sanitarios: inodoro, AM.PM; bañera, Roca
Baños: Gappo
Iluminación: Maytoni
Dormitorio
Revestimiento: pintura, Little Greene; molduras, «Europlast»
Piso: laminado, Pergo
Muebles: armarios, «Hogar Hermoso»; mesas de noche, IKEA
¿Quieres que tu proyecto sea publicado en nuestro sitio web? Envía fotos del interior a wow@inmyroom.ru
Need a renovation specialist?
Find verified professionals for any repair or construction job. Post your request and get offers from local experts.
You may also like
Más artículos:
Estilo elegante de dos habitaciones de 62 m² con dos baños y sistemas de almacenamiento espaciosos
Las 10 colecciones de lámparas más populares
El diseñador nombró 8 antitendencias del 2022 que arruinarán cualquier interiores
Lugar de trabajo como en la portada: 5 ideas que todos querrán repetir
6 cosas que deprecian tu cocina y arruinan el diseño
Una psicóloga identificó las razones por las que a unos les molesta el desorden en casa y a otros no
Cómo un diseñador creó la atmósfera de una casa antigua en una vivienda nueva
Planificando el remojo: presupuesto, etapas y consejos útiles para decorar un apartamento