Diseño universal en una habitación de 37 m²: todo pensado hasta el más mínimo detalle
Excelente ejemplo de distribución armónica del espacio habitable: nada innecesario y todo lo esencial al alcance de la mano.
Contamos cómo la diseñadora Marina Sargsyan decoró una habitación en Moscú.
LUGAR: MoscúMETRAJE: 37 m²
HABITACIONES: 1
BAÑOS: 1
DISEÑO: Marina Sargsyan
FOTOS: María Irinaarhova
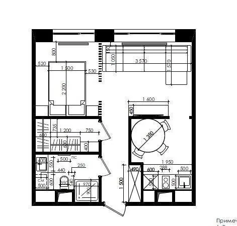
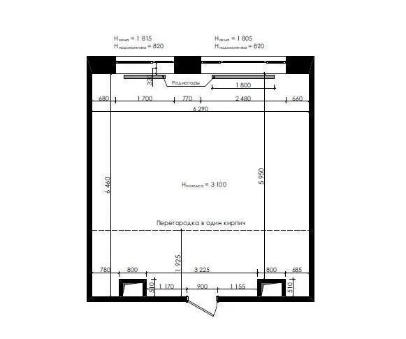
Replanificación
Marina creó este diseño bajo el pedido de una pareja que planeaba alquilar la habitación a su hijo. Al principio, la habitación se pensaba alquilar, por lo que el diseñador necesitaba crear un espacio bastante universal.

Originalmente no había ni acabados ni particiones. La cocina no se movió a ningún lado, simplemente se aisló con una buena ventilación.
Entre la sala de estar y la habitación se colocó una partición de listones, y en la nicho del baño se instaló una ducha.
Acabado
Las paredes se pintaron en un tono claro de gris, y el énfasis se hizo con ladrillo de yeso rojo.


En lugar del laminado en el suelo se colocó cerámica con imitación de madera y piedra.


Almacenamiento y muebles
Se instaló una habitación completa con sistema Elfa, además de un armario integrado en el pasillo.
De la mobiliario se eligió únicamente lo más necesario: todos los artículos combinan bien entre sí y no desvían la idea general del diseño.

Decoración
Las ventanas se cubrieron con cortinas romanas, cuyos tonos se reflejan en las almohadas y flores decorativas.

Además de mantas y velas aromáticas, la decoración incluye una pintura vibrante centrada en una de las paredes de la sala.

Need a renovation specialist?
Find verified professionals for any repair or construction job. Post your request and get offers from local experts.
You may also like

Cómo ahorrar en el presupuesto de una reforma en una vivienda pequeña: 7 consejos de expertos con un ejemplo real

Cómo elegir la paleta de colores para cada parte de un apartamento

Consejos simples que ayudarán a decorar un interior atemporal

Impresionante casa que construyeron por sí mismos sin diseñadores ni proyectos listos
Más artículos:
Cómo ahorrar en el presupuesto de una reforma en una vivienda pequeña: 7 consejos de expertos con un ejemplo real
Cómo elegir la paleta de colores para cada parte de un apartamento
Consejos simples que ayudarán a decorar un interior atemporal
Impresionante casa que construyeron por sí mismos sin diseñadores ni proyectos listos
Un increíble remodelado de baño en un apartamento de estilo Khrushchyov: cómo todo cabó en 3 m²
Cómo se decoró una mansarda con acentos llamativos y paredes de lana
Cocina escandinava en un apartamento estándar de dos habitaciones con muchas ideas geniales
Top 5 estilosas cocinas con mobiliario IKEA