Cómo ahorrar en el presupuesto de una reforma en una vivienda pequeña: 7 consejos de expertos con un ejemplo real
Consejos prácticos del diseñador

El espacio debía resultar joven, elegante y cómodo para los futuros inquilinos. En total, la reforma en bruto y acabado costó al cliente 1,3 millones de rublos —y podría haber sido mucho más caro.
Vamos a ver qué consejos prácticos ayudaron al diseñador a ajustarse al presupuesto limitado.
Suscríbase a nuestro canal de Telegram.
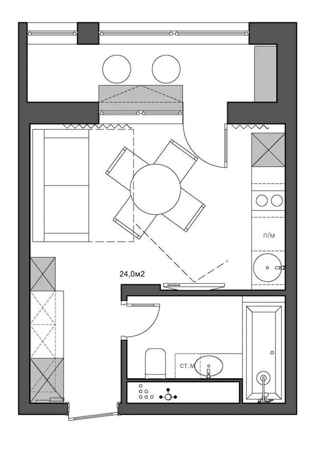
Planificación
Cuantas menos divisiones y puertas, menos gastos y más espacio en el apartamento. Por eso se debe unir la cocina con la sala de estar, la zona de comedor con el sofá y la televisión y así sucesivamente.
Consejo: divida las distintas partes del apartamento mediante el uso de color, textil, mobiliario, texturas o iluminación.

Revestimiento de las paredes
Durante el uso, sin duda se necesitará corregir algunas partes de la pared. Si están colocadas las pinturas, se tendrá que quitarlas, imprimirlas y cambiar.
Por esta razón se debe preferir la pintura de paredes lavable con tonos populares. De esta forma, solo se necesitará volver a pintar una parte específica de la pared.
Consejo: compre pintura con altas proporciones de cobertura — así el color se verá excelente en dos capas. Si se desea resaltar una pared, puede elegir papel pintado.

Revestimiento del suelo
Al elegir el revestimiento del suelo, se debe mantener un mismo material en todos los espacios excepto en el baño. Esto también le permitirá obtener una descuento y acceso gratuito a la entrega.
Consejo: para una decoración económica se puede usar un laminado de clase 33 en el pasillo y la cocina (se debe pegar el sellador para laminado sobre las juntas). Si el espacio del apartamento está limitado, puede optar por cerámica de madera y colocar un suelo cálido en la cocina y el dormitorio. Colocar cerámica de madera con forma de árbol crea un efecto visual similar al parquet que presenta bajo costo, larga duración y fácil mantenimiento.

Dos tipos de iluminación
La cantidad de tipos de iluminación incrementa el costo del proyecto porque se requiere instalar más cables y montar más interruptores.
Consejo: prevé dos tipos de iluminación — «principal» y «especial». Para la principal, puede usar focos empotrados o luminarias de pared vendidas en cualquier almacén de construcción. Para la especial, es mejor elegir un colgante elegante, una lámpara de pie o un bra con descuento. El colgante se verá armonioso sobre la zona de comedor, la lámpara de pie junto al sofá o el sillón y el bra sobre la cabecera de la cama.

Mosaico
Una decoración económica no implica más de 2-3 tipos de mosaico, y comprar varios tipos a la vez es más rentable — las marcas ofrecen descuentos en productos y envío.
Consejo: use un solo tipo de mosaico en el suelo y la parte detrás del baño o inodoro. Para variar, puede colocar el material en formas diferentes tanto en el suelo como en las paredes. Otras paredes pueden ser pintadas con una pintura lavable, y usar los trozos restantes para decorar el delantal de la cocina.

Cálculo del material
Es necesario verificar cuidadosamente el presupuesto de los materiales de construcción o calcularlo por uno mismo en ausencia del proyecto de diseño. Para ello, mida el perímetro de la habitación y multiplique por la altura de las paredes, luego reste el área de ventanas y puertas — esa será el área a pintar. En toda la producción de pintura y revestimientos se indica el consumo del material en litros por metro cuadrado, lo que ayuda a calcular cuántas latas de pintura o cuántos rollos de papel pintado se necesitan.
Consejo: recomiende comprar los materiales de construcción para la decoración acabada manualmente, sin preocuparse por los maestros ni diseñadores. Esto le dará confianza en la calidad y cantidad de lo que se entrega, además obtendrá una buena descuento del fabricante.

Muebles estándar
El conjunto de cocina, los armarios y otros muebles deben planificarse desde el inicio del proyecto para evitar sobrecostos por tamaños no estándar de los artículos. Los muebles ya fabricados siempre son mucho más baratos que si se hicieran a pedido. No olvide comparar las dimensiones de los muebles seleccionados con el área del espacio durante las obras de reforma.
Consejo: muchas marcas ofrecen planificadores virtuales de muebles que permiten colocarlos virtualmente según el área del apartamento.

Need a renovation specialist?
Find verified professionals for any repair or construction job. Post your request and get offers from local experts.
You may also like
Más artículos:
Organiza tu farmacia doméstica: cómo, dónde almacenar y desechar correctamente los medicamentos
Rediseño de una habitación de 28 m² para vida y trabajo con 600 mil rublos
Top-10 de los baños más acogedores y pequeños
Unidad de un solo cuarto en estilo loft ecléctico en el norte de Moscú
7 geniales consejos de diseño que cualquiera puede replicar fácilmente
Dormitorio cuidadosamente diseñado sin necesidad de un diseñador
Las 5 mejores baños nórdicos de Suecia que inspirarán tu reforma
7 interiores en tonos suaves con atmósfera romántica