Impresionante casa que construyeron por sí mismos sin diseñadores ni proyectos listos
La casa de sus sueños cerca de San Petersburgo
¿Es realista construir una casa como en las películas y revistas? Olga y su esposo siempre quisieron vivir más cerca de la naturaleza, no solo escaparse al campo los fines de semana. Por eso decidieron construir una casa rural para vivir todo el año. Al final, ya no querían volver a la ciudad.
Veamos cómo lograron conseguir su propia casa cerca de San Petersburgo.
Casa de 160 m² sin proyecto
La pareja no planeaba construir con un proyecto prehecho ni hacer los trabajos básicos de aislamiento por sí mismos.

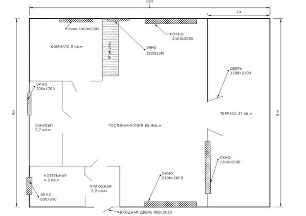
No se complicaron con la forma de la casa, eligieron una bastante estándar sin ornamentos arquitectónicos. La distribución de las ventanas fue ayudada por una amiga diseñadora. El primer piso tiene más luz gracias a la ventana al lado de la escalera.



Distribución
Los espacios principales del primer piso están separados solo por una barandilla y una estantería. No usaron paredes cerradas para delimitar el espacio porque eso haría que pareciera una habitación común de apartamento.






En el segundo piso aún no está terminado todo: solo la habitación y el estudio que requieren acabados y mejoras.
Terraza
El lugar favorito es la terraza. La pareja planea crear otra igual en la parte norte de la propiedad. Se puede acceder desde el baño, una idea tomada de los diseñadores finlandeses.


Ahorro
Olga y su esposo hicieron instalaciones sanitarias, montaje y acabados por sí mismos, así como algunos muebles. La construcción de tareas domésticas también la construyeron ellos mismos, y aprendieron el truco del fachada de troncos de madera de un arquitecto llamado Alexander Karimov. Todo esto significó un gran ahorro presupuestario.

Need a renovation specialist?
Find verified professionals for any repair or construction job. Post your request and get offers from local experts.
You may also like
Más artículos:
Unidad de un solo cuarto en estilo loft ecléctico en el norte de Moscú
7 geniales consejos de diseño que cualquiera puede replicar fácilmente
Dormitorio cuidadosamente diseñado sin necesidad de un diseñador
Las 5 mejores baños nórdicos de Suecia que inspirarán tu reforma
7 interiores en tonos suaves con atmósfera romántica
Todo hecho por uno mismo: remodelación económica de cocina con almacenamiento abierto
Modernización de una casa de estilo хрущёвка para familia con excelente organización de almacenamiento y electricidad inteligente
Cómo se creó una cocina indestructible de 3 m²