Espacio y minimalismo en decoración: hermosa casa de un piso de 100 m²
Originalmente, este pequeño hogar se pensaba solo para descansar, pero tras una reconstrucción se convirtió en el lugar principal de residencia. Los diseñadores del estudio Astar Project trabajaron durante todo un año en este proyecto, esforzándose por lograr una vivienda espaciosa y funcional.
LUGAR: Rostov-on-Don
METRADO: 100 m²
PISOS: 1
BAÑOS: 1
DISEÑO: ASTAR PROJECT
ESTILISTA: Sofía Kalbazova
FOTOS: Miguel Chekalov
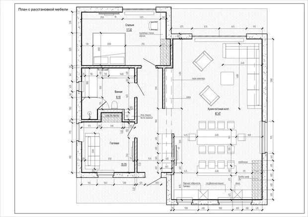
PlanoLa casa de aproximadamente 100 m² se dividió en cocina-comedor y espacios privados. Debido a la escasez de espacio, se limitó la cantidad de muebles y se eligieron predominantemente tonos neutros en la decoración.
La cocina-comedor se encuentra a la derecha, mientras que la habitación principal, sala de visitas y baño están a la izquierda. Un excelente lugar para almacenamiento en la cocina fue el mueble con tablero y un tablero con cajones deslizantes y estanterías.

Gracias a la división entre el baño y la sala de visitas se creó un espacio útil para la lavadora y un armario. Además, debido al grosor de esta división se formó una zona adicional en la ducha con estanterías para accesorios.
AcabadosPara el sistema de calefacción se utilizó un suelo radiante con agua, por lo que se decidió colocar cerámica granítica sobre madera. En el suelo y paredes del baño se usó cerámica granítica con diseño de mármol: mosaico redondo y losas de 120x60 cm.


Las paredes de la habitación principal y cocina-comedor están recubiertas con pintura decorativa y papel pintado. En la zona del televisor se usó cerámica granítica, mientras que en la sala de visitas se aplicó pintura y paneles de madera que ocultan un gran armario.


En la cocina-comedor y entrada el suelo con tonos cálidos se relaciona con acentos verdes, grises y blancos. En la habitación principal, el arte mural llamativo contrarresta las paredes y muebles monocromáticas.
Almacenamiento y mueblesDebido a la falta de espacio para una habitación de ropa completa, se previeron pequeños espacios de almacenamiento en cada habitación. Por ejemplo, para huéspedes en la habitación principal se colocó un armario empotrado, casi invisible por su coincidencia con los tonos de las paredes.



Todas las piezas de mueble, excepto las sillas de bar, la mesa y las sillas en la habitación principal, fueron fabricadas bajo medida.

Iluminación y casa inteligenteMediante un sistema especial de automatización se puede controlar la iluminación del hogar. En cada habitación cambia entre luz brillante y decorativa.
El sistema de casa inteligente también permite ajustar la operación de las cortinas, suelo radiante, aire acondicionado y otros elementos.


Need a renovation specialist?
Find verified professionals for any repair or construction job. Post your request and get offers from local experts.
You may also like
Más artículos:
10 ideas para almacenar en un baño pequeño
Cómo revitalizar muebles antiguos: 5 talleres prácticos
Loft en una krushchevka común de 43 m² con columna en la cocina
Otras 10 ideas de almacenamiento en apartamentos pequeños que vimos en Pinterest
12 ideas de almacenamiento en apartamento pequeño, que observamos en Pinterest
Los 8 mejores consejos para decorar tu zona de verano
Cómo ahorrar en el presupuesto de una reforma en una vivienda pequeña: 7 consejos de expertos con un ejemplo real
Cómo elegir la paleta de colores para cada parte de un apartamento