Loft en una krushchevka común de 43 m² con columna en la cocina
¿Cuánto cuesta y si el remanufacturado costó?
Cuando no quieres 'como todos', la ayuda viene de la imaginación ilimitada y decisiones atrevidas. Justo con este principio se guió la arquitecta Anastasia Antoniuk al decorar el apartamento de dos habitaciones en una construcción típica de época krushchevka.
Contamos cómo se logró un interior no estándar en una vivienda que parece completamente normal a primera vista.
Suscríbete a nuestro canal de Telegram.

- Ciudad: Moscú, distrito de Tverskoy
- Metro: 43 metros cuadrados
- Habitaciones: 2
- Baño: 1
- Altura del techo: 2,6 metros
- Presupuesto: 2,5 millones de rublos
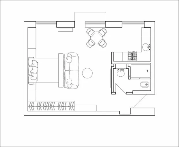
Replanificación
Los dueños del apartamento son una pareja joven con profesiones creativas, por lo tanto pidieron un diseño acorde a ese espíritu.
Al final, la distribución se cambió completamente: se quitaron todas las paredes y se separó el baño con particiones. Se obtuvo un espacio grande, unificado y muy luminoso.


Revestimiento
Las paredes de ladrillo se cubrieron con pintura y se dejaron al aire. Los elementos de concreto se trataron con laca mate, mientras que las demás paredes fueron rellanadas y pintadas.

El suelo del apartamento se colocó con parquet de roble de 30x30 cm con un diseño noble. Para el baño se eligió azulejo cerámico de Metlakatla, mientras que en la ducha y cocina se usó el blanco clásico.

Sistema de almacenamiento
En toda la superficie del apartamento se colocaron filas de armarios: para ropa estacional, área de artículos domésticos y también aspiradora con escoba y tabla de planchar.
Un cómodín hecho a medida, con cajones laterales, se colocó entre la cama y el sofá.

En la partición frente al salón se previó una nicho para libros, y en el baño, estanterías de cristal para champús.
También hay espacio adicional para almacenar detrás del espejo sobre el lavabo.

Luz y gama de colores
En lugar de iluminación general en la oficina, se implementó un sistema de iluminación individual. En la cocina, entrada y baño se instalaron proyectores resistentes al agua. Sobre el tablero de cocina colgaron una lámpara hecha por uno mismo, mientras que en el salón se colocó un farol con función de iluminación de diferentes intensidades.


El color principal del interior fue el blanco, y como acento apareció la pared de grafito. Los elementos llamativos fueron las manchas amarillas en el pasillo, alfombras coloridas en el suelo y un sillón azul.


Mueble
Los muebles se eligieron acorde al estilo general del apartamento: loft y minimalismo escandinavo. Los armarios y mesitas fueron hechos a medida, mientras que el cómodín fue heredado de la abuela.
La cocina se decoró con muebles blancos con tecnología integrada, y algunos armarios fueron reemplazados por estanterías abiertas.


En el baño se implementó una ducha con bandeja de azulejo. El inodoro fue colocado integrado, lo que no solo ahorró espacio sino también liberó una estantería más.
Decoración y textiles
La decoración se recogió cuidadosamente basándose en estilos y épocas diferentes. Muchos fueron comprados en IKEA, la alfombra ucraniana y el cojín se guardaron desde tiempos anteriores, mientras que la manta fue traída de la isla de Sri Lanka.
En las ventanas se colgaron persianas, por lo que no hubo menos luz. El dormitorio se decoró con alfombras de rattan de IKEA, y las paredes de toda la vivienda se cubrieron con fotografías de diferentes países.


Need a renovation specialist?
Find verified professionals for any repair or construction job. Post your request and get offers from local experts.
You may also like
Más artículos:
Selección con carácter: 10 interiores brutales de diseñadores
Principales tendencias en el diseño de ventanas en 2022
Las 10 cocinas más increíbles del 2021
Cómo decorar una casa de una habitación con bajo presupuesto: paredes llamativas y mobiliario de IKEA
Organiza tu farmacia doméstica: cómo, dónde almacenar y desechar correctamente los medicamentos
Rediseño de una habitación de 28 m² para vida y trabajo con 600 mil rublos
Top-10 de los baños más acogedores y pequeños
Unidad de un solo cuarto en estilo loft ecléctico en el norte de Moscú