Cómo convertir un apartamento descuidado en un espacio artístico elegante
¿Te atreverías a hacer algo así?
A veces, incluso en una antigua estalinista de Moscú se puede crear un interior atrevido y valiente. Nosotros lo comprobamos con el ejemplo de los diseñadores del estudio PROSPECT: Denis Shapkin y Andrey Vasilchenko.
Contamos cómo lograron organizar una cocina pasillo y otras zonas interesantes en 41 m².
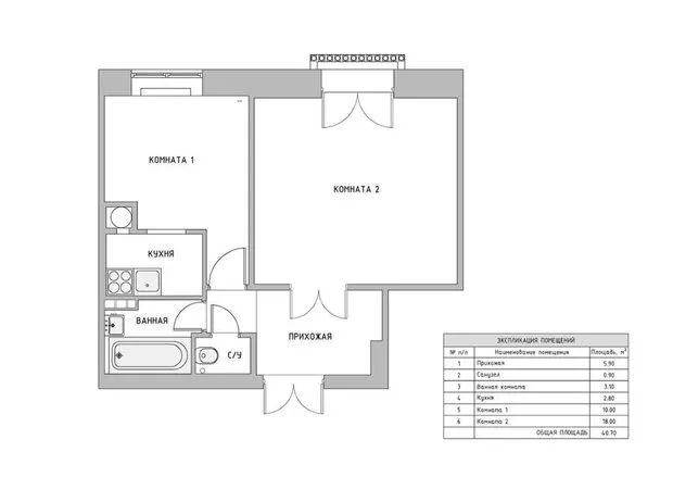
PlanoEl propietario quería alquilar esta habitación doble por días, por lo que el diseño se planeó extremadamente llamativo y creativo. Con un permiso total para volar libremente en el campo del arte, los diseñadores decidieron transformar completamente el espacio habitable.
El apartamento está ubicado en un edificio típico de la época estalinista. Antes de la reforma, aquí se previsto una cocina estrecha con nicho, dos habitaciones de diez y dieciocho metros cuadrados, además un baño separado. Debido a la tubería de gas no fue posible mover la cocina, por lo que el baño se redujo. Esto permitió colocar ambas partes del conjunto — con la estufa y el lavabo.

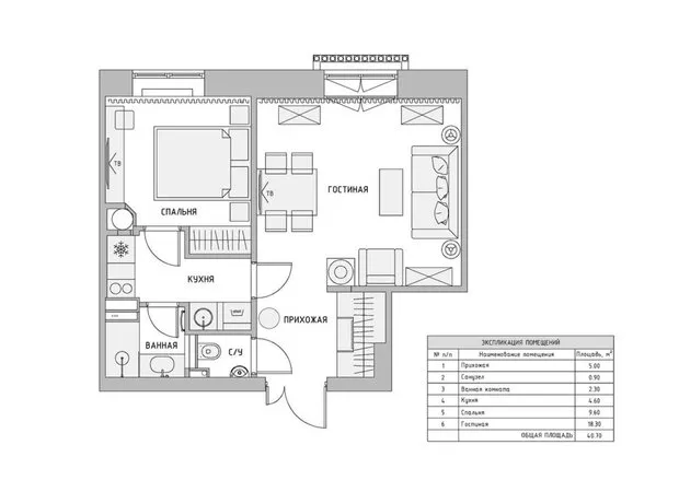
En la habitación cercana a la cocina se creó una pequeña habitación de dormir. Esto se hizo pensando que los inquilinos prepararán sus comidas al mínimo.
El espacio restante en el apartamento se reservó para la sala de estar, zona de comedor y guardarropa en el vestíbulo.
AcabadosPara hacer que el entorno parezca más interesante, no se siguió un estilo único — aquí hay referencias al arte deco e incluso a la neoclásica.

Las paredes se revestieron con espatulilla decorativa Caparol, cornisas de yeso y molduras. Los suelos en las habitaciones se decoraron con parquet de roble “Estrella Sheremetyevo”, mientras que en el vestíbulo, baño y sanitario se colocó ceramogranito.


DecoraciónPara embellecer el interior terminado, la estilista Irina Bebeschina ayudó. El apartamento se decoró con alfombras, almohadas decorativas, ropa de cama de seda 100%, y obras artísticas originales del joven Yuri Grigoryan.
Además de un armario amplio en el pasillo, se instaló un armario-closet hasta el techo en la habitación de dormir. La cabecera de la cama se hizo en forma de panel de pared costurado.


La bañera y el baño se dividieron visualmente mediante vitraje personalizado en la técnica Tiffany, que se convirtió en el punto destacado del proyecto de diseño.

El principal acento de la doble habitación fue la cocina pasillo, que se puede ocultar cuando sea necesario tras las puertas correderas con bordes.




Need a renovation specialist?
Find verified professionals for any repair or construction job. Post your request and get offers from local experts.
You may also like
Más artículos:
5 ideas de decoración navideña DIY que son fáciles de repetir
¡Muy Peri! 5 diseños de interiores ejecutados en el color principal del año 2022
Diseño de interiores elegante en una habitación de 500 mil rublos
Almacenamiento de cosas en una sola habitación: 5 geniales consejos prácticos
De una «doble habitación» en un viejo edificio se creó una sala moderna y espaciosa
Elegante loft en una pequeña vivienda de una habitación de 32 metros cuadrados
Cómo hicieron un diseño económico en una casa de estilo хрущевка en 2 meses
No saber qué es una casa de estilo krushchev: diseño moderno y elegante