3 nuevas ideas para replanear un apartamento de dos habitaciones con balcón
Un apartamento de dos habitaciones es una excelente oportunidad para crear condiciones cómodas tanto para un soltero como para una pareja con hijos. La arquitecta Anastasia Kiseleva propuso 3 variantes de distribución del apartamento en el edificio de serie P-44K, y el experto en replanificaciones Maxim Dzhurayev explicó cómo coordinarlas sin dificultades.
Información breve
La distribución típica del apartamento de dos habitaciones en el edificio de serie P-44K es bastante práctica, aunque la mayoría de las paredes sean estructurales. En realidad, se puede cambiar únicamente la distribución de las particiones alrededor de los baños. Una característica interesante de esta serie es la nicho en la pared estructural entre la cocina y la sala de estar. En este lugar se puede hacer una abertura sin refuerzo estructural de la pared.
Distribución típicaVariante 1: para un soltero
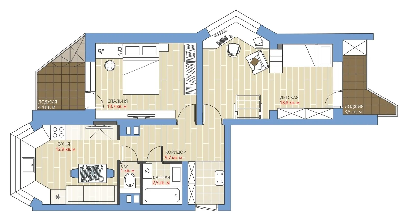
Esta distribución es ideal para una persona apasionada por su trabajo, que trabaja mucho – incluso en casa. Para el espacio de trabajo se utilizó parte de la sala de estar (ya está dividida adecuadamente por los elementos estructurales). Se renunció a las puertas de la habitación del estudio y la sala de estar: gracias a esto, el espacio parece más amplio. La entrada a la cocina se hizo a través de la sala de estar, para conectar el pasillo con el baño. Ahora en él se puede colocar una bañera angular, lavabo, inodoro con instalación y un armario de lavandería con lavadora.
Opinión del experto: la coordinación es posible mediante el proyecto de replanificación y una certificación técnica de cualquier organización de diseño con la licencia correspondiente del SRO. En el baño combinado se debe realizar una impermeabilización y aislamiento acústico del suelo.

Variante 2: para una pareja con muchos artículos
En la gran sala de estar hay dos ventanas: se puede dividir tranquilamente en habitación dormitorio y guardarropa con iluminación natural. Además de los sistemas de almacenamiento, aquí hay espacio para una mesa de maquillaje. En el balcón se puede organizar la continuación del guardarropa y prever estanterías para artículos usados poco. La entrada a la cocina también se hizo desde la sala de estar: en el baño ampliado se colocará una lavandería mini con lavadora, secadora y estantes para almacenamiento. El balcón en la cocina se utilizó para crear una zona acogedora alrededor de la mesa: para los más ahorradores, se pueden hacer cajas debajo del asiento.
Opinión del experto: coordinar no será difícil. Se requiere un proyecto de replanificación y una certificación técnica de cualquier organización de diseño con la licencia correspondiente del SRO.

Variante 3: para una familia con un niño pequeño
Esta distribución puede transformarse fácilmente en un apartamento con dos habitaciones dormitorio. Mientras el niño sea pequeño, se recomienda usar la habitación con balcón como dormitorio compartido. Se puede dividir el espacio en zona infantil y zona para adultos mediante textiles. Así, en una sola habitación, además de la cama matrimonial, caben la cuna del bebé, una mesita para cambio de pañales, dos armarios y un sillón cómodo. En la cocina se colocó el mueble de cocina a lo largo del balcón para más adelante organizar allí una mini sala de estar. En el pasillo se dejó espacio para estacionar un coche de bebé, por lo tanto se limitaron los armarios abiertos para ropa estacional. Cuando el coche de bebé ya no sea necesario, se puede colocar un cojín en ese lugar donde se puede calzar cómodamente al niño.
Opinión del experto: se puede coordinar como los dos casos anteriores, mediante un proyecto de replanificación y una certificación técnica.

En la portada: proyecto de diseño Cultura-diseño
Need a renovation specialist?
Find verified professionals for any repair or construction job. Post your request and get offers from local experts.
You may also like
Más artículos:
Cómo organizar un espacio de trabajo en la habitación: tres ejemplos reales
Cómo colocar el mueble en la sala de estar: consejos de expertos
Mejores proyectos de habitaciones infantiles de diseñadores
Podio como espacio de almacenamiento: 5 ejemplos reales
9 razones para comprar una cocina a medida
Replanificación de un apartamento de dos habitaciones en un "khrushchyovka": 3 ideas de expertos
De ladrillo antiguo a grafiti: 5 ideas para una decoración de paredes moderna
¿Debería unirse la loggia?: todos los pros y contras + ejemplo real