Cómo diseñar una vivienda de un dormitorio para una familia con niño: 3 ideas de distribución
¿Qué necesitas prever en la distribución de una vivienda si tienes un niño? Un espacio para dormir, un armario para cambiar pañales o almacenar cosas, percheros en el baño para cosméticos y productos de limpieza infantiles y, por supuesto, un lugar para el coche de bebé: sí, todo esto puede colocarse en una vivienda de un dormitorio. La arquitecta Anastasia Kiseleva propuso 3 opciones de distribución en el edificio de la serie P-44M, y el experto en replanificación Maxim Dzhurayev comentó los detalles de aprobación.
Información breve
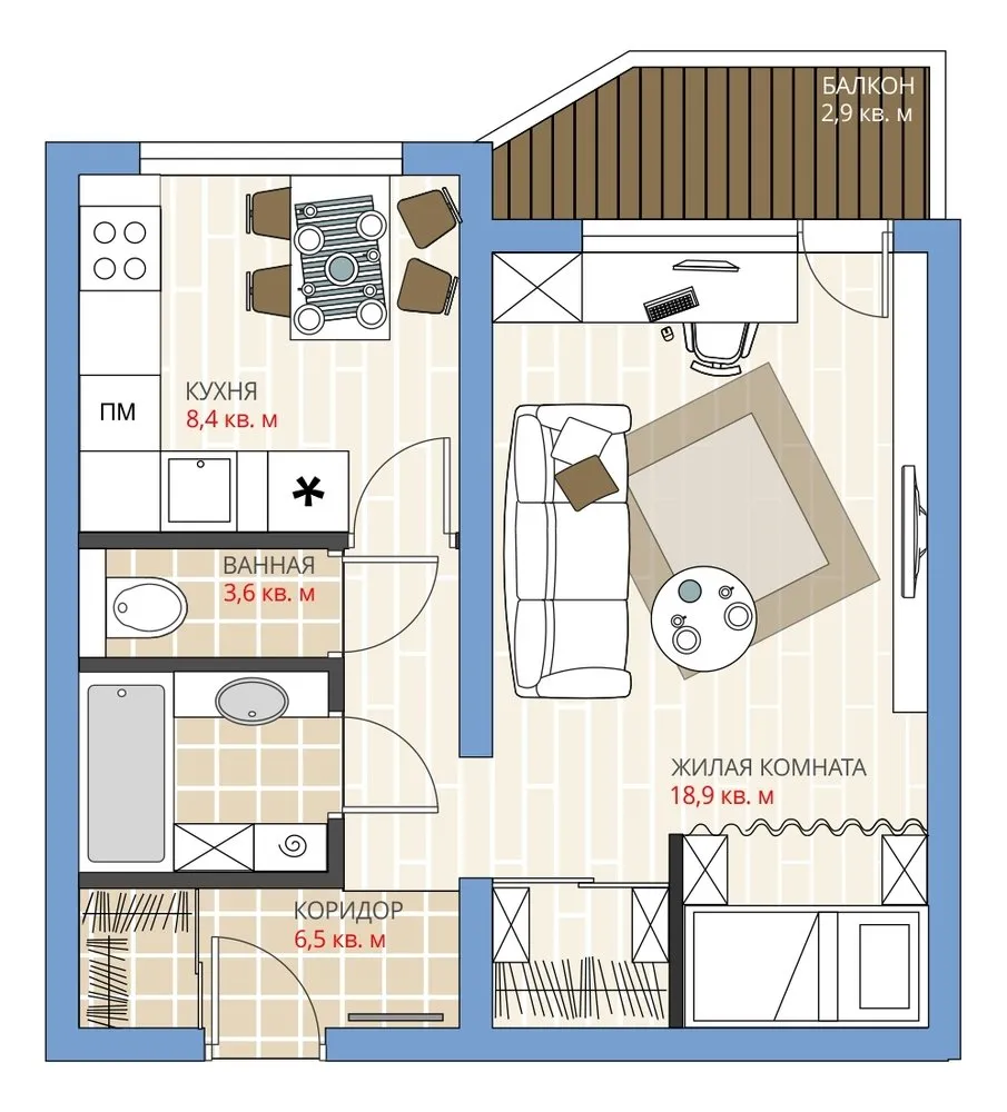
En la distribución estándar de una vivienda de un dormitorio (37,8 m²) del edificio de la serie P-44M hay una pared estructural entre la habitación y el pasillo. Eso no permite ampliar el área de vida o la cocina usando el pasillo. La división del espacio solo es posible mediante la colocación de muebles.
Distribución estándarOpción 1: para una familia con un niño menor de un año
Los bebés a menudo se despiertan por la noche: para comodidad de la madre, la cuna se colocó junto a la cama. En la pared detrás de la cama hay un escritorio para cambiar pañales con cajones para artículos infantiles y un armario para cosas de los padres. Parte de la habitación cerca de la entrada se convirtió en una sala de estar mini con sofá y televisor. Al aparecer el niño, se necesita espacio para cosméticos infantiles y juguetes y productos de limpieza en el baño. A la izquierda y derecha del lavabo pueden construirse estanterías altas que ayuden a resolver este problema.
Se separó una parte del pasillo para tener espacio para el coche de bebé. Una opción ideal para la cocina sería un conjunto angular y una mesa para comedor. Allí es fácil colocar una cuna con el niño para que la madre pueda hacer tareas domésticas y vigilar al bebé al mismo tiempo.
Opinión del experto: la distribución resultante es bastante práctica, y su aprobación no causará problemas. Solo se necesita un boceto.

Opción 2: para una familia con un niño de uno a tres años
Para el niño que crece, se necesita un espacio de dormir más grande. La cama y la estantería para artículos infantiles se colocaron frente a la cama de los padres. Con el crecimiento del niño, en la casa aparecen más juguetes. Para ellos se puede equipar un sistema de almacenamiento debajo del televisor. La mesa auxiliar es fácil de usar para juegos con el niño. En la cocina se previó un espacio para una silla de comer.
Para el baño cómodo del niño se instaló una bañera grande y se diseñaron nichos a ambos lados para almacenar juguetes y cosméticos infantiles. El niño aún necesita un coche de bebé – para su “estacionamiento” se hizo un armario. Para que sea más fácil vestir al niño, se previó un taburete en el pasillo.
Opinión del experto: este diseño se puede aprobar fácilmente. Si cambia el tipo de revestimiento del baño, se necesitará un proyecto de replanificación y una declaración técnica de cualquier organización de diseño que tenga el permiso correspondiente del SRO.

Opción 3: para una familia con un niño mayor de tres años
Para un niño mayor de tres años ya se requiere un espacio personal. Para la cama infantil se construyó una nicho y se separó con una cortina. El espacio de dormir puede decorarse como un pequeño cubículo o hacerse una cama tipo “árbol” con espacio para juegos en el primer piso. En la superficie principal de la habitación está el sofá – también usado como espacio para dormir de los padres, televisor con una repisa. Cerca de la ventana se preparó un espacio de trabajo.
Al niño ya no le hace falta el coche de bebé, por lo que en el vestidor queda más espacio para almacenamiento. Junto a la puerta de entrada se puede colocar un soporte para bicicletas en la pared. Con el niño es más cómodo usar un baño separado. En el baño caben una bañera pequeña de 150 cm de largo, lavabo, lavadora y armario para productos de limpieza.
Opinión del experto: para la aprobación se necesita un proyecto de replanificación y una declaración técnica de cualquier organización de diseño que tenga el permiso correspondiente del SRO.

En la portada: proyecto de diseño de Jena Zhdanova
Need a renovation specialist?
Find verified professionals for any repair or construction job. Post your request and get offers from local experts.
You may also like
Más artículos:
Cocina inteligente: 6 novedades para quienes van al ritmo del tiempo
Una apacible vivienda escandinava dedicada a la música
Yin y Yang: ocho secretos simples para la armonía según el feng shui
7 casas que famosos arquitectos construyeron para sí mismos
Potencial de techo de yeso seco: elegir el techo
Creación de una lámpara de diseño: La clase magistral de Alina Chernyshova
10 productos cuyos precios ha reducido IKEA
¿Qué está de moda hoy? Resumen de las exposiciones de principios de 2017