Apartment with Glass Office / Alexander Tishler / Russia

Share:
This page is also available in the following languages:🇷🇺🇺🇦🇫🇷🇩🇪🇪🇸🇵🇱🇨🇳🇮🇳🇯🇵
Modern minimalist kitchen with smooth black and white furniture, contemporary pendant lighting and a cozy dining area with stylish chairs and decorative accents

At the heart of Moscow, this apartment with glass office by Alexander Tishler redefines compact urban living. Completed in 2023, the 731-square-foot apartment was adapted for a young client passionate about modern culture and music, who also aims to create content for his YouTube channel. The interior reflects personalization, functional zoning and modern style — based on a bold combination of beige, black, and dark red.

Open space with bright accents and a glass office nearbyPhotos © Evgeny KulebyakinLiving room composition with soft forms and dark accentsPhotos © Evgeny Kulebyakin

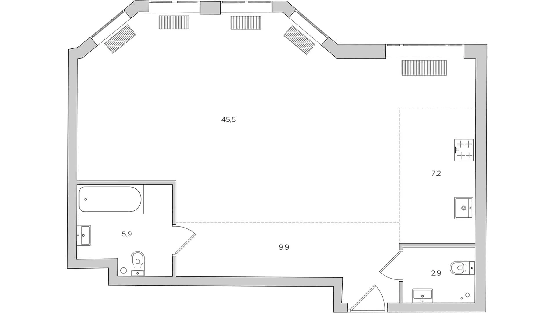
New Layout, Maximizing Functionality

Originally designed with minimal partitions, the apartment underwent radical changes. Tishler's team introduced a home office and a guest bathroom, reconfiguring the corridor and eliminating unnecessary passages. Result: seamless movement between functional blocks and notable design cohesion.

At the entrance, graphite stone and black furniture set the tone. Cabinet lighting with motion sensors provides convenient organization, while two mirrors and a floating console complete the space.

New layout replacing the corridor with functional blocksPhotos © Evgeny KulebyakinEntrance with graphite tiles and black furniturePhotos © Evgeny Kulebyakin

Monochromatic Kitchen and Concrete Dining Table

The kitchen area is styled with large tiles, upper modules made of MDF metal enamel imitating matte steel. Angled joints at 45 degrees create a seamless look. Notable features include hidden corner modules with outlets, a combined oven and microwave on a slide-out system, and a micro-concrete dining table, matched with MDF Italia leather chairs. Above the table, Vibia round pendant lights reflect the soft geometry of the dining table's lighting, next to a fluffy gray sofa.

Monolithic kitchen volumes in stone and enameled metalPhotos © Evgeny KulebyakinDining in micro-concrete with leather chairs and round pendant lightsPhotos © Evgeny KulebyakinHidden corner module and precise kitchen detailPhotos © Evgeny Kulebyakin

Glass Office for Creativity

Replacing the former corridor, the glass office, equipped with colored partitions and tinted curtains, ensures privacy during filming. RGB lighting in the niche creates atmospheric effects for content, while a custom floating desk with hidden supports makes the space feel light. Cabinet lighting activates on movement, and shelves and adjustable lighting complete the setup.

Glass office replacing the corridor with colored partitionsPhotos © Evgeny KulebyakinFloating desk with beveled edge and integrated lightingPhotos © Evgeny KulebyakinRGB lighting niche and storage modules in the officePhotos © Evgeny Kulebyakin

Dynamic Wall Treatment and Thoughtful Lighting

To reflect the client's taste, a local artist created graffiti art in a muted palette with accents of dark red, bringing life to the space. Vertical enameled panels near the phone wall add height and rhythm, while strategically placed mirrors reflect light throughout the room.

Muted graffiti art adding character to the living roomPhotos © Evgeny KulebyakinTV wall with vertical panels and reflected daylightPhotos © Evgeny Kulebyakin

Guest Bathroom with Lunar Theme

Replacing the old corridor, the guest bathroom uses ceramic granite tiles with a concrete texture, its own round mirror element and soft radial lamps to create a lunar atmosphere. A tall column conceals the washing machine, dryer, ironing board, and cleaning supplies.

Guest bathroom with round mirror and textured tilesPhotos © Evgeny KulebyakinColumn of hidden devices in the guest bathroomPhotos © Evgeny Kulebyakin

Living Room with City View

The bedroom, oriented toward views of the park and city, opens directly from the bed. Adjustable RGB lighting on the ceiling changes mood via remote or wall panel. Storage solutions include a transparent accent cabinet with RGB lighting, an integrated sideboard with hidden laundry drawers and lighting, as well as a hidden door to the bathroom.

Bedroom with city view and adjustable lightingPhotos © Evgeny KulebyakinCabinet with transparent front and RGB lightingPhotos © Evgeny KulebyakinIntegrated sideboard with hidden drawers and soft lightingPhotos © Evgeny Kulebyakin

Main Bathroom

Reflecting the guest bathroom, the main one includes its own quartz sink, bright ceramic granite facades, integrated outlets and shelves, as well as a monolithic bathtub block with an integrated faucet. The second round mirror enhances the overall home theme.

Main bathroom with monolithic bathtub and bright finishing touchesPhotos © Evgeny KulebyakinQuartz sink and illuminated shelves finishing the setupPhotos © Evgeny KulebyakinSoft geometry around the living room and TV areaPhotos © Evgeny Kulebyakin

Layout

BeforeLayout before renovationPlan — Before AfterLayout after renovationPlan — After

Need a renovation specialist?

Find verified professionals for any repair or construction job. Post your request and get offers from local experts.

You may also like