Sports Complex of Nicole Karam: Golden Lighthouse of Athletic Excellence in Mennese
In 2024, the Municipal Union of Val-d'Essonne opened a new architectural landmark in Mennese, France — the Sports Complex of Nicole Karam, designed by Atelier Aconcept. With its brilliant golden facade and high, floating form, the building pays tribute to the outstanding career of French handball legend Nicole Karam, while providing a high-performance, multi-functional sports facility based on principles of sustainable design.
Golden Statement
Situated on the edge of a commercial zone, the complex is covered with gold-toned expanded steel mesh, which changes color depending on lighting — an aesthetic reference to Karam's medal career. More than decorative, the reflective cladding bestows symbolic significance upon the structure, turning it into a city landmark and beacon for local development. The gleaming body is simultaneously festive and practical, hinting at excellence while optimizing natural lighting and energy efficiency.
Two Volumes, One Goal
The architecture consists of two intersecting rectangular volumes, slightly offset from each other to create an architectural rhythm and visual interest. This offset also serves a passive ecological function: shielding internal spaces from direct sunlight, allowing diffused light to fill the building throughout the day. The overhang provides shade in summer, reinforcing the project's eco-friendly approach.
Transparent, Welcoming Public Space
The ground level features a fully glass reception hall that connects with the outdoor courtyard, creating a permeable and friendly arrival experience. The transparent atrium — open on three sides — draws in natural light and offers clear visual paths to the center of the building. Inside, double-height spaces smoothly transition into a balcony level, enhancing spatial flexibility and public access.
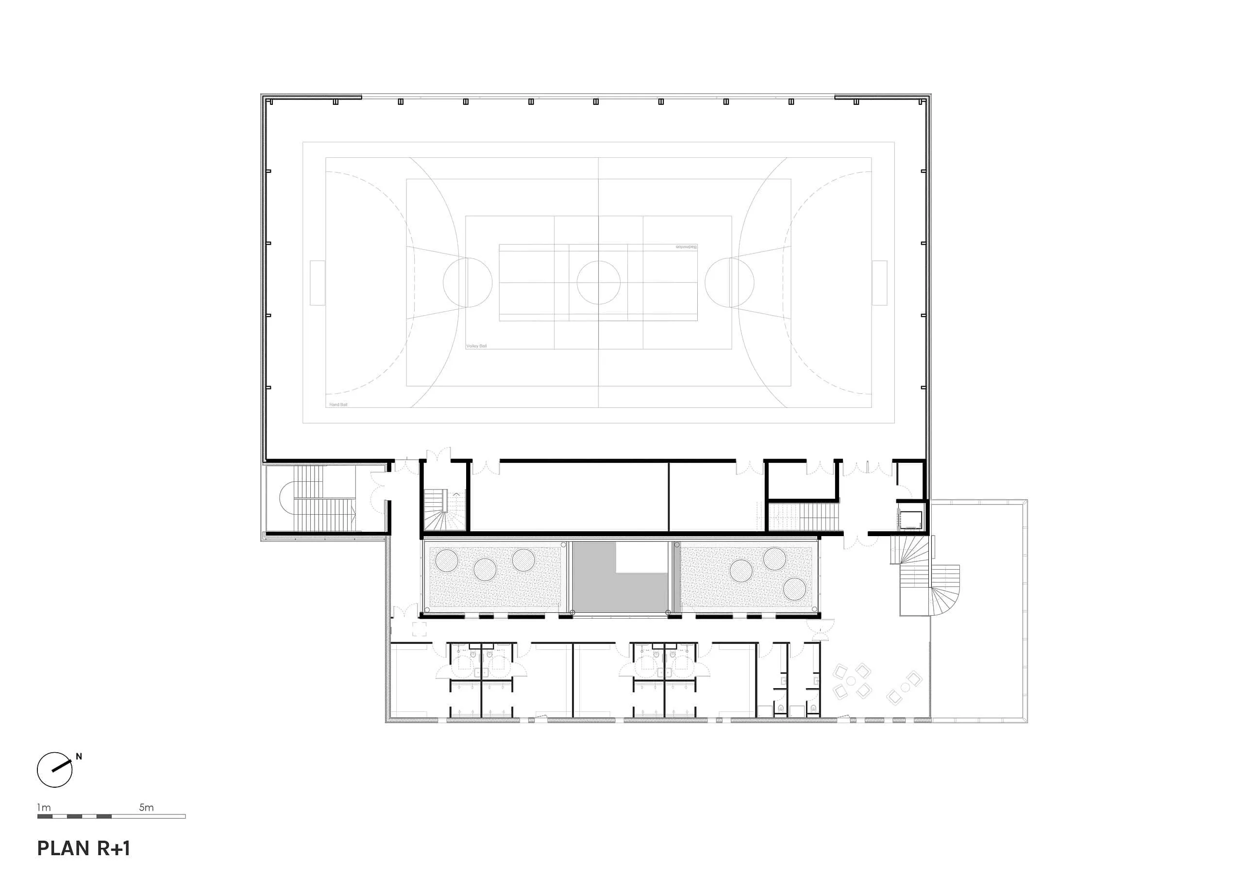
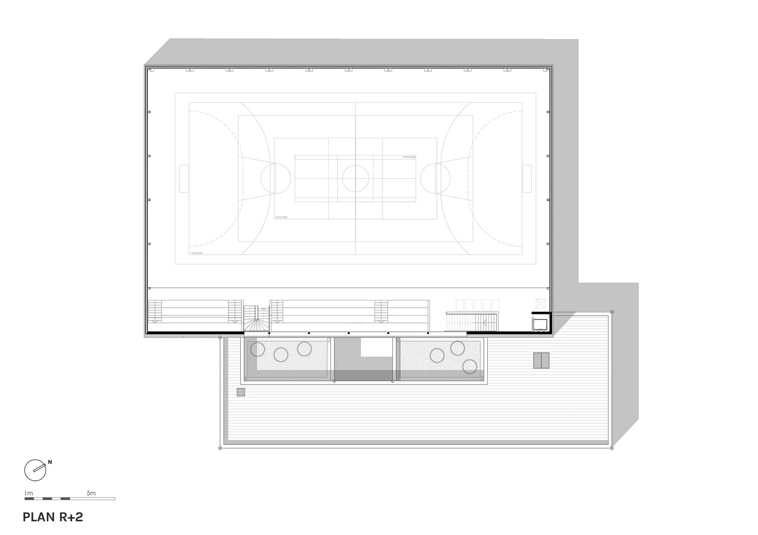
Multi-functional Sports Hall Above Ground
The upper level includes a multi-functional sports hall, an ideally rectangular arena framed by golden mesh and illuminated by north-facing skylights and a southern glass strip. This above-ground sports structure supports flexible configurations, from handball and basketball matches to training sessions and public events. Seating is designed for 100–150 spectators, depending on the event setup.
Adaptable Support Spaces
The first floor features two square rooms that meet diverse needs — from dance and fitness to exhibitions and creative workshops. These spaces are equipped with empty walls that can be used for mirrors, projections or ballet bars and provide direct access to the street, promoting integration with the surrounding business park. Shared storage areas enhance operational flexibility.
Circulation and Comfort
Wide corridors and circulation zones reflect a user-oriented approach, with a central courtyard that brings light to the heart of the building. This light shaft connects with a long green courtyard, which not only illuminates the balcony but also improves air circulation and spatial comfort at all levels.
Sustainable Urban Integration
One of the key project goals was integrating parking and stormwater management within a limited site. Architects addressed this through landscaped parking, which also serves as an ecological buffer and supports the site's sustainable development goals. The entire project is certified Effinergie+ HQE and features a wooden structure, aligning with France's national ecological transition targets.
Photography © Atelier Aconcept
Photography © Atelier Aconcept
Photography © Atelier Aconcept
Photography © Atelier Aconcept
Photography © Atelier Aconcept
Photography © Atelier Aconcept
Photography © Atelier Aconcept
Photography © Atelier Aconcept
Photography © Atelier Aconcept
Photography © Atelier Aconcept
Photography © Atelier Aconcept
Photography © Atelier Aconcept
Photography © Atelier Aconcept
Photography © Atelier Aconcept
Photography © Atelier Aconcept
Photography © Atelier Aconcept







Need a renovation specialist?
Find verified professionals for any repair or construction job. Post your request and get offers from local experts.
You may also like
More articles:
Murano Grande Residence by Sire Design in Miami Beach, Florida
MUSHI Wedding Photography Space by Cun FF in Kunming, China
Music Party KTV by JUMGO CREATIVE: A Bold Entertainment Space for a New Generation
Essential Rattan Elements in the Bedroom
Pale-colored mirror above kitchen countertop
MyouKei-An House by kvalito in Ibaraki, Japan
MYP House by Estudio BaBo in Buenos Aires, Argentina
Mystical Dark Bedroom Designs That Captivate