7 glückliche Lösungen für eine schöne und funktionale Badezimmer
Klare Ideen, die wir im Projekt des Designers entdeckt haben
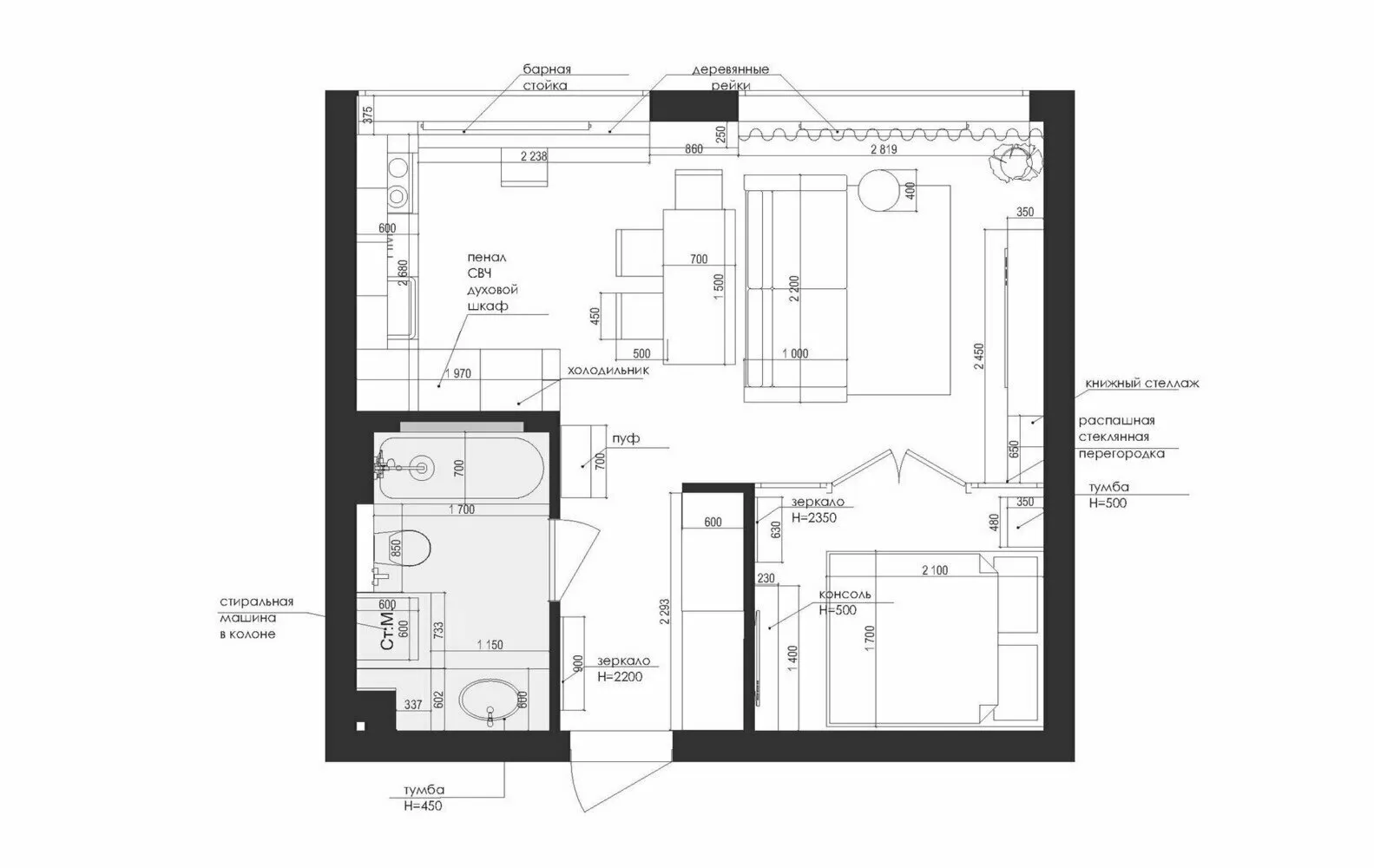
Dieses farbenfrohe und stilvolle Badezimmer wurde von Designerin Lili Kaisarova aus der Studio Sloyarch in einer 38 qm großen Einzimmerwohnung in Moskau gestaltet. Die Inspiration für das gesamte Interieur stammen aus natürlichen Motiven und der Atmosphäre des Meeres. Wir haben moderne und praktische Lösungen gesammelt, die Sie zum Umbau inspirieren werden.
Raumteile durch VerkleidungUnterschiedliche Wandverkleidungen im Bereich WC und Bad zonen visualisieren den Raum. Da die Kundin gerne Blau liebt, wurden die Wände über der Badewanne und über der Waschbeckenfläche mit Fliesen in tiefblauem Ton verkleidet. Ein lebhaftes und intensives Farbton bringt dem Raum Frische und erinnert an das blauästige Küstenland.
Nicht nur die Verkleidung und Farben wurden gemischt, sondern auch Texturen. Musterlose Fliesen, Holzflächen, gefräste Fronten und Messing-Bauteile – das Interieur sieht interessant, dynamisch aus und verleiht unterschiedliche taktile Erfahrungen.
Regale in der EckeÜber der Einrichtung und an der Wand im Bereich der Badewanne wurden tiefe Ecken geplant. Das ist eine gute Möglichkeit, den Flächenbereich optimal zu nutzen. Dort lassen sich Hygieneprodukte und Kosmetik bequem aufstellen.
GlasvorhangAls Alternative zu weichen Vorhängen wurde eine moderne Glasschranke gewählt. Sie sieht stilvoll aus, lässt Licht herein und macht das Badezimmer visuell leichter und luftiger. Die Glaswand trennt den Raum und schützt den Boden vor Wasser- und Seifenflecken.
Speicher bis zur DeckeDas Hauptlager im Badezimmer wurde in einer geräumigen Einrichtung bis zur Decke organisiert. Das ist ein geschlossener Holzschrank und offene Regale in der Farbe der Wände neben dem Waschbecken. Dank der vielen Lagerräume lässt sich alles Notwendige platzieren und dekorativ anordnen.
HygieneduscheDies ist eine funktionale und praktische Ergänzung zum Toilettensitz, die bei Reinigungen verwendet wird und das Qualität der persönlichen Hygiene erheblich verbessert. Die Hygienedusche ist unverzichtbarer Helfer in Haushalten mit Kindern, Tieren und älteren Menschen. Außerdem ergänzt sie stilvoll das Interieur.
UnterbauschränkeUm die Waschmaschine zu platzieren, wurde ein Sockel im Schrank installiert. Die verborgene Technik unter der Front hält den einheitlichen Stil des Raumes aufrecht, ohne auffällige Elemente zu erzeugen. Hinter der Maschine wurde eine Belüftung mit Zwangsventilation innerhalb des Schranks vorgesehen.

Need a renovation specialist?
Find verified professionals for any repair or construction job. Post your request and get offers from local experts.
You may also like

Gemütliche Zweiputz-Appartement 67 m², mit Planchart und Renovierung durch den Entwickler

Vorbereitung eines Landhauses auf den Winter: 9 gemütliche Tipps für den Innenraum

Hormone und Ernährung: Wie die Nahrung unser Gemüt und Wohlbefinden beeinflusst

Innenraum-Design für Mietwohnungen: Wie man ohne Sanierung ein gemütliches und stilvolles Zuhause schafft
Weitere Artikel:
Gemütliche Zweiputz-Appartement 67 m², mit Planchart und Renovierung durch den Entwickler
Vorbereitung eines Landhauses auf den Winter: 9 gemütliche Tipps für den Innenraum
Hormone und Ernährung: Wie die Nahrung unser Gemüt und Wohlbefinden beeinflusst
Innenraum-Design für Mietwohnungen: Wie man ohne Sanierung ein gemütliches und stilvolles Zuhause schafft
Das Leben in der Höhe: Wie Menschen sich an das Dasein in den höchsten Bergdörfern der Erde anpassen
Zylinder, Waben und Geheimnisse: Was verbirgt sich im Haus Melnikovs in moskauischen Gassen
Küche der Zukunft: Innovationen und Trends 2025 im Design und Equipment
Einfache Vorräte für den Winter: Wie man den Geschmack des Sommers in der Dose ohne unnötige Mühe behält?