Designer hat 6 funktionale Einfamilienhaus-Pläne für 45 m² vorgeschlagen
Zwei Kleiderschränke, isolierter Raum, geräumiger Wohn- und Essbereich sowie ein Büro auf dem Balkon. Die Designerin Natalia Mukaśyan hat 6 Varianten einer praktischen Einfamilienhaus-Plattierung für eine Doppeldose vorbereitet. Schauen Sie sich an!
Natalia Mukaśyan, Innenarchitektin, bemüht sich darum, Kompromisse zwischen wunderschönem, günstigem und qualitativ hochwertigem Design zu finden und die besten Lösungen in jeder Situation zu finden.
Dieses Einfamilienhaus mit einer Fläche von 45 Quadratmetern befindet sich im Westen der Hauptstadt in einem Clubkomplex des Wohnungsprojekts „Eigener“.
Die Besonderheit der Wohnung ist ein Balkon mit vollflächigem Verglasung bis zum Boden. Die Wohnung befindet sich in einer hohen Etage, daher bieten die Fenster erstaunliche Aussichten auf Moskau.

Anfangs betrachteten die Kunden die Wohnung als Investitionsprojekt – für Miete. Aber in Zukunft wollten sie selbst darin leben.
Daher lautete die Hauptaufgabe für Natalia: Erstens, eine universelle Plannung zu erstellen, die sowohl für einen Bewohner als auch für ein Paar geeignet ist!

Die Wohnung mit einer bequemen rechteckigen Form mit Balkon wurde ohne Wände vermietet, die Grenzen wurden mit einer Reihe von Ziegeln markiert.
Trotz der angegebenen freien Planung musste Natalia sich anstrengen, damit die vorgeschlagenen Umplanungsvarianten nicht gegen die Baunormen verstoßen und die endgültige Planung vom Hausingenieur genehmigt wurde.

Letztendlich hat die Designerin den Kunden sechs Umplanungsvarianten mit Möbelverteilung vorgeschlagen.
In allen hat Natalia auf Wunsch der Kunden eine Arbeitsplatzfläche auf dem Balkon eingerichtet, in der Badezimmer anstelle einer Badewanne eine Dusche geplant und anstelle von Schränken zwei Kleiderschränke – einen in der Eingangshalle und einen im Schlafzimmer.

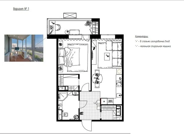
Plan 1
In der ersten Variante hat die Designerin die Badezimmer vereint und zwei Kleiderschränke – einen in der Eingangshalle und einen im Schlafzimmer – eingerichtet. So wird der Eingang in das Schlafzimmer vom Flur isoliert.
Der Kleiderschrank in der Eingangshalle, obwohl kompakt, würde Kleidung für zwei Personen aufnehmen. Was das Badezimmer betrifft, passte dort nur eine nicht-standardmäßig schmale Waschmaschine. Doch im Wohnzimmer stand ein praktischer großer Ecksofa.


Plan 2
Die zweite Planungsvariante ist interessant, weil im Schlafzimmer eine große Kleiderschrank mit Schiebetüren mit Spiegeln untergebracht wurde.
In der Badezimmer konnte man diesmal eine Vollgröße-Waschmaschine und eine breite Dusche unterbringen. Die Küche ist eckig mit Insel, gegenüber der Küche in einer Nische ein Regal – für Geschirr, Bücher oder Dekor. Als Nebenpunkt – der Eingang in das Schlafzimmer über das Wohnzimmer.


Plan 3
Die dritte Variante ist ungewöhnlich. Natalia hat die Kleiderschrank in der Eingangshalle vergrößert und dort auch die Waschmaschine untergebracht. Stattdessen wurden zwei Badezimmer eingerichtet – eines im Eingangsbereich und das zweite im Schlafzimmer. Der Eingang in die Badezimmer über den Kleiderschrank im Schlafzimmer. So ist das Badezimmer immer in der Nähe.
Der Eingang in das Schlafzimmer hat die Designerin an zwei Stellen mit Schiebetüren auf beiden Seiten des TV-Standes eingerichtet. Mit diesem Trick, indem man die Türen schließt, kann der Raum vereint werden. Gemäß Natalia verleiht eine kreisförmige Bewegung dem Plan mehr Interesse und gibt dem Raum optisch mehr Fläche.
Die Küche ist auch eckig mit einer Arbeitsflächen, die in eine Bar-Tresen übergeht. Der Kühlschrank und der hohe Schrank-Column wurden in einer Nische gegenüber der Küche platziert.


Plan 4
Die vierte Variante ist geeignet, wenn die Bewohner der Wohnung zwei oder mehr sind. Natalia hat die Zimmer getauscht, was es ermöglichte, einen runden Esstisch für 4+ Personen zu platzieren und eine eingebaute Vitrine für Geschirr zu schaffen, zusätzlich der Eingang auf den Balkon aus dem Wohnzimmer.
Die P-Form-Küche wurde groß mit einer langen Arbeitsfläche, aber ohne direkten Lichtzug. Im Schlafzimmer war kein Platz für einen Kleiderschrank, wie es die Kunden wollten, aber die Schränke erreichten die ganze Wand mit viel Speicherplatz. Der Eingang in das Schlafzimmer ist über das Wohnzimmer.
In der Badezimmer hat die Designerin eine separate geschlossene Waschbereich eingerichtet.



Verwenden Sie Holzfurnier für die Türen: 8 Gründe, warum Sie genau diese wählen sollten
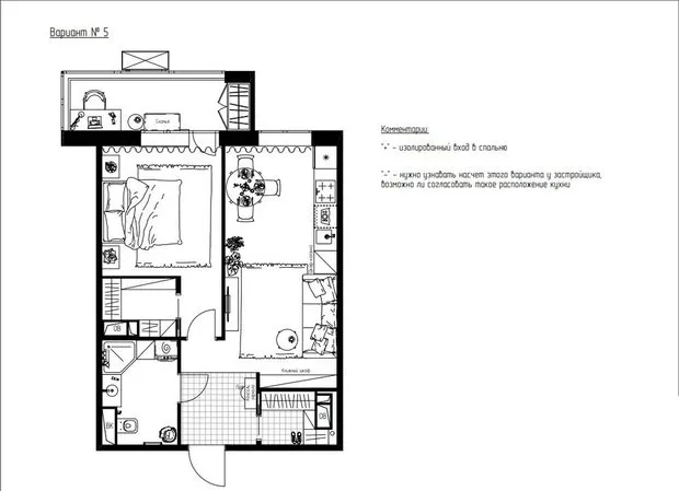
Plan 5
In der fünften Variante hat die Designerin die Küche und das Wohnzimmer getauscht. Aber diese Planung war schwierig im Zustimmungsprozess aufgrund der Umstellung der Küche.
Allerdings hätte diese Variante eine geräumige soziale Zone für Küche und Wohnzimmer organisiert.


Plan 6
In dieser Planung hat Natalia die Dusche und die Waschbecken-Turm getauscht und den engen Durchgang im Schlafzimmer dem größeren Raum auf der Küche zugewiesen. Dadurch wurde der Esstisch vergrößert.
Der Kleiderschrank in der Eingangshalle ist groß, aber im Schlafzimmer sind die Speichersysteme kleiner gewesen. In der Wohnzimmerzone wurden eine lange TV-Turm und ein Regal eingerichtet.


Die endgültige Variante – Plan 7
Letztendlich wurde die zweite Planungsvariante als endgültig ausgewählt. Aber einige Dinge wurden überarbeitet. Zum Beispiel wurde der Kleiderschrank am Eingang vergrößert und die Küche verkleinert.
Und es wurde auf die eingebaute Vitrine gegenüber der Küche verzichtet, wodurch der Kleiderschrank im Schlafzimmer vergrößert wurde.




Need a renovation specialist?
Find verified professionals for any repair or construction job. Post your request and get offers from local experts.
You may also like
Weitere Artikel:
Kreative Ideen, die Designer in ihren Interieurs verwirklicht haben
7 atembergende Wohnzimmern, in denen nichts geändert werden möchte
Wer stiehlt Strom zu Hause: 6 am meisten „fressende“ Geräte
Achten Sie auf: Fehlentscheidungen während der Küchenrenovierung, die unsere Helden bereuen
12 gemütliche Filme für lange winterliche Frühstücke
Stylische Papierweihnachtsbaum aus eigenen Händen? Einfach!
10 klasse Methoden, wie man in der Dusche Sechseckfliesen einsetzen kann
Designer warnt: 5 grobe Fehler beim Küchenrenovierung