布朗宁斯之家 by Pablo Lanza Architecture — 位于巴西伊图的度假屋
布朗宁斯之家由帕布洛·兰萨建筑事务所设计,是位于巴西圣保罗州伊图的一座周末别墅。这座房屋巧妙地融合了休闲、家庭生活与建筑表达。坐落在陡峭的地块上,住宅将运动、娱乐和私人区域组织得清晰而有逻辑。宽敞的露台成为建筑轴线,划分活跃与安静区域,并将自然和光线包围其中。
项目概览
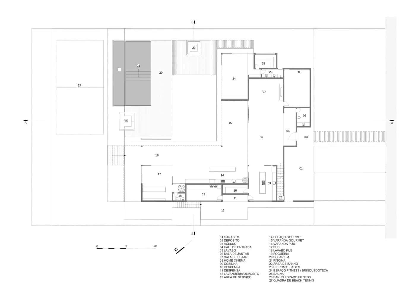
位于陡峭地块上的布朗宁斯之家旨在满足圣保罗一个家庭的两种需求:积极的休闲和放松聚会。项目规划宏大——包括健身房、网球场、游泳池、水疗区、影音室、美食厨房以及宾客区域,所有功能都整合在一个住宅综合体中。
该项目采用北向后方视角。为了平衡运动和社交需求,建筑设计将这些功能置于两端,并通过一条长露台连接起来,这条露台既是通道也是组织者。
设计概念与空间策略
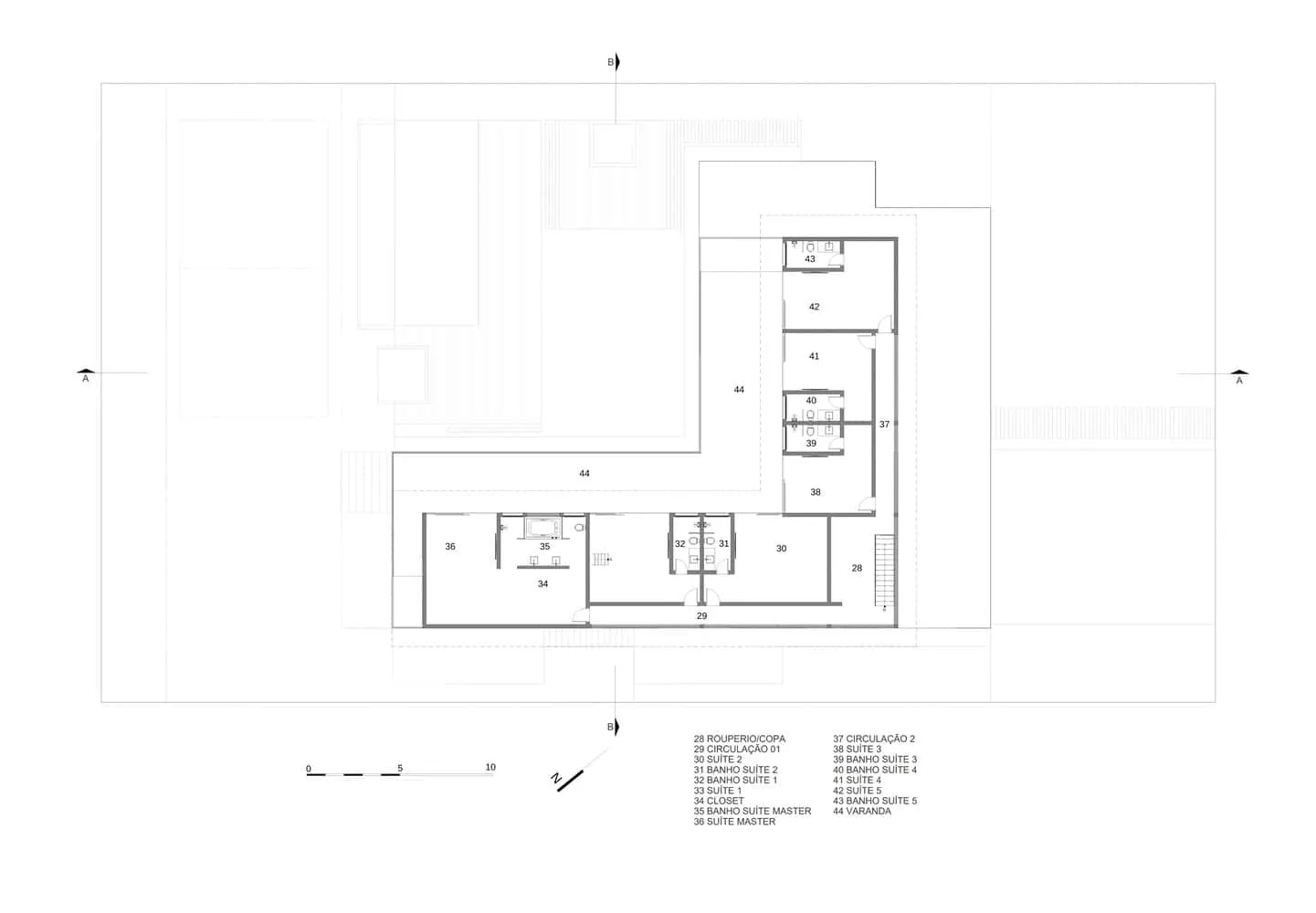
L型布局一楼采用L形平面布局。交叉点处为厨房和垂直楼梯,作为功能中心。两侧分别布置不同区域:一侧是运动区;另一侧则是社交和娱乐区域。
考虑到宽度限制以及对大景观的需求,上层翼部采用平面布局并通过线性楼梯连接。这种布置方式可以高效利用空间,同时保持视觉通透。
露台作为组织者连续的木质格栅露台成为建筑轴线。它划分、连接、营造阴影并为立面增添活力。从这个露台上,家庭可以欣赏景色和自然光,建筑也因此呈现出整体性和连续性。
材料与表达
现代但温暖的材质语言:
-
木纹砖砌体(深棕色): 为玻璃和木材增添纹理与对比。
-
木质面板: 包围立面并统一体量,提供通风和光线调节。
-
玻璃面板: 向景观开放社交区域,使内外空间融为一体。
-
钢筋混凝土结构: 作为主体支撑并确保突出部分。
-
门廊和木质元素: 在户外区域和过渡空间提供阴影与节奏感。
这些材料共同结合了坚固与优雅,平衡透明度与私密性。
内部空间与功能结构
-
运动翼: 包括完整的健身房、网球场、半块篮球场、游泳池、桑拿房和水疗区。
-
社交/娱乐翼: 美食厨房、壁炉区、户外休闲区、影音室、酒吧和地下室。
-
居住区块: 分为宾客区和私密区域,每个区域都具有相似的外观、可达性和舒适度。
-
通道与过渡: 中央楼梯和露台清晰优雅地连接各层和区域。
室内活跃与安静的区域和谐共存,景色和自然光渗透到所有空间。
景观、视野与场地整合
房屋顺应坡地,采用台阶式形式和交叠体量。通过玻璃窗和朝向强化了北面视野。绿色植被柔和边界。建筑补充地形,而非凌驾于其上。
布朗宁斯之家由帕布洛·兰萨建筑事务所设计,是住宅建筑如何明智且诗意地管理大型多样化功能的鲜明例证。通过其L型布局、富有表现力的露台、材料对比和对场地的精心安排,房屋提供了一种既充满活力又和谐的愉悦休闲体验。
摄影 © 安德烈·莫尔塔蒂
摄影 © 安德烈·莫尔塔蒂
摄影 © 安德烈·莫尔塔蒂
摄影 © 安德烈·莫尔塔蒂
摄影 © 安德烈·莫尔塔蒂
摄影 © 安德烈·莫尔塔蒂
摄影 © 安德烈·莫尔塔蒂
摄影 © 安德烈·莫尔塔蒂
摄影 © 安德烈·莫尔塔蒂
摄影 © 安德烈·莫尔塔蒂
摄影 © 安德烈·莫尔塔蒂
摄影 © 安德烈·莫尔塔蒂
摄影 © 安德烈·莫尔塔蒂
摄影 © 安德烈·莫尔塔蒂
摄影 © 安德烈·莫尔塔蒂
摄影 © 安德烈·莫尔塔蒂
摄影 © 安德烈·莫尔塔蒂
摄影 © 安德烈·莫尔塔蒂
摄影 © 安德烈·莫尔塔蒂
摄影 © 安德烈·莫尔塔蒂
摄影 © 安德烈·莫尔塔蒂
摄影 © 安德烈·莫尔塔蒂
摄影 © 安德烈·莫尔塔蒂







Need a renovation specialist?
Find verified professionals for any repair or construction job. Post your request and get offers from local experts.







