苏州Lycent Design工作室的艺术空间画廊——流畅的空间叙事

苏州(江苏)的Lycent Design工作室艺术空间画廊探索了建筑概念“边界”——人类活动与环境之间的诗意界限。由李晨设计,占地13993平方英尺的画廊将曾经混乱的空间转化为由光、曲线、质感和天然材料构成的流畅和谐的构图。通过重新定义空间边界并运用柔和的几何形状,画廊在幻象与现实、秩序与自由、动态与宁静之间建立对话。
项目概览
设计的目标是重新思考“边界”作为中介门槛的理念——一个建筑、光线和材料交汇的过渡区域。面对原始场地,建筑师意识到既有室内结构的无序性以及大量自然光的潜力。
该项目将空间重新组织为一个整体,引入了弯曲的半开放式墙体,在划分功能的同时保持其关联性。这种空间流畅性促进了参观者之间的互动,同时保留了不同活动的独特氛围。
设计理念:流畅边界
曲线作为空间分隔:柱子和墙体包裹在柔和的几何形状中,定义房间并保持连接。
边界作为对话:每个门槛在开放与私密、结构与情感之间取得平衡。
与光的融合:自然光成为纽带,通过隐藏缝隙、天窗和玻璃墙渗透进来。
梦幻氛围:空间唤起在现实与想象之间旅行的感觉。
结果是一个空间叙事,参观者在画廊中每一步都揭示纹理、比例和阴影之间的新关系。
光、影与材料
自然光是项目的核心元素:
全玻璃墙让充足的光线进入,由织物纹理和天然饰面柔和处理。
天窗点亮雕塑感楼梯,仿佛向上生长的树木或云朵。
格栅和隐藏开口过滤光线,形成随时间变化的节奏。
材料配色在温暖与朴素之间取得平衡:
棉麻和鞣制皮革提供柔软触感。
深色木材与浅色家具和淡色调表面形成对比。
石材、木纹和艺术涂料创造冷暖色调的触觉和谐。
这种对比增强了画廊的诗意和沉思氛围。
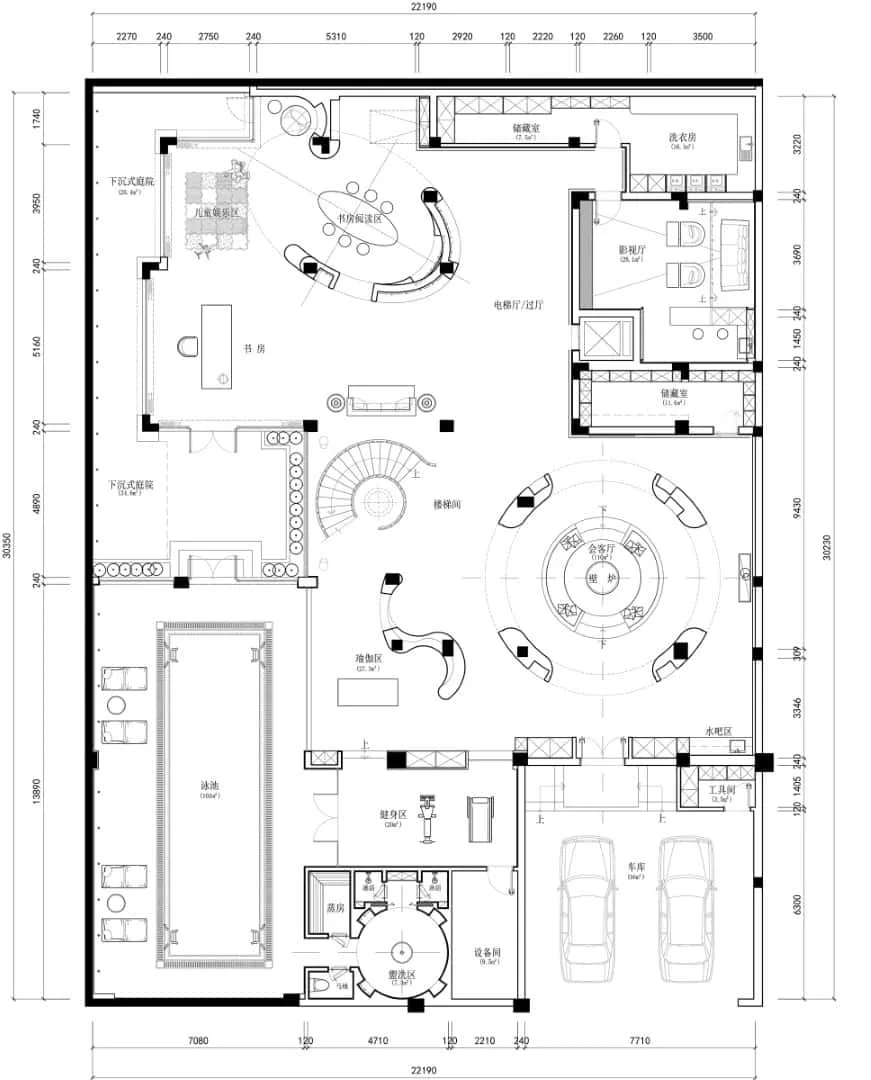
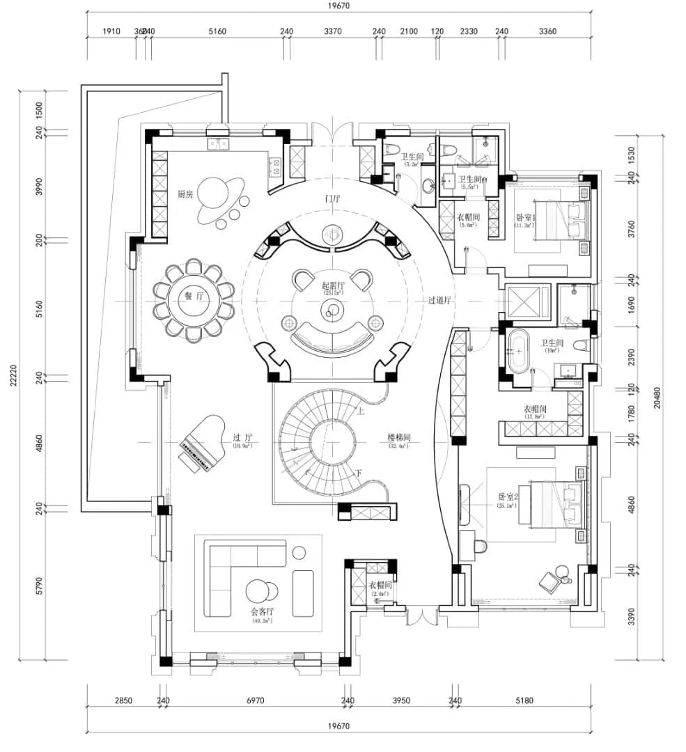
空间布局
一楼
弯曲墙体组织入口大厅、客厅和餐厅。
半开放平面促进独立性,同时保持视觉连通。
螺旋楼梯
作为中心雕塑元素,引导参观者以诗意的方式向上攀升。
光影互动,如同音乐节奏。
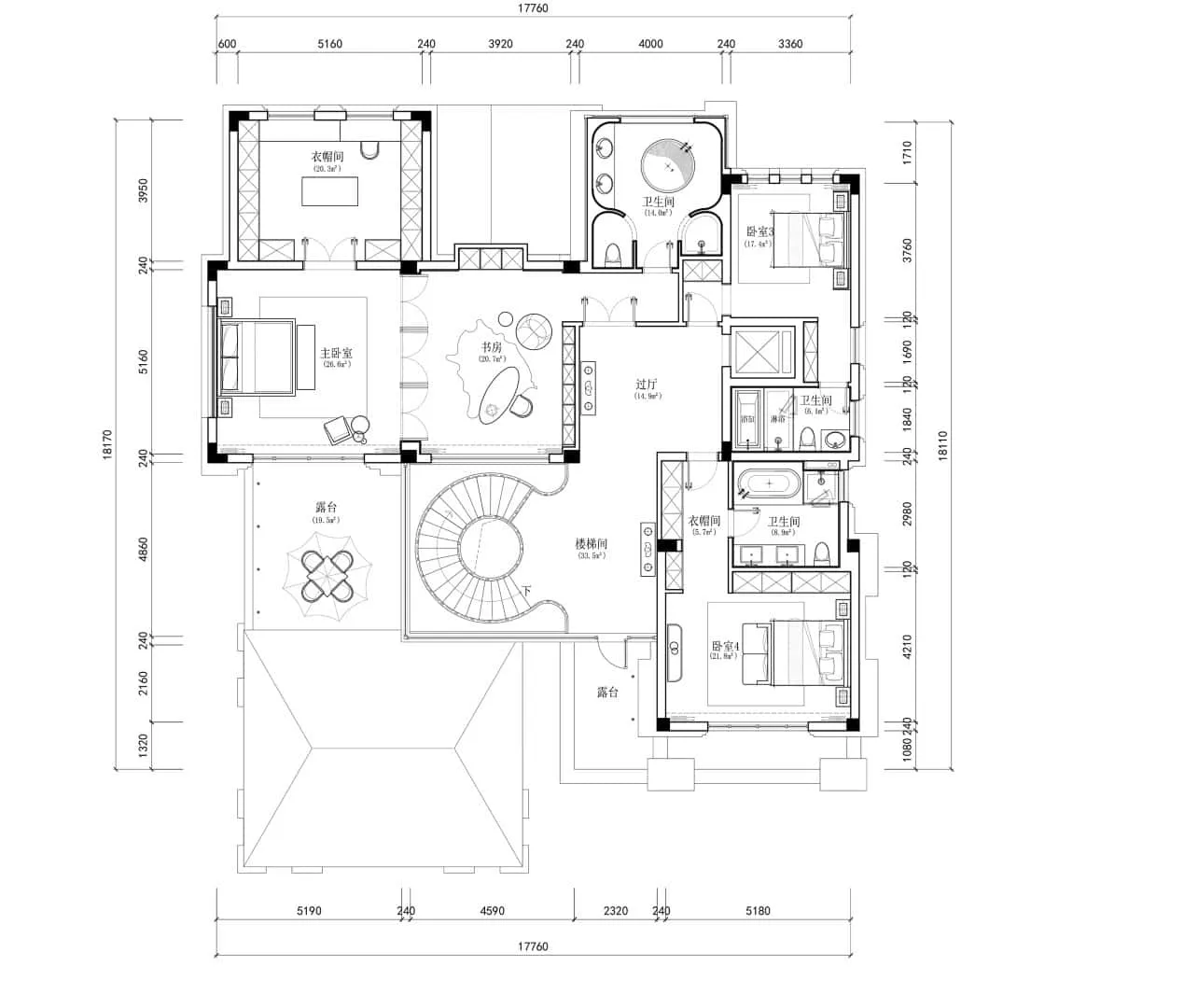
二楼
包含宽敞的卧室和办公室,由铰链门分隔。
对比色调体现动感与静谧、克制与自由。
地下室
700平方米的开放平面整合了休闲区、阅读区、游泳池和车库。
柱子和曲线打破人工隔断,强调流畅性。
嵌入式壁炉厅成为舒适的社交聚会点。
水作为设计元素
泳池与镜面水平对齐,对比直线几何和曲线。这种秩序与自由的双重性反映了画廊的核心理念:在严格性和想象力之间取得平衡。
氛围与体验
Art Space画廊体现了一种诗意和梦幻的旅程:
空间在开放与亲密之间摇摆。
参观者面对光影和材质的编排。
室内打破僵硬边界,鼓励情感投入。
通过“边界”哲学,李晨创造了一个引发好奇心、沉思与宁静的临时文化空间。
Art Space画廊不仅是展览空间,更是边界与门槛的建筑叙事。通过曲线、浮动光线和触觉材料,画廊重新定义了人与空间及自然的互动。其流畅几何、诗意氛围和自然元素融合使其成为苏州当代文化设计的标杆。
摄影师 © Established – Gao Yi
摄影师 © Established – Gao Yi
摄影师 © Established – Gao Yi
摄影师 © Established – Gao Yi
摄影师 © Established – Gao Yi
摄影师 © Established – Gao Yi
摄影师 © Established – Gao Yi
摄影师 © Established – Gao Yi
摄影师 © Established – Gao Yi
摄影师 © Established – Gao Yi
摄影师 © Established – Gao Yi
摄影师 © Established – Gao Yi
摄影师 © Established – Gao Yi
摄影师 © Established – Gao Yi
摄影师 © Established – Gao Yi
摄影师 © Established – Gao Yi
摄影师 © Established – Gao Yi
摄影师 © Established – Gao Yi
摄影师 © Established – Gao Yi
摄影师 © Established – Gao Yi
摄影师 © Established – Gao Yi
摄影师 © Established – Gao Yi
摄影师 © Established – Gao Yi平面图
摄影师 © Established – Gao Yi
摄影师 © Established – Gao Yi
摄影师 © Established – Gao YiNeed a renovation specialist?
Find verified professionals for any repair or construction job. Post your request and get offers from local experts.







