巧妙布局与实用内饰的房屋
这座房屋坐落在科罗拉多州落基山脉的美景之中。看看如何在“任性”的地块上,巧妙地规划空间并打造简洁的内饰。
这座房屋的主人是一位艺术家玛丽赛尔·布鲁姆。玛丽赛尔与孩子们居住在佛罗里达州,但每到冬天都会来到丹佛,尽情享受滑雪的乐趣。这种传统已经根深蒂固,以至于她们一家开始考虑拥有一座面向落基山脉的私人住宅。

这个想法一直停留在脑海里,直到玛丽赛尔在丹佛一家商店的收银台前看到了一本当地杂志,封面上刊登着建筑师雷内·德尔加迪的现代主义玻璃与金属房屋。
艺术家立刻找到了雷内的联系方式,并主动提出拜访。当玛丽赛尔亲眼见到封面上的房屋时,她立即向建筑师提议,请她为自己设计一座房屋。

对于雷内来说,挑战很快就来了。玛丽赛尔选择了一块岩石嶙峋、狭窄且海拔3500米的地块,而且四周都受风。建筑师首先与家人一起在地块上搭起帐篷,在那里度过了周末。

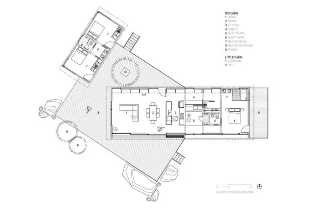
目前场地内有两座房屋:主屋和客房。这种设计是因为地块狭窄。玛丽赛尔不想建造二层,但她希望为自己、孩子们和客人留出私人空间。

两座房屋均建在钢结构支架上。通过这种方式,雷内将土方工程降至最低,同时保留了原始地貌。
请注意,支架是网格状的。这种结构常用于滑雪胜地,以便积雪快速滑落。因此,在雪天,女主人甚至无需拿起铁锹清理积雪。此外,钢制平台具有防滑功能。唯一的缺点是不能赤脚行走。
房屋外立面的设计灵感来自这一地区古老的山间小屋。
房屋之间的布局可能看起来有些奇怪。然而,正是这种设计使房屋免受风力侵袭。

外墙贴有深色木材,屋顶则采用镀锌钢板。房屋内部设有全景三面玻璃窗,将壮丽的景色引入室内,让自然成为室内的一部分。

房屋地板铺设了胡桃木板,厨房与客厅形成一体化空间。厨房采用吧台式设计。客厅还设有一个夹层,女主人将其用作艺术工作室或供客人使用的额外房间。
顺便说一句,厨房正好将社交区域与主人卧室分隔开来。

玛丽赛尔希望拥有一个户外露台,但雷内明白在大多数月份里这并不可行。因此建筑师设计了主卧室和浴室,看起来仿佛位于户外:从浴室可以欣赏到桑格雷-德克里斯托山的奢华景色。


平面布局
来源:Remodelista
Need a renovation specialist?
Find verified professionals for any repair or construction job. Post your request and get offers from local experts.







