设计对决:为有猫的夫妇打造的公寓
设计师为年轻夫妇在P-44T板式住宅中的一间19平方米房间提供了两种装饰方案。看看如何在19平方米的空间内布置多个区域,并选择最佳方案
在与Leroy Merlin合作中,我们请Marina Pod'yacheva和Maria Lazich为板式工作室的房间设计家具布置方案,使得阅读或看电视时舒适休息,以及睡觉都成为可能。你认为哪位设计师做得更好?
设计师任务:房间 19平方米 的工作室,面积 40平方米 业主 有猫的年轻夫妇,喜欢招待客人 愿望 客厅和卧室在一个房间
19平方米单间公寓布局,面积为40.3平方米,属于P-44T板式住宅系列
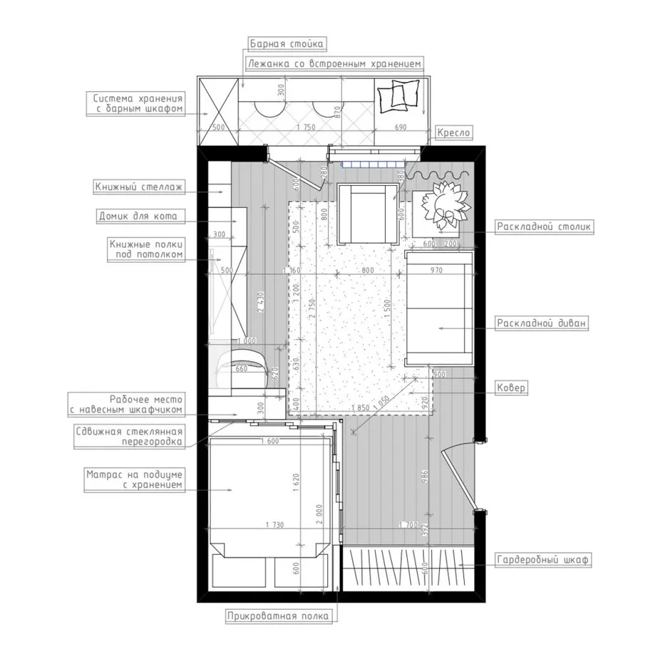
Marina Pod'yacheva的设计方案
Marina Pod'yacheva设计师建筑师,NewArchForm工作室负责人
关于布局
我们将角色呈现为热爱老好莱坞电影、也许甚至在电影行业工作的年轻创意夫妇。
没有床,而是一个带储物功能的讲台和床垫。如果需要,睡眠区可以通过折叠玻璃隔断轻松隔离。讲台旁边是一个配有书架的工作区。沙发床可以容纳坐在周围的客人,阳台上的吧台则适合举办真正的鸡尾酒派对。
房间设有不同的照明场景:强大的轨道顶灯用于整体照明,书架和架子的背光营造浪漫氛围或看电影时使用,床头墙灯用于睡前阅读,户外灯带则适合朋友聚会夜晚。通过在玻璃立方体窗帘后开启灯光可以产生特别的视觉效果。

关于风格解决方案
我们希望创造一个舒适且方便居住的空间。选择loft并非偶然。不仅时代的气息吸引我们,而且还能轻松改变内饰而不失去整体风格。你可以更换沙发、衣柜、挂不同窗帘或轨道上的聚光灯,重新粉刷墙壁——空间将适应你的心情。
为了那只可爱的猫咪,我们提供了一个通用架子——由多个部分组成的结构。如果猫咪爪子抓到皮质沙发上,‘老式’美国loft风格只会更加突出。看着这个室内设计,你会想在留声机上放一张黑胶唱片,调暗灯光,度过一个温馨舒适的夜晚。

所需材料:
装饰瓷砖,Leroy Merlin
灯具,Leroy Merlin
配套油漆,Leroy Merlin
实木板材,Leroy Merlin
地毯,Leroy Merlin
木材,Leroy Merlin
窗帘,Leroy Merlin
装饰枕,Leroy Merlin
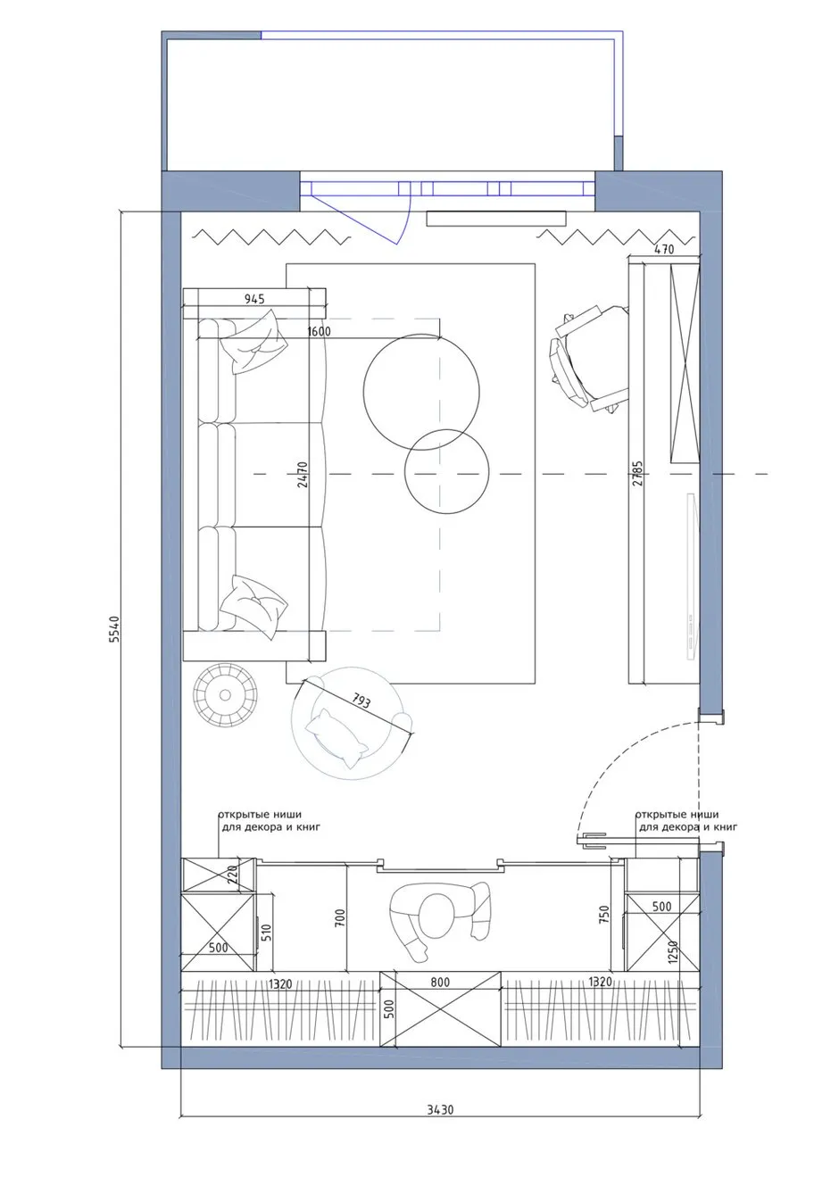
Maria Lazich的设计方案
Maria Lazich设计师莫斯科MaryArt设计工作室总经理
关于布局
房间有几个区域:客厅和卧室、工作区、储物系统。为了节省空间,选择了舒适的折叠沙发作为睡眠区:展开后成为标准尺寸160×200厘米的床。这种解决方案节省空间,同时允许结合两个区域而不占用有用面积。
一面墙被宽敞的衣柜/衣帽间占据。在单间公寓中,这是唯一存放物品的地方,因此必不可少。电视区域与工作区结合在一起,结果是宽敞而功能性强的空间。

关于风格解决方案
正如经常发生的情况,室内设计的想法来自于一个引人注目的细节。在这里是一张Leroy Merlin的船海报。围绕它,室内设计采用了航海主题元素。
基础色彩搭配是轻柔且不突兀的。一面墙涂成深水色,配以比它浅一个色调的条纹。重点墙面为这个空间增添了动感以及明亮的细节:椅子、沙发靠垫和窗帘。

所需材料:
地毯,Leroy Merlin
吊灯,Leroy Merlin
顶灯,Leroy Merlin
装饰镜,Leroy Merlin
衣柜门,Leroy Merlin
窗帘,Leroy Merlin
挂画,Leroy Merlin
装饰枕,Leroy Merlin
封面:Alexandra Ermilova设计项目
Need a renovation specialist?
Find verified professionals for any repair or construction job. Post your request and get offers from local experts.







