如何在板式房屋房间中最大化空间:4种选择
II-57系列的板式房屋,像任何板式建筑一样,都会带来挑战。不舒适的布局和无法拆除的墙体。你能做什么?我们请伊琳娜·斯捷潘茨为板式两居室公寓中的一间房间设计了几种家具布置方案。让我们来看看建筑师提出的解决方案。
伊琳娜·斯捷潘茨是一位建筑师,毕业于MАRHI。她是她自己的工作室Archstep的创始人,并获得了室内设计奖Design的奖项。设计挑战:一个18.1平方米的房间,位于两居室公寓中,II-57系列板式房屋,层高2.75米。
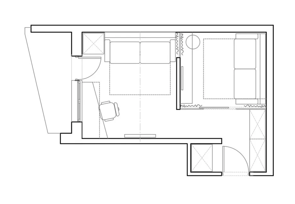
44平方米两居室公寓中18.1平方米房间的布局,II-57系列板式房屋。选项1:带工作区和衣柜的卧室在此布局中,应特别注意存储解决方案。在入口两侧安装了衣柜以节省可用空间。宽敞的衣柜与阳台门并排放置。衣柜入口正对房间间的门,并在隔断上设置假窗。这使得更多自然光进入这个小空间,白天无需人工照明。
床的位置应确保不阻挡通往阳台的通道。书桌位于窗边,散热器则用屏风遮挡。
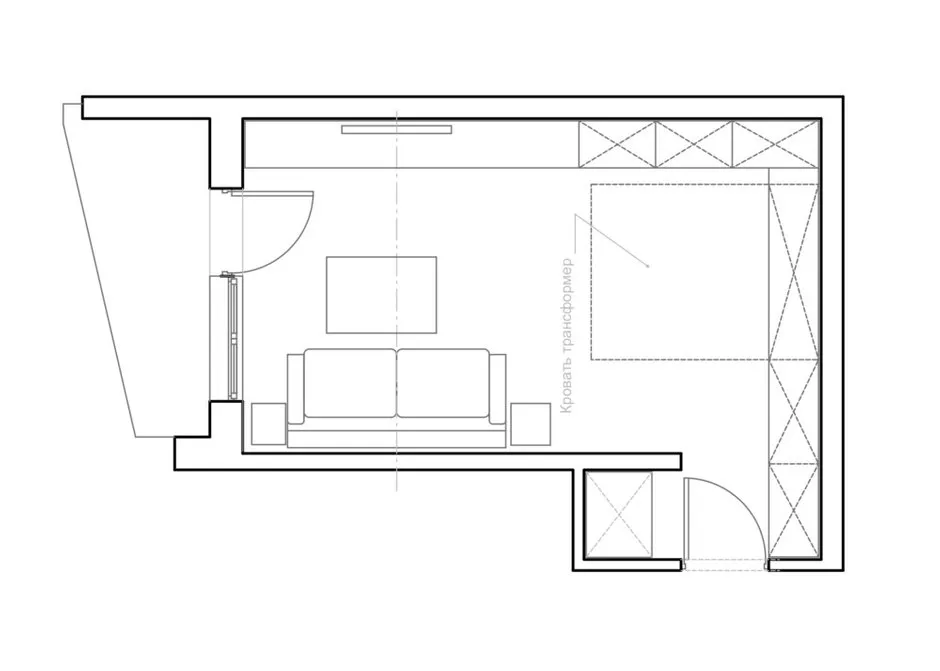
选项2:客厅和卧室区域18平方米足以容纳客厅和卧室区域。在我看来,客厅区域应靠近窗户,而睡眠区则靠近入口。一个很棒的想法是使用沙发床。当折叠时,几乎不占空间。
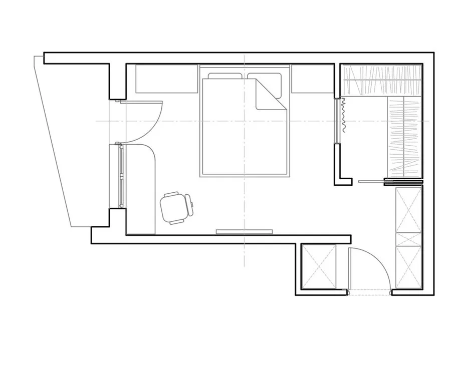
选项3:客厅、工作区和独立卧室最好将睡眠区域与客厅隔开。例如,通过使用隔断或窗帘。隔断使卧室更私密,而窗帘则有助于增加室内空气感。
客厅可以轻松容纳沙发、边柜和靠近墙壁的电视小工作区。可以在房间入口处布置储物系统。
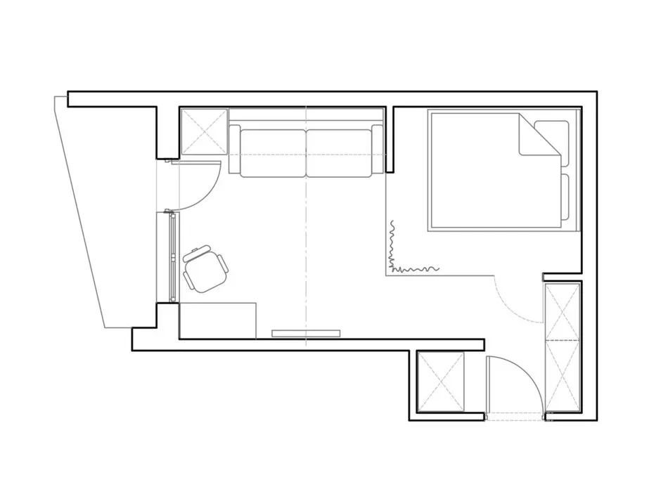
选项4:两个卧室如果房间被分为两部分,可以设置两个独立的卧室。我将第一个区域放在入口处,并用玻璃隔断和门来引入自然光。玻璃隔断可以隔离外界噪音,而窗帘可用于隐私保护。实墙部分覆盖卧室;在这里挂电视和架子很方便。第二个区域更靠近窗户,而不是窗台,可以安装书桌。
这种方案适合有青少年的家庭。每个家庭成员都将拥有自己的休息空间和睡眠区域。

封面:伊琳娜·斯捷潘茨的设计项目
Need a renovation specialist?
Find verified professionals for any repair or construction job. Post your request and get offers from local experts.







