如何在小户型工作室中最大化空间:2种布局选择
比较两种选项并猜测客户选择了哪一种
在成为具有挑战性的任务之前,这套公寓的业主要求在仅35平方米的空间内容纳所有功能区域,同时还要为创意和与朋友及客户的聚会留出空间。他提出了哪些解决方案?我们来告诉你。
Nikita Zub 是一位设计师和工作室“CUCCKINI”的创始人,专长于小户型公寓设计。
条件如下
公寓面积: 35 平方米(不含阳台)
房间数量: 1
浴室: 1(不计入布局,因为已经建成)
烤箱: 电热式
客户: 从事艺术行业的女性
需求: 设计一个小厨房,设置一个客厅区域,留出放置大床的空间,并摆放钢琴,同时还要找到一个展示古董收藏的地方。
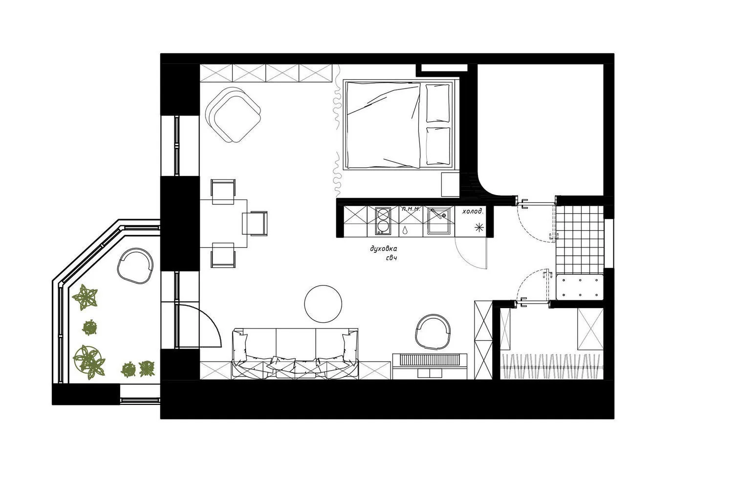
测量平面图方案一:厨房位置改为卧室
- 在走廊中设置了一个小型衣柜。
- 厨房被移至并与客厅区域合并,呈一条直线布置,留出洗碗机、烤箱和微波炉的空间。
- 选用双灶炉,以便为工作区留出更多空间。
- 餐桌靠窗墙摆放。
- 床放置在原本厨房的位置,利用壁龛设计。为了使这个区域更具私密性,安装了窗帘。
- 钢琴放在沙发旁边的墙上。

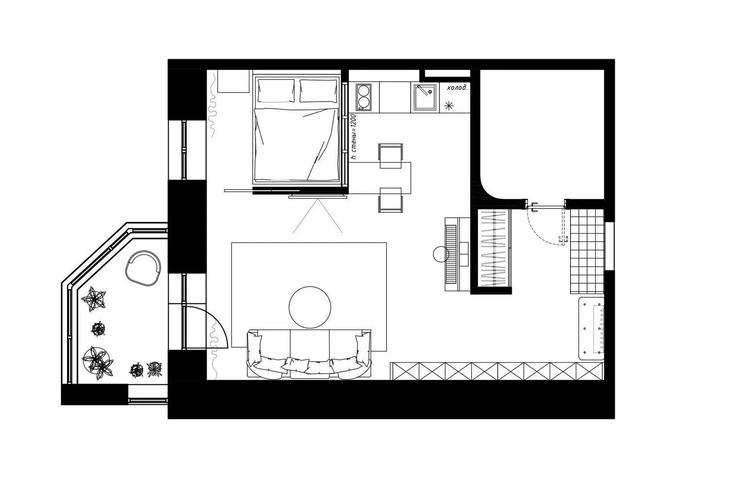
方案二:卧室设在壁龛中
- 厨房仍保留在开发商原计划的位置,进一步缩小尺寸,并用吧台代替餐桌。未安装洗碗机。
- 卧室区域移近窗户,用1.2米高的隔断与厨房分开(天花板高度为2.7米)。
- 床被安置在内置壁龛中,只能从一侧进入。
- 沙发和电视互换位置,电视放在与床相对的墙上。
- 在走廊设置一个柜子以弥补没有衣柜的问题。
- 钢琴放在分隔走廊和客厅的小隔断旁。

封面:由 Nikita Zub 设计的项目
Need a renovation specialist?
Find verified professionals for any repair or construction job. Post your request and get offers from local experts.







