如何在公寓中为每样东西找到空间:12个实例
在我们的精选中——小工作室公寓的真实例子,专业人员安排了舒适生活所需的一切。
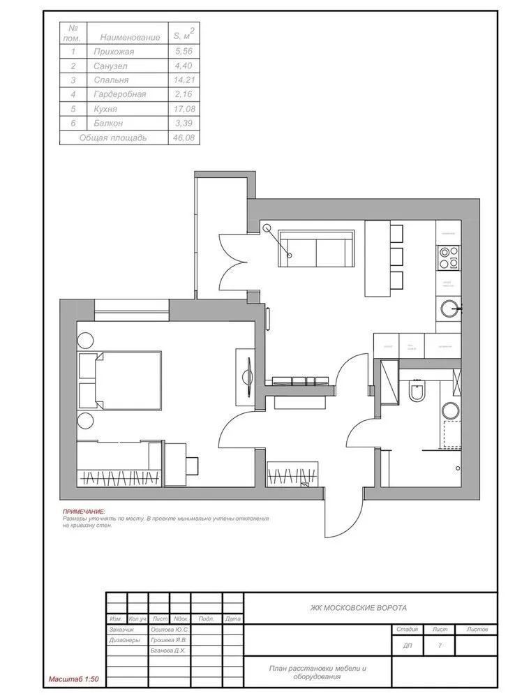
改造为两居室公寓
面积:47平方米
设计师亚娜·格罗舍娃将一栋新建住宅楼中的工作室改造成带厨房的两居室公寓。她只移动了门的开口,并将普通的阳台门换成转门。最小程度的重新配置使客厅既更温馨又更具功能性。
查看完整项目

设计:亚娜·格罗舍娃
布局

无需搬迁即可居住
面积:50平方米
这栋砖石新建筑的布局未作更改——承重墙不允许重大改动。在单个宽敞的客厅中,尽管空间足够,仍需安排几个功能区域。这里出现了客厅、卧室、小型办公室和宽敞的储物系统。
查看完整项目

设计:安娜·巴格罗娃
布局

利用不利原始布局
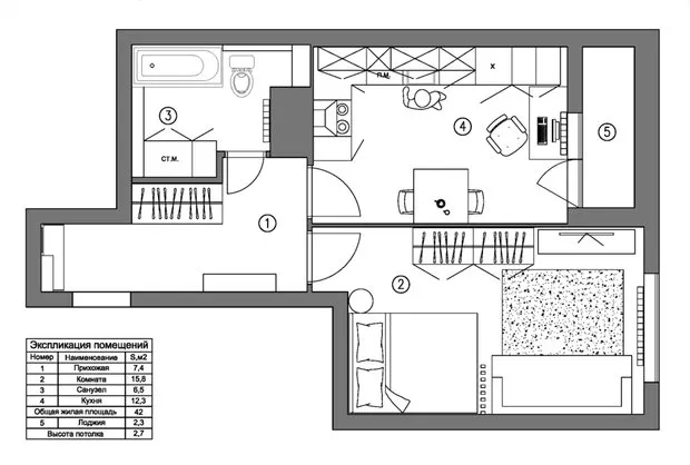
面积:56平方米
这栋砖石斯大林式建筑的工作室面积对一个完整的两居室公寓来说已经足够。挑战在于走廊、过道和储藏室占用了超过15平方米,只有两个窗户。SODA Homedecor的设计团队设法在不移动厨房的情况下创建了一个独立的卧室。
一个适中的厨房与客厅相连,使房间显得更宽敞、通风。卧室被安置在公寓最暗的部分。为了引入自然光,设计师在实墙上建造了一个雕刻精美的隔断。
查看完整项目

设计:SODA Homedecor
布局

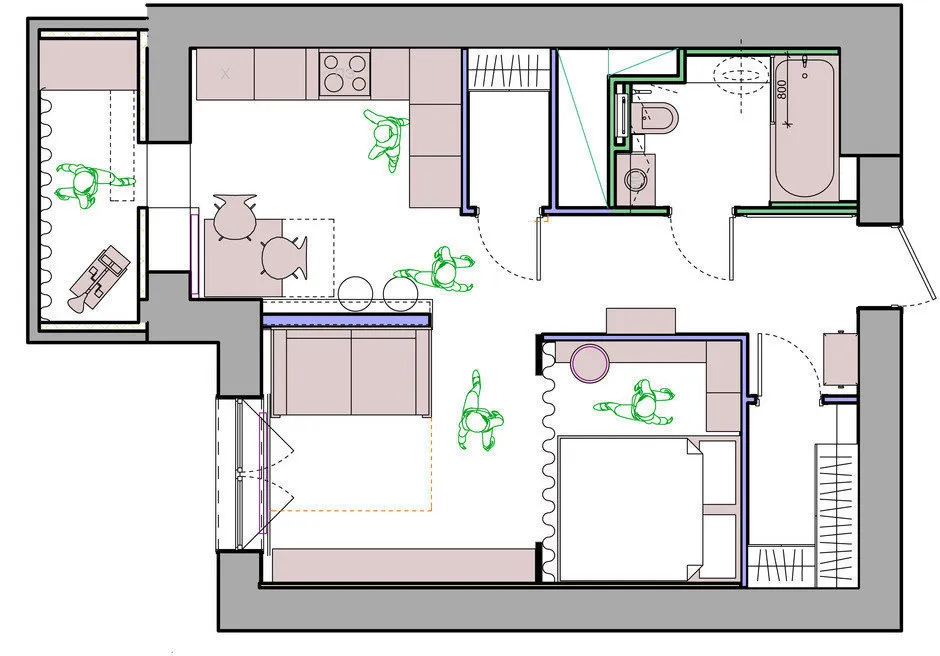
创造开放空间
面积:52平方米
客户希望在一个工作室公寓中设置卧室、步入式衣帽间、厨房、餐厅和客厅。多亏了独特的布局,所有必需的房间都得以安排,而不影响通道。这种开放空间允许从不同角度和路线移动。
查看完整项目

设计:TS Design
布局

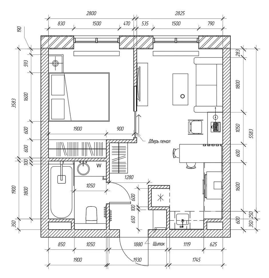
使用窗帘分隔
面积:37.5平方米
他们一开始就没有进行任何重新配置——最终,有一个独立的厨房和一个结合客厅和卧室的房间。卧室通过落地窗帘与客厅区域隔开,这是一个非常容易实施的解决方案。
查看完整项目

设计:扎娜·斯图登茨娃
布局

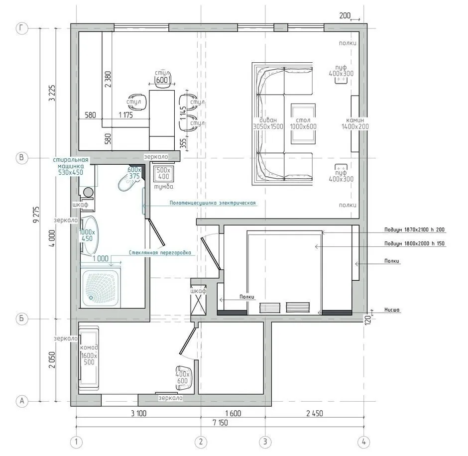
安装玻璃隔断
面积:44平方米
这套公寓的客厅和厨房由承重墙隔开,但两个空间都很宽敞。因此,22米的房间被分割,并在玻璃隔断后创建了一个独立的卧室。内部设置了一个凹槽——目前放着化妆台,但根据需要可以安装柜子或儿童床。
查看完整项目

设计:尼娜·舒伯特
布局:

或木质隔断
面积:43平方米
对于那些需要在预算内的人来说,这是一个极好的选择。当每个区域使用自己的配色方案时特别有效,正如娜塔莉亚·克拉索诺博罗德科在该项目中所做的那样。
查看完整项目

设计:娜塔莉亚·克拉索诺博罗德科
布局

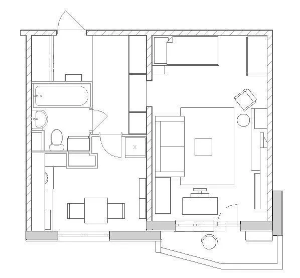
使用吧台隔断
面积:43平方米
“我对布局进行了一些调整,”阿丽娅·梅奇说,“一居室公寓变成了完整的两居室平房。吧台隔断了客厅-厨房空间,而不会让空间显得拥挤,卧室则成为了一个迷人的角落,面对窗户迎接日出并告别日落。”
阅读更多

设计:阿丽娅·梅奇
布局

选择可转换家具
面积:29.5平方米
这种赫鲁晓夫式公寓扩展空间的主要工具是可转换家具。沙发变成床,柜子变成工作区,电视面板变成另一个睡眠区域。这些转换如此简单,以至于即使是脆弱的女孩也能组装和拆卸所有东西,根据项目作者的说法。
查看完整项目

设计:叶卡捷琳娜·马特维耶娃
布局

无需卧室
面积:38平方米
在工作室中组织空间并节省空间的最简单方法是完全不需要完整的卧室区域。只需在房间内放置一张舒适的折叠沙发床,白天可用于睡觉、招待客人或阅读喜爱的书籍。
查看完整项目

设计:奥尔加·布拉夫科娃,安娜·多布罗科夫斯卡娅
布局

选择极简主义
面积:33平方米
如果空间非常小——如这套公寓一样——最好用极简装饰来布置内部。这样,至少在视觉上,所有房间都会显得更宽敞。
查看完整项目

设计:Eeds
布局

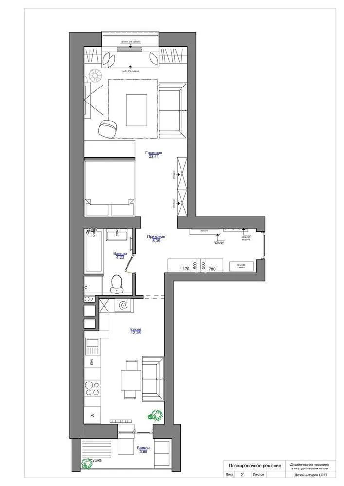
将阳台改造成另一个房间
面积:51平方米
客户的主要要求是内部应通用、现代,并设有舒适的睡眠和烹饪区域。
为了创造这样的空间,设计师叶卡捷琳娜·孔德拉季尤克建议在凹槽中安排卧室,并将加热的阳台用作客厅。
查看完整项目

设计:叶卡捷琳娜·孔德拉季尤克
布局

封面上的设计项目:叶卡捷琳娜·孔德拉季尤克
Need a renovation specialist?
Find verified professionals for any repair or construction job. Post your request and get offers from local experts.







