3个有趣的创意,重新设计板式房屋中的单间公寓
如何充分利用可用空间,合理划分房间区域,并创建一个功能齐全的生活空间——专业设计师为InMyRoom具体展示并解释
在单间公寓中打造舒适的居住空间是一项需要专业经验与创新思维的任务。特别是当一个家庭居住在公寓中时:您不仅需要规划父母和孩子的独立卧室,还需要设计客厅区域,并仔细考虑不杂乱的储物系统。针对我们的读者,设计师Ksenia Chupina提出了三种有趣的单间公寓翻新方案:适用于单身男性、年轻夫妇以及有孩子的家庭。
Ksenia Chupina是一位室内设计师,自2011年起从事该行业。她拥有艺术与设计教育背景,擅长马赛克和绘画创作,并梦想着走遍世界每一个公寓。
在I-507系列住宅中,单间公寓的面积根据型号不同从30至43平方米不等。早期型号的浴室是共用的,而在后期型号中则变为独立卫生间。今天我们来看看面积为33平方米的单间公寓的三种翻新方案,适用于不同类型的居民。需要注意的是,所有涉及拆除隔墙的操作都需要获得BTI的批准。


快速概览
I-507系列住宅建于1956年至1972年间,成为赫鲁晓夫时期住房的代表。后期的改良版本被称为“勃列日涅夫时期”建筑。这些住宅主要建于圣彼得堡(莫斯科区、库普奇诺等)。该系列有几种不同型号,主要区别在于厨房面积、布局、结构和楼层数。楼层数为5-7层;层高为250-270厘米;公寓有1、2、3、4室。房屋承重结构为外墙和室内纵向墙。外墙体厚度为40-50厘米,内承重墙为25厘米,房间分隔墙为7厘米。I-507住宅的优点是位于基础设施完善的区域,靠近地铁站;缺点包括公寓面积小、无电梯或垃圾通道、保温性能差。

方案一:单身男公寓
目标:打造最开放的单间空间;设置储物区域;设计宽敞的厨房与餐厅,以及带有浴缸的大浴室;为书架和带电视的沙发留出空间。
解决方案:在单间公寓中,仅保留浴室隔墙和两面半透明玻璃墙。其中一面将入口区域与卧室分开,另一面(宽1米)上安装电视。厨房台面连接窗户台面,并沿三面墙呈“P”型布置。其余空间设置一张可容纳6人的大餐桌、带电视的沙发和书架。餐厅与客厅区域可以灵活移动和重新布置。
扩大后的浴室包括浴缸、与洗手台和洗衣机共用的台面。宽敞的衣柜设在独立区域,不占用生活空间。
此布局的优势:清晰的功能分区,设计灵活;开放的单间空间,无多余元素;宽敞的浴室;独立实用的衣柜;大型厨房和餐厅。卧室既隔离又融入厨房-餐厅-客厅区域。缺点:所有储物区域都靠近入口;唯一独立的房间是浴室。


方案二:情侣公寓
目标:设计一个独立卧室、工作区,以及适合招待少量客人和放松的舒适客厅;规划储物空间;打造最开放宽敞的空间;设计足够大的厨房。
解决方案:移除房间隔墙,新卧室设在厨房对面。工作区也位于此房间。其余空间足以组织客厅区域。入口左侧的墙面成为储物区,配有宽敞衣柜。
厨房台面连接窗户台面,水槽位于窗边。扩大的厨房还包括储物柜用于存放日常用品。由于对角线隔墙,通道得以拓宽——厨房与客厅成为一体空间。如需,沙发组可移动以替代厨房的餐桌。
浴室共享台面结合洗衣机与洗手台,上方设置储物架用于方便存放浴具。此布局的优势:设计新颖,共享开放空间;舒适的独立卧室与客厅、大厨房、大量储物区、便利的浴室;餐厅-客厅区域可移动。缺点:无固定餐桌区域;一面墙完全被衣柜覆盖。


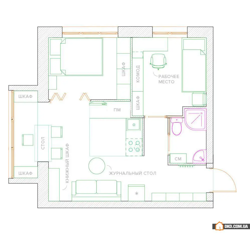
方案三:有孩子的家庭公寓
目标:设计两个独立房间(卧室和儿童房),并容纳共用餐厅-客厅区域、厨房和储物系统。
解决方案:在此方案中,阳台被保温并与房间相连。窗台成为餐桌的基础;厨房移至原走廊位置,由120厘米高的隔墙分隔,成为公寓的中心。在此区域放置沙发、电视、咖啡桌和书架。
厨房原位置现为儿童房,配有书桌和大衣柜。卧室区域位于这面墙后,包含带储物抽屉的床和衣柜。由于空间较小,卧室由一扇大门隔开,直达天花板,以便未来轻松扩展。走廊中也设有储物空间——衣柜;阳台亦有储物空间。浴室略缩小,但通过角落式卫浴设备仍保持舒适。
此布局的优势:空间利用率最大化,宽敞的共用休闲区(对有孩子的家庭尤为重要)、舒适的儿童房、独立卧室、大量储物空间,通过连接阳台扩大空间。
缺点:厨房气味可能影响其他房间;房间较小;翻新复杂且成本较高。


Need a renovation specialist?
Find verified professionals for any repair or construction job. Post your request and get offers from local experts.







