There can be your advertisement
300x150
拉格兰热红屋 / 签尔德·拉森 / 法国
								乡村文化的重构
La Grange Rouge 是对传统 法国乡村谷仓 (grange) 的现代诠释,位于 多尔多涅省。由建筑师 签尔德·拉森 设计,该房屋保留了石墙和木结构的典型特征,同时引入精致的极简主义内饰、大面积玻璃以及与景观的紧密联系。建筑使用的红土砖带有微红色调,被称为“rouge”(红),成为现代建筑身份的核心元素,灵感源自当地地域特色。
该建筑主要由 本地石材、木材和玻璃 构建,实现了新旧融合的和谐统一,在尊重环境的同时彰显现代气息。
照片 © 签尔德·拉森
照片 © 签尔德·拉森
照片 © 签尔德·拉森
照片 © 签尔德·拉森空间布局与设计
建筑平面围绕 中央体量 构建,两侧设有翼楼,包含居住区、卧室和公共服务区域。该体量朝向景观,部分区域保持内敛静谧。
双层大厅 与夹层共同构成空间核心。由此展开的动线设计通向私人区域、厨房和露台。室内外过渡以柔和的突出部分与封闭阳台框定,形成立面。
大部分原始乡村谷仓结构得以保留:石墙、承重木梁和屋顶。在此框架中插入新的简洁体量,玻璃连接与极简装饰使旧结构自我表达。
照片 © 签尔德·拉森
照片 © 签尔德·拉森
照片 © 签尔德·拉森
照片 © 签尔德·拉森
照片 © 签尔德·拉森
照片 © 签尔德·拉森材料与表达
拉格兰热红屋的材料色调源于当地:
- 本地石材 用于外墙、墙体和围护结构
 - 木梁与屋架 得到修复和扩展
 - 板岩屋顶 被重新使用并维修,采用相应材料进行更新
 - 大面积玻璃 连接露台与室内空间
 - 内部装修材料 包括抛光混凝土找平层、白色石膏层和橡木地板,与粗犷石材形成对比,突出纹理和光线
 
在坚硬稳定的石料之上,玻璃与木材带来轻盈感。这种对比强化了建筑作为遗迹和现代住宅的双重身份。
照片 © 签尔德·拉森
照片 © 签尔德·拉森
照片 © 签尔德·拉森
照片 © 签尔德·拉森光线、视野与氛围
光线通过大型竖向窗户和石墙细缝渗透。双层空间延伸至屋脊之上,下翼楼承接晨昏阳光。黄昏时分,红砖温暖色调柔和照亮建筑,在乡村环境中焕发活力。
露台被精心隐藏,以观景与保留视野——春日草地、林间丘陵和地平线。这些框定的景观使建筑成为风景的一部分,而非独立元素。
照片 © 签尔德·拉森
照片 © 签尔德·拉森
照片 © 签尔德·拉森
照片 © 签尔德·拉森
照片 © 签尔德·拉森
照片 © 签尔德·拉森
照片 © 签尔德·拉森
照片 © 签尔德·拉森
照片 © 签尔德·拉森
照片 © 签尔德·拉森
照片 © 签尔德·拉森
照片 © 签尔德·拉森
照片 © 签尔德·拉森
照片 © 签尔德·拉森
照片 © 签尔德·拉森
照片 © 签尔德·拉森乡村文化的和谐再生
“拉格兰热红屋 / 签尔德·拉森 / 法国”项目使建筑成为过去与现在之间的桥梁。该房屋并未摧毁旧谷仓,而是赋予其新生——适应现代居住需求并强化其记忆与物质存在。
结果是一栋既具表现力又谦逊的住宅,扎根于石材、面向景观,动作永恒而意图精准。
照片 © 签尔德·拉森
照片 © 签尔德·拉森
照片 © 签尔德·拉森
照片 © 签尔德·拉森
照片 © 签尔德·拉森
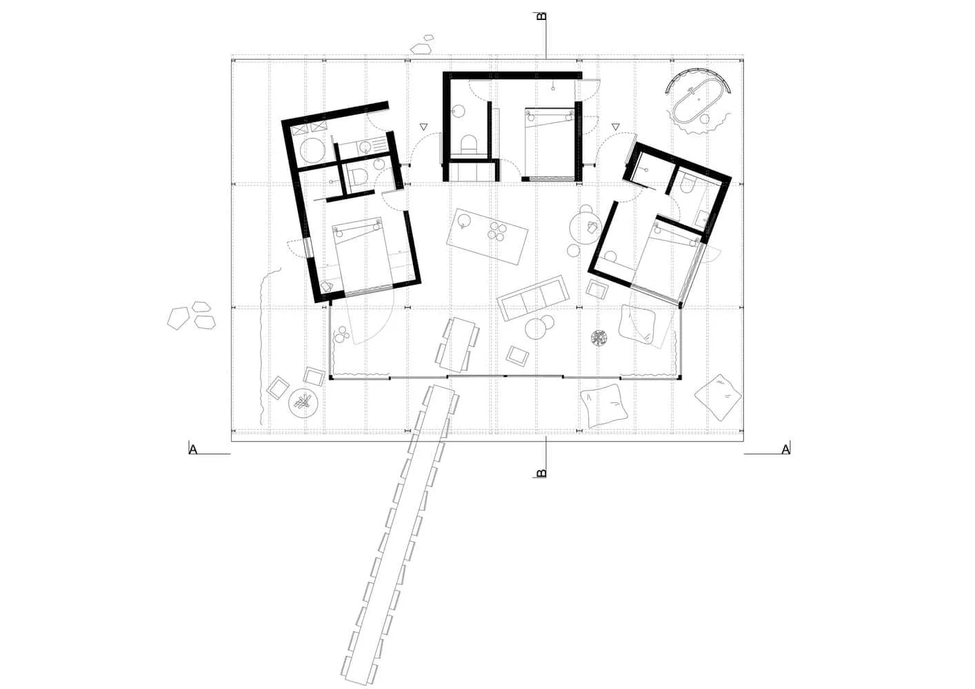
照片 © 签尔德·拉森图纸
图纸 © KKROM Services
图纸 © KKROM Services
图纸 © KKROM Services
图纸 © KKROM Services






