墨西哥克雷塔罗的戈麦斯之家 | 建筑师豪尔赫·加里巴伊 | 克雷塔罗,墨西哥
克雷塔罗市中心的宁静几何
戈麦斯之家由豪尔赫·加里巴伊建筑事务所设计,是适应墨西哥气候的精致极简现代风格典范。位于不断发展的城市环境克雷塔罗,这座住宅结合了私密性、光线与空间优雅。没有戏剧性的强调,戈麦斯之家在细节的微妙之处中蓬勃发展——其简洁线条、宁静体量和精心制作的细节创造出一种既克制又充满活力的建筑风格。
概念与体量策略
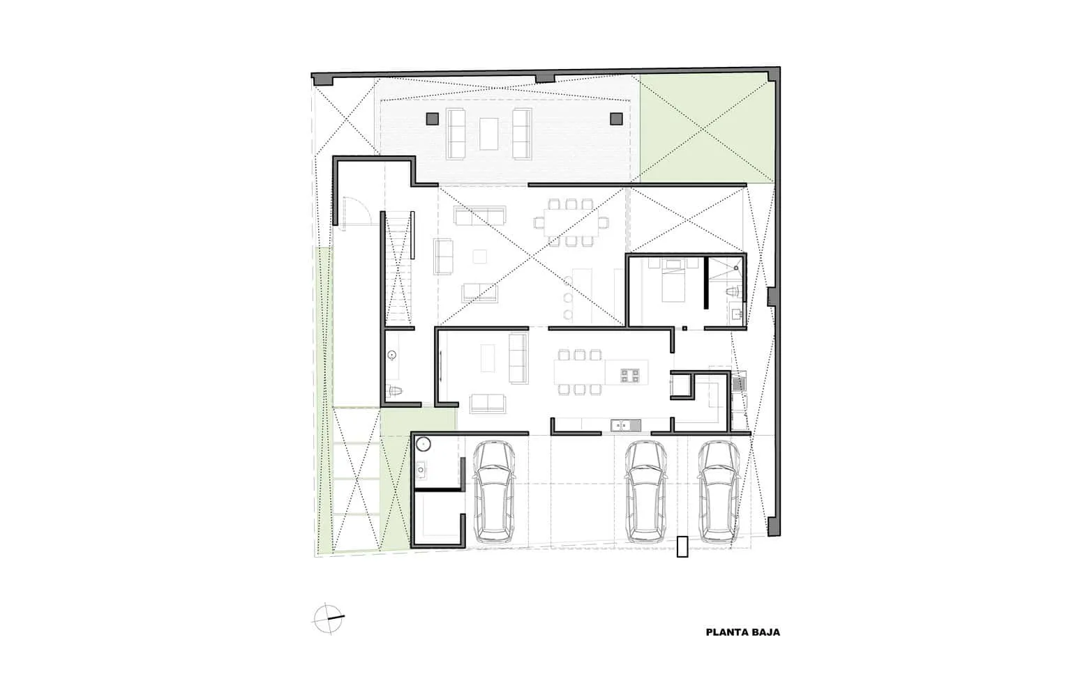
戈麦斯之家的核心理念是模块化和克制。设计由一系列交叉的矩形体量构成,每个体量在平面和高度上略有偏移以创造实体与空间的互动。几何形状严格但具有适应性:小突起、嵌入和连接体量构成复杂的空间结构。
中央轴线将关键功能区域从入口贯穿至居住区和私人空间。两层高的客厅是轴心,分配日光并实现楼层间的视觉连续性。建筑内的移动在实体与空间、高度变化和几何关系的渐进转换中进行,定义了建筑特征。
位置、朝向与气候防护
克雷塔罗地块的方位限制和相邻建筑成为激励因素而非障碍。面向公共区域的立面更封闭且内省,而内部立面则开放,包围花园庭院并引入自然光。露台和突出部分分层布置,以在炎热月份遮挡直射阳光。窗户、屏风和庭院的位置设计实现最大化的交叉通风与内部空气流通。
将外部露台置于建筑组合内,邀请自然进入室内,同时保持远离城市环境的独处感。
材料、光线与空间氛围
色彩搭配严格但丰富:预制混凝土、温暖的木质表面、玻璃和钢材构成主要元素。每种材料都被恰当地使用,以强调极简主义的建筑逻辑,并增添触觉温暖。
混凝土墙体承载结构并提供热质量。木质天花板、格栅和家具细节增添柔和与丰富感。大面积玻璃开口和滑动面板划分内外边界,而精心布置的屏风过滤光线并确保隐私。
光线被构建为一场舞蹈。清晨,东窗引入柔和光线;中午时分,突出部分和嵌入处调节反光;傍晚,内部照明营造深度与温暖。建筑通过阴影、过渡和光线的微妙移动来表达。
内部体验与流动
进入戈麦斯之家,人们从封闭的到达区域过渡到逐渐扩展的空间。客厅与餐厅拥有两层空间,视觉上连接上方的人行道和露台。这是空间中心,承载水平与垂直的流动。
卧室和私人区域位于平面较安静的一端,通过柔和照明的走廊或阳台通道进入。内部庭院、绿色空间和变化的体量保持私密感,同时使体验充满活力。
家具与装修遵循建筑纪律:极简几何、自然色调和触感表面确保室内设计符合结构基础。
被动策略与可持续发展
戈麦斯之家通过建筑智慧而非显性系统实现生态效率:
-
深悬挑屋顶和嵌入式窗户限制直射阳光吸收。
-
混凝土的热质量帮助稳定室内温度波动。
-
自然通风通过交叉平面布局和可开启立面增强。
-
使用本地材料减少隐含能量并使建筑扎根于地区文化。
-
社交区域靠近花园庭院的位置优化照明,同时将私人空间置于阴影中。
这些策略被整合进设计逻辑中——可持续性作为结构,而非事后考虑。
现代墨西哥住宅的静谧力量
戈麦斯之家证明了建筑不必大声喧哗也能强大。通过几何克制、材料清晰和生态敏感性,豪尔赫·加里巴伊建筑事务所创造了一座既亲密又具建筑感的住宅。
通过其精确的体量、细腻的光线控制和内外对话,戈麦斯之家是现代墨西哥住宅建筑的见证,重视宁静、清晰与环境。
摄影师 © César Belio
摄影师 © César Belio
摄影师 © César Belio
摄影师 © César Belio
摄影师 © César Belio
摄影师 © César Belio
摄影师 © César Belio
摄影师 © César Belio
摄影师 © César Belio
摄影师 © César Belio
摄影师 © César Belio
摄影师 © César Belio
摄影师 © César Belio
© 豪尔赫·加里巴伊建筑事务所
© 豪尔赫·加里巴伊建筑事务所
© 豪尔赫·加里巴伊建筑事务所Need a renovation specialist?
Find verified professionals for any repair or construction job. Post your request and get offers from local experts.







