1. LogoREMONTNIK
  2. UA
  • Головна
  • Реєстрація
  • Послуги
  • Статті
  • Фото інтер’єру
  • Вантажоперевезення
  • Правила

There can be your advertisement

300x150

Доми, котеджі

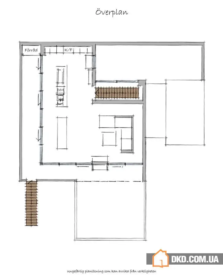
Современный пляжний дім із мінімалістичним інтер'єром, Швеція + плани

Ця стаття також доступна на наступних мовах:🇺🇸🇷🇺🇫🇷🇩🇪🇪🇸🇵🇱🇨🇳
Современный пляжний дім із мінімалістичним інтер'єром, Швеція + плани - Gallery image 0Современный пляжний дім із мінімалістичним інтер'єром, Швеція + плани - Gallery image 1Современный пляжний дім із мінімалістичним інтер'єром, Швеція + плани - Gallery image 2Современный пляжний дім із мінімалістичним інтер'єром, Швеція + плани - Gallery image 3Современный пляжний дім із мінімалістичним інтер'єром, Швеція + плани - Gallery image 4Современный пляжний дім із мінімалістичним інтер'єром, Швеція + плани - Gallery image 5Современный пляжний дім із мінімалістичним інтер'єром, Швеція + плани - Gallery image 6Современный пляжний дім із мінімалістичним інтер'єром, Швеція + плани - Gallery image 7Современный пляжний дім із мінімалістичним інтер'єром, Швеція + плани - Gallery image 8

More Galleries

  • Дизайн квартири в Польщі від HOLA Design
  • Кухня-студія
  • Гільдія та кухня від дизайн-студії Изюмін
  • Гостьова від студії iDesign, м. Київ
  • Чорно-білий дім ᴷᴬ
  • Вдохновляючі гостьові з чудовим декором стін
  • Дуже сучасні та справжні затишні спальні, які ви полюбите
  • Дизайни елітних шаф-купе
LogoRepairman

Remontnik.pro is your trusted platform for finding skilled professionals for all your repair and construction needs.

support@remontnik.pro
24/7 Live Support
Made with❤️in Kharkiv, Ukraine
(с) 2015-2025

Розділи

  • Платний акаунт
  • Статті
  • Фото інтер’єру
  • Вантажоперевезення
  • Приватні спеціалісти
  • Дизайни

Ресурси

  • Документація
  • Довідник API
  • Сторінка статусу
  • Аудити безпеки
  • Питання та відповіді

Компанія

  • Про нас
  • Кар’єра
  • Преса
  • Умови використання
  • Умови використання
  • Політика конфіденційності