There can be your advertisement
300x150
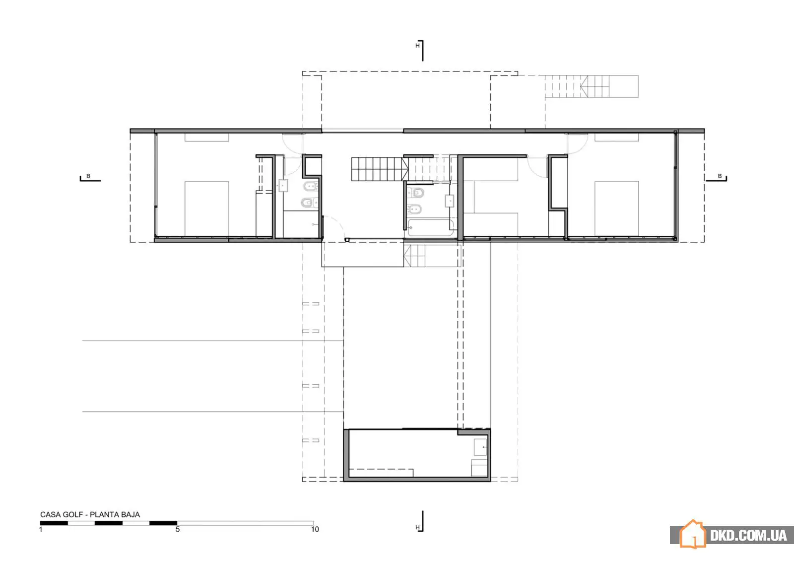
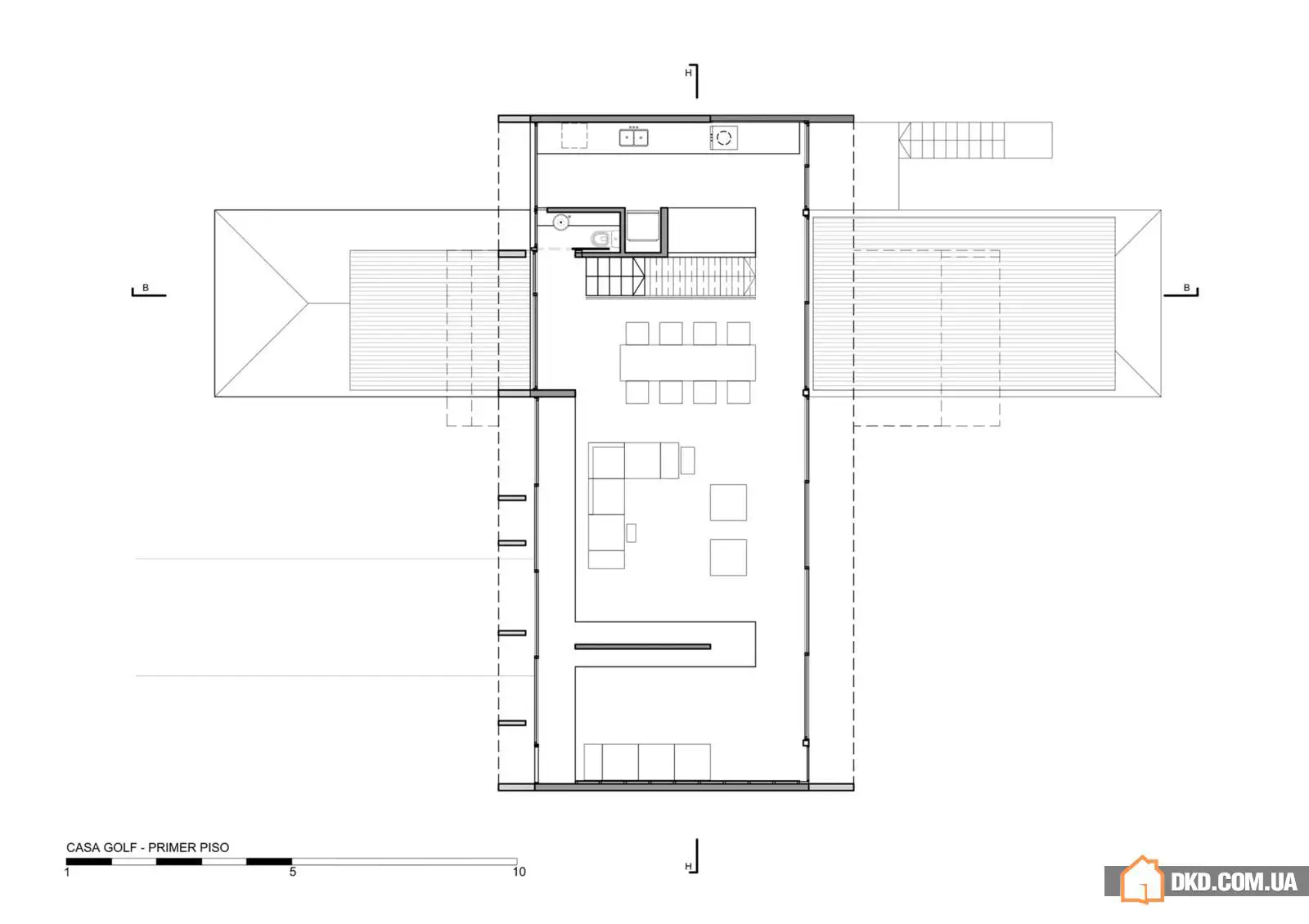
Дім біля поля для гольфу в Аргентині
© Da

























































More Galleries
Світла квартира в зеленому прикордонні Стокгольма (67 кв. м)
Кухня, залита світлом
Сучасна вілла в Каліфорнії
Красива і зручна квартира в Іспанії
Інтер’єр квартири в Москві — свіжий погляд на класику
Квартири з терасою в Нью-Йорку
Сучасний будинок для родини в Альпах
Дизайн ванної кімнати від Romanova Design