Крутй лофт в два рівні у В'єтнамі24 photos
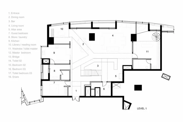
Дивно, що цей дуже стильний сучасний лофт знаходиться у В'єтнамі, а не де-небудь у США чи передовому європейському місті. Дизайн виконаний у найкращих сучасних тенденціях, хоча й не відсутній самостійності та колориту. Гра світлом і тінями тут має свій особливий зміст: освітлювальних приладів тут багато і на будь-який смак. А різнобарвні кольори то тут, то там з’являючись на очі, надають святковий колорит і легкий наліт фестивалю, драйву, епатажу. Відмінною відмінністю є ванна кімната з міським видом. Шикарно, весело, дорого!
























Need a renovation specialist?
Find verified professionals for any repair or construction job. Post your request and get offers from local experts.


