Неймовітьна квартира з горочкою в Харкові25 photos
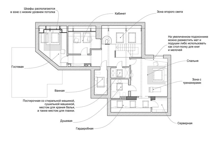
Власники цієї неймовітної двохрівневої квартири в Харкові попросили дизайн-студію Ki Design створити для них світлий сучасний житловий простір, який має розслабляти та заспокоювати, адже зайвих справ поза дому вже достатньо. Також вони дуже хотіли, щоб у інтер'єрі було щось особливе та цікаве, що заставляло б гостей дивитися здивовано. Рішення прийшло з дитинства — було обладнано справжню горочку, яка тепер допомагає швидко пересуватися між другим і першим поверхом! Погодьтеся, дуже сміливо, але наскільки це чудово!

























Need a renovation specialist?
Find verified professionals for any repair or construction job. Post your request and get offers from local experts.



