Casa Calma от Ravel Architecture: Современный санаторий, основанный на традициях - Идеи для дома - REMONTNIK.PRO

Casa Calma от Ravel Architecture: Современный санаторий, основанный на традициях

Поделиться:
Эта статья также доступна на следующих языках:🇺🇸🇺🇦🇫🇷🇩🇪🇪🇸🇵🇱🇨🇳🇮🇳🇯🇵
Casa Calma от Ravel Architecture: Современный санаторий, основанный на традициях

Расположенный на наклонной местности в Остине, штат Техас, дом Casa Calma от Ravel Architecture воплощает баланс между смелым современным дизайном и региональной чувствительностью. Завершенный в 2025 году, этот дом площадью 4750 квадратных футов глубоко черпает вдохновение из мексиканской народной архитектуры, при этом плавно адаптируясь к требованиям климата и образа жизни Техаса.

Дом, определяемый теплом, камнем и светом

Идентичность Casa Calma формируется локально добываемыми известняковыми стенами, выражающими как прочность, так и ощущение тактильности. Эти толстые, устойчивые поверхности обеспечивают термический комфорт и конфиденциальность, а естественные древесные элементы, включая ритмичные выставленные балки, добавляют тепло и конструктивную ясность. Использование штукатурки, стекла и дерева дополнительно развивает архитектурную палитру в направлении скромности, богатства и времени.

В центре дома находится центральное общественное пространство, под высокими деревянными балками — светлый зона для общения и активности. Конструкция исходит из этого ядра в виде звездообразной планировки, где каждая крыло плавно переходит в внешние дворы и жилые зоны.

Звездообразная планировка и целенаправленное зонирование

Звездообразная конфигурация не просто скульптурна — она функциональна. Она естественным образом делит дом на общественные и частные зоны, без коридоров, поощряя интуитивное перемещение и максимизируя полезную площадь.

  • Гостиная и кухня напрямую выходят на террасу, вырезанную в склоне.

  • Внешние зоны становятся естественными продолжениями внутренних комнат, позволяя собираться как большими, так и маленькими группами.

  • Частные убежища, включая спокойную главную спальню и затененные ниши, приглашают к восстановлению и одиночеству.

Каждый уголок Casa Calma кажется продуманным — обрамленным видами, осяянный светом и основанным на честности материалов.

Спокойное диалог между архитектурой и ландшафтом

Разработанный совместно с Shademaker Studio, ландшафтный дизайн усиливает спокойствие дома. Террасы, местные растения и затененные зоны отвечают естественной топографии и климату, а расширенные стеклянные стены смягчают вес камня, обеспечивая постоянный диалог между внутренним и внешним пространством.

«Casa Calma — это дом контрастов: прочный, но открытый, традиционный, но современный, скульптурный, но мягкий», — говорит Ravel Architecture.

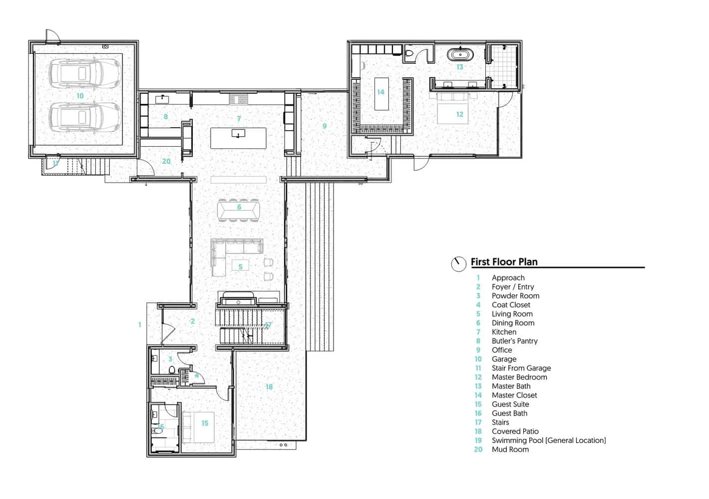
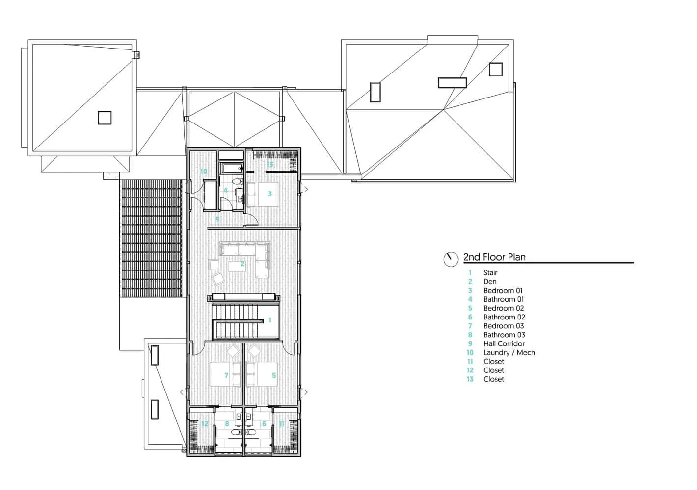
Современный вечерний вид на Casa Solis с подсвеченными интерьерами и стеклянным фасадом.Фото © Chase DanielСолнечный вид на задний двор Casa Solis с бассейном, террасой и деревянными креслами.Фото © Chase DanielДеревянный потолок и каменная стена, создающие тени на веранде Casa Solis.Фото © Chase DanielБоковой вид на Casa Solis с текстурированной каменной стеной и большими стеклянными панелями.Фото © Chase DanielПолный фасад Casa Solis днем с чистыми современными линиями.Фото © Chase DanielЭлегантная ванная комната Casa Solis с раковиной и подсвеченным зеркалом.Фото © Chase DanielВнутренний вид Casa Solis с каменной аркой, ведущей к кухне.Фото © Chase DanielТеплая кухня Casa Solis с деревянными балками и мраморным островом.Фото © Chase DanielЭлегантная лестница Casa Solis с каменной стеной и цветущей бугенвилией.Фото © Chase DanielСовременная главная ванная комната Casa Solis с двойной раковиной и свободно стоящей ванной.Фото © Chase DanielСпокойная спальня Casa Solis с окнами на всю стену и мягкими занавесками.Фото © Chase DanielЦентральная кухня Casa Solis с естественным светом и окружающими окнами.Фото © Chase DanielОткрытая зона обеденного стола с четким видом на кухню Casa Solis.Фото © Chase DanielМинималистичная встроенная полка Casa Solis, украшенная керамикой и книгами.Фото © Chase DanielГостиная Casa Solis с каменной стеной, встроенными полками и современным камино.Фото © Chase DanielПолный вид на гостиную Casa Solis с большим камином и деревянным потолком.Фото © Chase DanielВнешний вид через скользящие стеклянные двери в зону обеденного стола и гостиной Casa Solis.Фото © Chase DanielУличная зона сидения Casa Solis с перголой и вертикальными сланцевыми ступенями.Фото © Chase DanielДвор Casa Solis с каменной стеной и выделяющимися тенями перголы.Фото © Chase DanielВид на сад Casa Solis, показывающий детали подъема и текстурированные каменные стены.Фото © Chase DanielФасад Casa Solis, обращенный к улице с чистыми линиями и естественными текстурами.Фото © Chase DanielУгловой вид на улицу Casa Solis, подчеркивающий его современную геометрическую форму.Фото © Chase DanielАрхитектурный план первого этажа Casa Solis, включающий гостиную, кухню и главную спальню.План первого этажа Casa SolisАрхитектурный план второго этажа Casa Solis, включающий спальни, ванные комнаты и гостиную.План второго этажа Casa Solis

Casa Calma от Ravel Architecture — это больше, чем просто дом. Это современное убежище, где архитектурная дисциплина встречается с эмоциональным откликом. Основанный на регионных материалах и вечных пространственных стратегиях, он предлагает свежую, изысканную точку зрения на то, как чувствовать себя дома в Центральном Техасе.

Нужен мастер по ремонту?

Найдите проверенных специалистов для любых ремонтных или строительных работ. Разместите заказ и получите предложения от местных мастеров.

Вам также может понравиться