Как из безликой квартиры в Казани сделали интерьер с вау-эффектом
Проект этой 54-метровой евродвушки в историческом центре Казани доказывает: даже самая простая квартира может заиграть яркими красками
Хозяева приобрели жилье с базовой отделкой, без стен, перегородок и идей, но с четким запросом: превратить стандартную планировку в интерьер под аренду, который будет не только функциональным, но и запоминающимся. За дело взялась дизайнер Виктория Шаповалова. Она полностью изменила восприятие пространства, добавила дерзкие цветовые акценты, стильную отделку и необычные детали.
Результат — интерьер с вау-эффектом, который легко выделяется на фоне большинства предложений в районе.
О ремонте и планировке
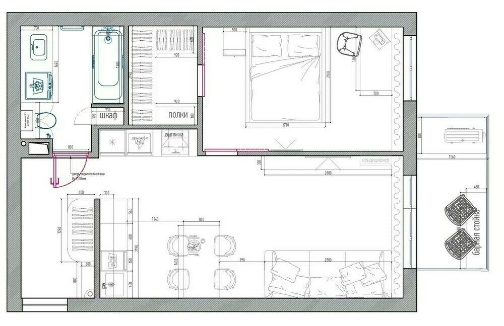
В квартире изначально была лишь базовая планировка с одной изолированной комнатой, совмещенным санузлом и общим пространством для кухни-гостиной. Прихожая была темной, вытянутой и визуально перегруженной. Санузел казался тесным и не предполагал установки полноценной ванны.
Фото до ремонта
Фото до ремонта
За счет грамотной перепланировки удалось убрать хозблок и перераспределить пространство между ванной и гардеробной. Это позволило установить полноценную ванну, организовать удобную систему хранения и создать ощущение комфорта даже на небольшой площади. В каждой комнате дизайнер использовала приемы зонирования, насыщенные текстуры и цветовые акценты.

О кухне
Гарнитур изготовили на заказ под размеры ниши, предусмотренной застройщиком. В одну линию встроили холодильник, духовой шкаф, СВЧ и секции хранения. Основную рабочую поверхность с мойкой и плитой вынесли на другую стену, что сделало кухню более удобной. Для фартука выбрали объемную плитку «елочкой» в светлой гамме — она добавила графики. Столешницу подобрали с нейтральной фактурой под камень.

Дизайн: Виктория Шаповалова
Обеденную зону визуально отделили декоративными рейками и панно с растительным принтом. Вдохновением для оформления стали тропические листья — мотив впоследствии повторяется в других частях квартиры.

Дизайн: Виктория Шаповалова

Дизайн: Виктория Шаповалова
Мягкие кресла цвета лайма поддерживают палитру и добавляют сочный акцент. Над столом — три светильника с золотыми и мраморными деталями, отсылающими к элементам арт-деко.

Дизайн: Виктория Шаповалова
О гостиной
Главным героем стала бархатная софа цвета марсала. Насыщенный тон создает глубину и собирает вокруг себя остальные элементы: ковер с приглушенным узором, графичные бра, круглое зеркало в кожаном ремешке. Телевизор разместили на противоположной стене, рядом — низкий комод в тон стен.

Дизайн: Виктория Шаповалова
Окно оформлено тюлем и нейтральными шторами в пол, которые мягко рассеивают свет и визуально расширяют помещение. Несмотря на небольшую площадь, комната получилась просторной и функциональной.

Дизайн: Виктория Шаповалова
О спальне
В спальне сделали ставку на тактильность и природные мотивы. Стена за изголовьем украшена фреской с пальмовыми листьями, а рядом разместили вертикальную рейку цвета молодой зелени, которая добавляет фактурности и работает как акцент.

Дизайн: Виктория Шаповалова
Кровать выбрали с мягкой плюшевой обивкой, в тон — бежево-оливковое покрывало и текстиль. Рабочий стол у окна оформлен минималистично: лаконичный светильник, горшок с растением и стул с бархатной обивкой.

Дизайн: Виктория Шаповалова
О гардеробной
Слева от кровати — раздвижная дверь в гардеробную. За ней — яркий сюрприз: малиновые обои со стрекозами, которые моментально притягивают взгляд. Это добавляет интерьеру игривости.

Дизайн: Виктория Шаповалова
В гардеробной организовали все необходимые секции — для одежды, обуви и мелочей.
О прихожей
Еще одна зона, где акцент сделали на декоративные решения. Стена у входной двери оклеена обоями с растительным орнаментом — такими же, как в обеденной зоне.

Дизайн: Виктория Шаповалова
Здесь же разместили мягкую скамью, а рядом — латунный настенный светильник в форме стилизованного листа. Прием создает ощущение, будто интерьер продолжается сразу с порога.
О санузле
Полноценная ванна, раковина с тумбой, стиральная машина и даже зона хранения — все поместилось на небольшой площади благодаря переносу стен и продуманной планировке.

Дизайн: Виктория Шаповалова
Стены выложены плиткой изумрудного оттенка, а главная акцентная стена оформлена обоями с черно-зеленым принтом в стиле ар-деко. Золотая сантехника и зеркало с арочным верхом добавляют роскоши и элегантности.

Дизайн: Виктория Шаповалова
Пол — с выразительным узором в графичной гамме. Вся мебель выдержана в темных тонах.

Дизайн: Виктория Шаповалова
Благодаря комбинации смелых решений и функциональных решений дизайнеру удалось превратить обычную квартиру без отделки в стильное пространство, готовое к комфортной аренде.
Нужен мастер по ремонту?
Найдите проверенных специалистов для любых ремонтных или строительных работ. Разместите заказ и получите предложения от местных мастеров.
Вам также может понравиться
Больше статей:
5 идей, как превратить тесную хрущевку в квартиру мечты
До и после: 5 преображений кухонь, которые вдохновляют на переделки
Яркие прихожие в старом фонде: 5 примеров
Роскошь в каждой детали: как оформили кухню в загородном доме
Андрей Миронов дома: французский парфюм, галстуки по каталогу и мини-спектакли на кухне
Стильная функциональная мебель: 10 актуальных находок
Ремонт без дизайнера: 7 классных идей из сталинки 36 м²
До и после: как превратить советскую кухню в пространство мечты (и не разориться)