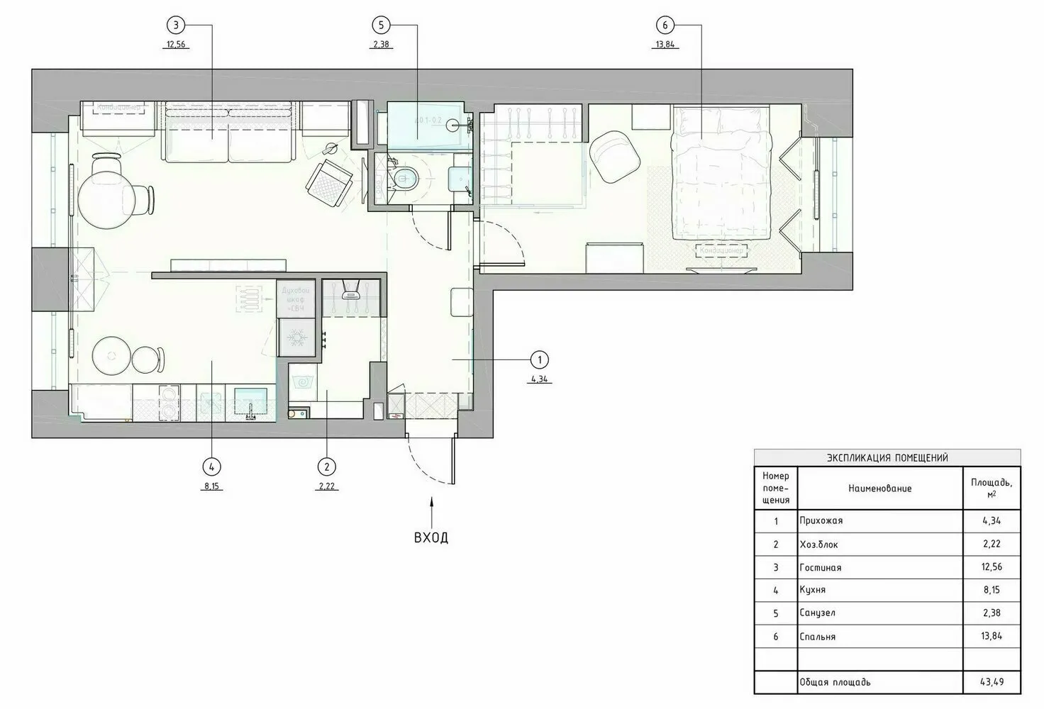
Небольшая прихожая 4 м² с продуманным хранением
Функциональное пространство в доме 1932 года постройки
Эту современную прихожую оформили дизайнеры из студии DSGN HUB для молодого человека. Главной задачей было предусмотреть много хранения и создать красивое, комфортное для жизни пространство.
Для отделки пола во входной зоне использовали черно-белую напольную плитку, уложенную в шахматной раскладке. Такой прием визуально увеличивает пространство, придает ритм и динамику. Входная дверь глубокого винного цвета перекликается с другими яркими элементами в квартире. Этот цвет создает ощущение уюта и тепла, а также задает настроение всему интерьеру.
Вокруг входной двери предусмотрели функциональное хранение. Антресольные шкафы и стеллажи с закрытыми и открытыми секциями помогают поддерживать визуальный порядок и максимально задействуют полезную площадь небольшого помещения.
Часть прихожей отдали под хозблок. Вход в него оформлен текстильной серой шторкой. Она обеспечивает порядок, скрывая содержимое от посторонних взглядов, и не перегружает пространство. Прихожая также оборудована большим зеркалом, которое визуально увеличивает помещение и добавляет света в комнату. Маленький черный табурет служит не только элементом мебели, но и стильным акцентом в оформлении.
Прихожая в этой типовой двушке стала удачным примером того, как можно сочетать функциональность и современный дизайн даже в небольшом пространстве. Использование ярких акцентов, практичных решений и грамотно подобранных материалов создает идеальную входную зону для встречи гостей и возвращения домой.
Нужен мастер по ремонту?
Найдите проверенных специалистов для любых ремонтных или строительных работ. Разместите заказ и получите предложения от местных мастеров.
Вам также может понравиться
Больше статей:
Сколько на самом деле места нужно для стиральной машины: решения для маленькой ванной
7 критических ошибок в ремонте кухни (и как их избежать)
Как организовать хранение в типовой ванной: разбор популярных решений
Почему все отказываются от верхних шкафов на кухне: разбираем преимущества и недостатки
Как бюджетно и эргономично обустроить евродвушку: 5 идей от профи
Интерьер по знаку зодиака: как оформить дом в эпоху Водолея
Как цвета в квартире влияют на настроение: разбираем каждый оттенок
Невероятная история династии Морозовых, построивших текстильную империю