Вмещаем все и даже больше: стильный маленький санузел 4 м²
В этом санузле красота объединяется с удобством и функциональностью
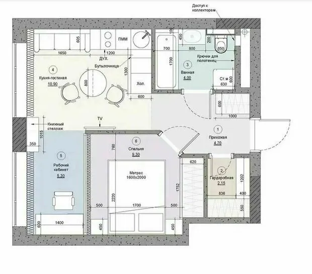
Если подойти к ремонту грамотно, даже в малогабаритке можно обустроить удобный и красивый санузел, в котором есть все необходимое. Показываем небольшой санузел из однушки 38 м², который оформили дизайнеры из студии Dot and dash Architects во главе с архитектором Мариеттой Мнацаканян.

Для отделки использовали плитку трех цветов и покраску стен в цвет хаки. Теплая и уютная напольная плитка, имитирующая фактуру дерева, выглядит атмосферно и изысканно. А трендовая плитка терраццо в мокрых зонах и на экране ванной оживляет обстановку и добавляет деликатные акценты. Сантехнику сделали встроенной. Она не занимает много пространства, выглядит аккуратно и эстетично. Чтобы не создавать лишнего визуального шума и сделать интерьер более легким, вместо шторки предусмотрели стеклянную перегородку.

В помещении есть несколько функциональных зон: полноценная ванна, инсталляция с унитазом, раковина, постирочный блок. Над ванной предусмотрели стеклянные полочки в нише. Они выполняют декоративную функцию и служат для размещения косметики, гелей и шампуней.

Основное внимание уделили хранению, задействовав все свободные участки. Под раковиной установили подвесную тумбу, под которой достаточно места для размещения корзин с грязным бельем. Зеркальный шкафчик над раковиной выполняет функцию зеркала, служит для хранения и украшает интерьер, добавляя света и воздуха. Также хранение организовано в системе шкафов с глухими фасадами до потолка и в секциях над постирочным блоком.

Продумали несколько сценариев освещения: верхний точечный свет, подсветка полок в зоне ванны и полочки над инсталляцией. Дополнительные источники света помогают создать уютную расслабляющую атмосферу и красиво расставить акценты.

Нужен мастер по ремонту?
Найдите проверенных специалистов для любых ремонтных или строительных работ. Разместите заказ и получите предложения от местных мастеров.
Вам также может понравиться
Больше статей:
5 небанальных решений для кухни, которые мы подсмотрели у нашей героини
Как обустроили стильную кухню в микро двушке
Уютная двушка 67 м², где оставили планировку и ремонт от застройщика
Готовим загородный дом к зиме: 9 уютных советов для интерьера
Гормоны и питание: как то, что мы едим, влияет на наше настроение и самочувствие
Интерьерные решения для арендованного жилья: как улучшить без капитального ремонта
Жизнь на высоте: как люди приспосабливаются к существованию в самых высокогорных поселениях Земли
Цилиндры, соты и тайны: что скрывает Дом Мельникова в московских переулках