Уютная двушка 67 м², где оставили планировку и ремонт от застройщика
Предусмотрели все: вместительные системы хранения, функциональную кухню, уютную мастер-спальню, отдельное рабочее место
Город: Москва
Метраж: 67,3 кв. м
Комнаты: 2
Санузлы: 2
Высота потолков: 2,8 м
Бюджет: 2,8 млн рублей
Дизайнер: Ольга Шелопугина
Фотограф: Мария Войнова
Стилист: Екатерина Хелия
Дизайнер Ольга Шелопугина оформила уютную двушку для семьи с дочерью-подростком. Квартиру приобрели с полной отделкой от застройщика, поэтому перед дизайнером поставили задачу наполнить ее мебелью и декором. Необходимо было вписать в интерьер часть имеющейся мебели, организовать места для хранения, так как застройщиком не предусмотрены гардеробные, и обустроить рабочее место для родителей.
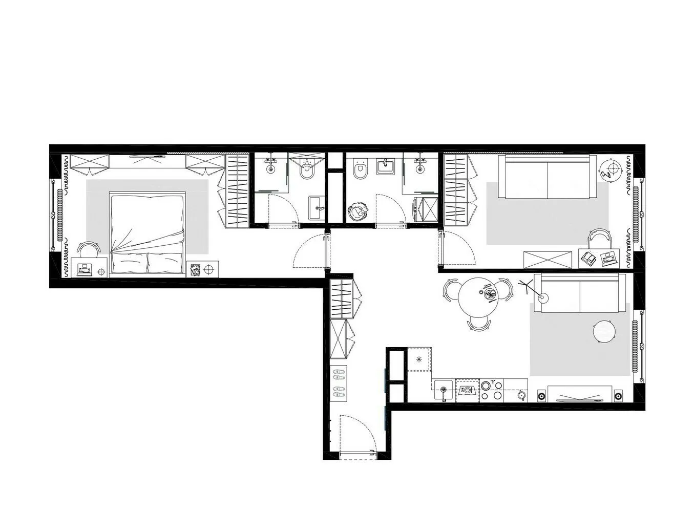
Планировка
Квартира сдавалась в полной отделке от застройщика, поэтому никаких изменений планировочного решения не было. Все функциональные зоны остались на своем месте. Кухня-гостиная логично разделена на диванную и столовую зоны, в квартире есть прихожая, кухня, мастер-спальня, детская и санузел.
План расстановки мебели«Конечно, отделка от застройщика накладывает некий отпечаток на работу. Уже так не разгуляешься, как, например, когда заходишь в «бетон» на чистый лист, — рассказывает Ольга. — Но, с другой стороны, в наших реалиях концепция «получил ключи, заезжай и живи» тоже очень привлекательна, без долгого и дорогого ремонта».
Ведущим акцентным цветом стал синий (любимый цвет заказчицы). Он единой нитью связывает между собой все помещения.
КухняКухня достаточно компактная, ее делали под заказ в «потолок», чтобы по максимуму использовать имеющуюся площадь. Наполнение стандартное — духовой шкаф, плита, ПММ, встроенный холодильник. Напротив гарнитура — столовая зона, представленная круглым столом и мягкими стульями-креслами.


ГостинаяАкцентом в гостиной стал синий диван. Над ним — рельефные картины в цвет стен. Они задают ритм и создают особую атмосферу, в то же время поддерживая общую стилистику интерьера. В зоне гостиной постелили мягкий ковер, перекликающийся по цвету с диваном, поставили круглый журнальный столик. Напротив дивана — зона ТВ.

Мастер-спальняСпальня получилась уютной и функциональной. Здесь предусмотрели большую систему хранения. Ее долго продумывали, выверяли с заказчиками, чтобы под все вещи было место. Рассматривали только заказные системы хранения, так как «под потолок» готовые варианты найти очень сложно.

Длинную скучную стену за изголовьем кровати оформили росписью. Для этого пригласили талантливых художников.


Заказчики часто работают дома, поэтому одним из пожеланий было отдельное рабочее место. Его обустроили около окна.

ДетскаяВ детскую большая часть мебели переехала из старой квартиры, заказали только шкаф для хранения. От застройщика «досталась» небольшая ниша глубиной 5 см (стык монолитных и блочных конструкций). Ее задекорировали рейками.

ПрихожаяВ прихожей расположили вместительную систему хранения. В ней сделали секции разной глубины — ширина коридора не позволяла оформить их по стандартным размерам. Со стороны банкетки на торце шкафа предусмотрели открытые полки для аксессуаров и декора.

Панно из крашеных нитей над банкеткой сделала под заказ мастер Дарья Горн. В панно объединены все оттенки синего, которые использованы в квартире.

СанузлыСанузлы не участвовали в работе дизайнера, так как полностью были сделаны застройщиком. Поэтому их фотографировать не стали. В квартире два санузла (один из них с выходом в спальню). Изначально по проекту в одном предполагалась ванна. Но по факту застройщик сделал душевые. Для заказчиков это был не принципиальный момент, а вот для некоторых семей, допустим, с маленькими детьми, это могло стать неприятным сюрпризом.
Бренды, представленные в проекте
Кухня-гостиная
Отделка: стены, краска, Dulux
Пол: напольное покрытие, керамогранит, Италон
Мебель: кухонный гарнитур, на заказ
Освещение: торшер, Maytoni
Спальня:
Освещение: настольная лампа, La Redoute
Нужен мастер по ремонту?
Найдите проверенных специалистов для любых ремонтных или строительных работ. Разместите заказ и получите предложения от местных мастеров.
Вам также может понравиться
Больше статей:
До и после: классная переделка трешки с ремонтом из 2000-х
Кухня 6 м² в типовой квартире в доме серии II-29
Как выбрать идеальную краску для ванной: мнение профи
Как цвет стен в интерьере влияет на наше настроение: 4 секрета
Топ-5 ошибок при покраске стен и советы, как их избежать
Топ-5 лайфхаков, которые помогут сделать интерьер вне времени
Трехкомнатная квартира 125 м² в стиле американской классики
4 очень практичных гостиных, в которых все сделано по уму